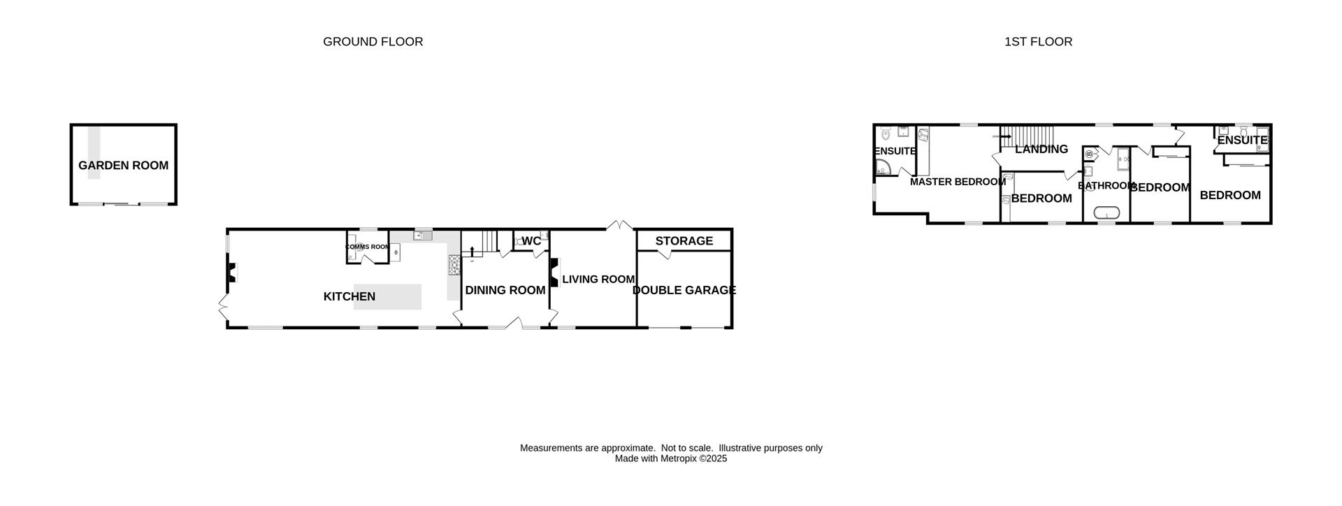
Available now part or furnished - viewing essential to appreciate !Located on the outskirts of Macclesfield in this small and select development and surrounded by open countryside is this immaculately presented barn conversion.Not only offering a high standard of internal accommodation throughout this stunning family home also benefits from Equestrian facilities and approximately 5 acres of land.Dining hallway, guest bathroom, spacious lounge with feature fireplace, large open plan modern fitted kitchen with appliances and doors to front courtyard leading to family room with feature fireplace and doors to decked area.To the first-floor main bedroom with fitted wardrobes and en-suite bathroom, three further well-proportioned bedrooms all with storage and one with en-suite bathroom, family bathroom with walk in shower.To the exterior garden, putting green, detached office, gates from garden leading to stabling menage, paddocks and galloping track. Double Garage with storage and recently fitted boiler in November 2023, Gated developmentMacclesfield town centre and the train station are only a short drive awayContact Macclesfield £8000.00pcmCouncil tax GEPC E
For properties in England, the Tenant Fees Act 2019 means that in addition to rent, lettings agents can only charge tenants (or anyone acting on the tenant's behalf) the following permitted payments:
Holding deposits (a maximum of 1 week's rent); Deposits (a maximum deposit of 5 weeks' rent for annual rent below £50,000, or 6 weeks' rent for annual rental of £50,000 and above);
Payments to change a tenancy agreement eg. Change of sharer (capped at £50 or, if higher, any reasonable costs);
Payments associated with early termination of a tenancy (capped at the landlord's loss or the agent's reasonably incurred costs); Utilities, communication services (eg. Telephone, broadband), TV licence and council tax;
Interest payments for the late payment of rent (up to 3% above Bank of England's annual percentage rate);
Reasonable costs for replacement of lost keys or other security devices;
Contractual damages in the event of the tenant's default of a tenancy agreement;
And Any other permitted payments under the Tenant Fees Act 2019.
We are also obliged to tell you we are members of the Property Redress Scheme - agent number PRS012604
We are also memebers of RICs Client Money Protection Scheme