7 bed to let Plawhatch Lane, Sharpthorne RH19

£1,269pw Letting fees

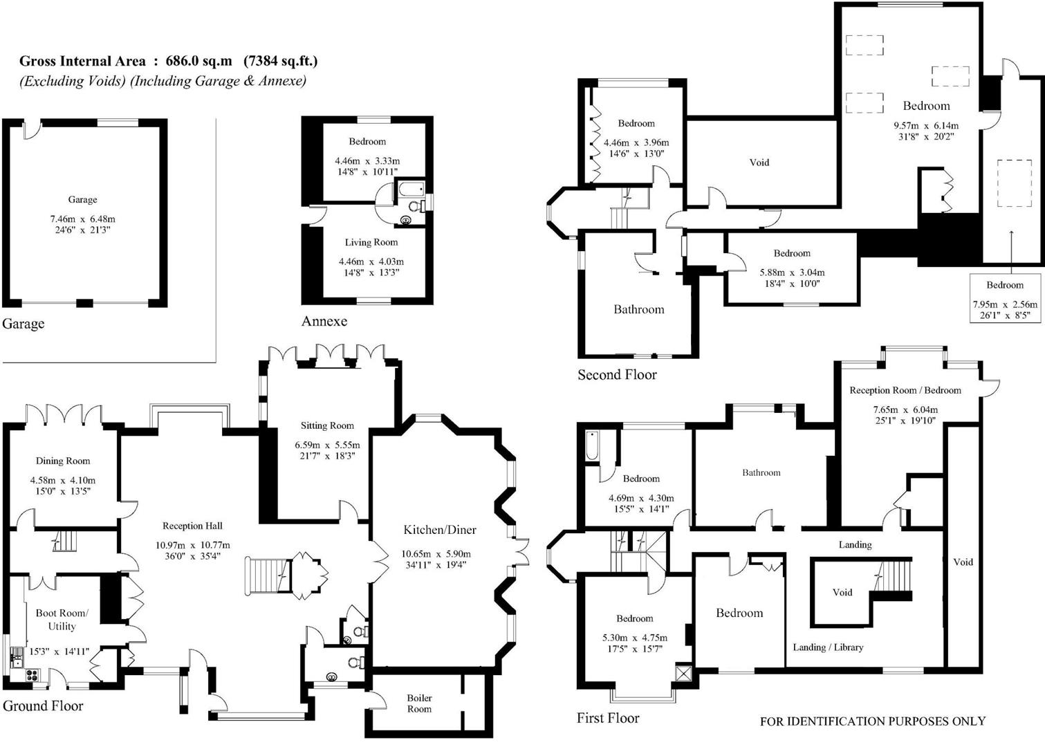
Key info

  • Status: To rent
  • Type:
  • Bedrooms: 7
  • Receptions: 4
  • Bathrooms: 3
  • Area: Plawhatch Lane, East Grinstead, West Sussex

Price changes

-7.5% £1,269 4 months ago
-4.7% £1,373 4 months ago
£1,442 4 months ago

Full description

Fully furnished // Welcome to Old Plawhatch House. This substantial Arts & Crafts country house has been meticulously and painstakingly restored by our client and offers over 7,000 sq ft of accommodation on a fabulous 0.89 acre plot. There is a wealth of character, contemporary high spec finishes and enormous flexibility - all on the fringe of the Ashdown Forest. There is also a a one bedroom annexe and double garage. Offered fully furnished and available from September 2025.Welcome Home...The original part of the home dates from 1549, but the home is not listed. There is an eclectic mix of Victorian and Edwardian styling displayed both internally and externally, with the wood-panelled lobby, grand central staircase, elegant drawing room, and carved fireplaces proving notable features.The sympathetic nature of the restoration means the home combines the very best of retained character with modernity and high-spec, luxurious finishes throughout, including SkinFlint lighting and a beautiful Farrow & Ball colour scheme.The renovation includes a new insulated roof, total rewire, new plumbing with oil-fired central heating, and a huge amount of restoration of the original features.Upon entry, you’re welcomed by a grand reception hall (36ft x 35ft), which sets the tone for what lies beyond. The staircase is a real feature, and the open fireplace provides a charming spot on those chilly winter evenings.There are two separate reception rooms which provide spacious and versatile living spaces. The sitting room is an inviting space with parquet flooring and a beautiful, ornate fireplace.The kitchen is the heart of any home, and this kitchen is no different, extending to nearly 35ft – a great space for entertaining. There are exceptionally high ceilings that give this space a real sense of grandeur. The former kitchen is now an impressive boot room/utility – perfect for a busy family after a muddy dog walk in the forest.Stairs rise to the galleried first-floor landing where you’ll find bespoke bookcases.The principal bedroom is an impressive space with spectacular westerly views, allowing you to watch the sun set over the rolling countryside. There are five further bedrooms and three beautiful boutique bathrooms, all finished to an enviable standard.Step Outside...The home sits on a delightful 0.89-acre plot with spectacular views over rolling farmland and countryside beyond. The biodynamic gardens are beautifully kept and well established, and the paved terrace provides the perfect spot for al fresco dining.To the front is driveway parking for several vehicles and a detached double garage with annexe above.The annexe comprises one bedroom, living/kitchen area, and a shower room. It has its own boiler and has also been rewired in recent years.Out & About...Old Plawhatch enjoys a beautiful position on the eastern edge of the village of Sharpthorne, nestled within the breathtaking High Weald Area of Outstanding Natural Beauty and just a stone’s throw from the iconic Ashdown Forest.Sharpthorne itself offers all the essentials, including a handy village shop and the well-loved Plaw Hach farm shop. Just up the road in West Hoathly, you’ll find more local charm in the form of two welcoming pubs and a primary school. A little further afield-around 2.5 miles away-is the vibrant and ever-popular village of Forest Row, home to a fantastic mix of independent shops, a supermarket, cafés, antique stores, a bakery, a fishmonger, several pubs, and some excellent schools.For broader amenities, the larger towns of East Grinstead and Haywards Heath are conveniently close-just five and nine miles away respectively-offering a wealth of shopping, dining, and leisure options.Old Plawhatch is well-connected, with several train stations within easy reach. Gatwick Airport station (around 12 miles away) offers the fast and frequent Gatwick Express to London Victoria in as little as 30 minutes. Other nearby stations include East Grinstead, Three Bridges (approx. 8.5 miles), and Haywards Heath-each providing regular links to London, the South Coast, and beyond.The area is exceptionally well served when it comes to education, with a wide range of excellent state and independent schools nearby. These include Cumnor House, Great Walstead, Brambletye, Michael Hall (Steiner Waldorf), Ardingly College, Bede’s, and Brighton College-offering superb options for all age groups.The Specifics...Local Authority: Wealden District CouncilPlot Size: 0.89 acresServices: Oil heating, shared private drainage, mains electric, mains waterWe believe the above to be correct but recommend intending tenants satisfy themselves. Floorplan provided for indicative purposes only and may not be exactly accurate.Permitted Payments:Holding Fee: One weeks rent;Deposit: Five weeks rent;The holding deposit will be refunded against the first month's rent but can be retained if the applicant withdraws from the property, fails the reference checks due to false or misleading information or fails the Right to Rent checks.

More articles