4 bed detached house for sale Hivings Hill, Chesham HP5

£800,000

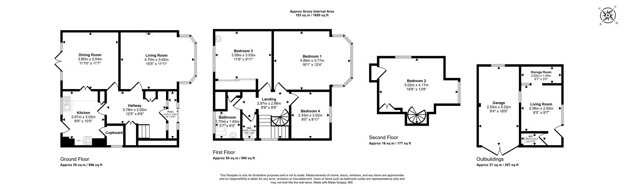
Key info

  • Status: For sale
  • Type: Detached house
  • Bedrooms: 4
  • Receptions: 2
  • Bathrooms: 1
  • Area: 123 Hivings Hill, Chesham, Buckinghamshire

Price changes

-3.0% £800,000 4 months ago
£825,000 6 months ago

Full description

Nestled in a sought-after location, this exquisite 4-bedroom detached house presents an exceptional opportunity to acquire a distinguished character home that exudes elegance and charm. With the loft artfully converted to create a spacious 4th bedroom, this property offers versatility and functionality that meets the demands of modern living, making it a rare find in today's market. Boasting a well-thought-out layout, this home is characterised by its two reception rooms that provide ample space for both relaxation and formal entertaining.The property is further enhanced by the convenience of a private driveway that leads to a garage. The gas-fired central heating system guarantees warmth and comfort throughout the home, creating a cosy ambience that invites all who enter to unwind and enjoy the tranquil setting. Offering peace of mind to prospective buyers, this property is being offered to the market with no onward chain, streamlining the buying process and allowing for a seamless transition into ownership.Situated within the catchment area of the esteemed Chesham Grammar School, this home caters to families seeking educational excellence for their children. In addition to its educational offerings, the property benefits from its proximity to open woodlands, providing opportunities for leisurely strolls and outdoor activities amidst the natural beauty of the surrounding area. For those with a penchant for urban amenities, direct links to London offer unparalleled convenience, enabling swift access to the vibrant cultural and commercial hub of the capital.A distinctive feature of this property is the additional outbuilding that holds immense potential as an annexe, offering the flexibility to accommodate diverse lifestyle needs or serve as a guest suite. Moreover, the private front and rear gardens serve as serene retreats that offer stunning views of the picturesque Chilterns, establishing a serene backdrop for outdoor relaxation and al fresco dining.In summary, this detached house represents a rare and unique opportunity to own a character-filled home that seamlessly blends traditional charm with modern conveniences. With its spacious interiors, generous outdoor spaces, and convenient location, this property is sure to appeal to discerning buyers in search of a distinguished residence that embodies both style and functionality.EPC Rating: D

More articles