4 bed detached house for sale Eliza Farm House, Eliza Farm DH8

£1,300,000

Key info

  • Status: For sale
  • Type: Detached house
  • Bedrooms: 4
  • Receptions: 2
  • Bathrooms: 3
  • Area: Eliza Farm House, Eliza Farm, Consett, County Durham

Price changes

£1,300,000 2 months ago

Full description

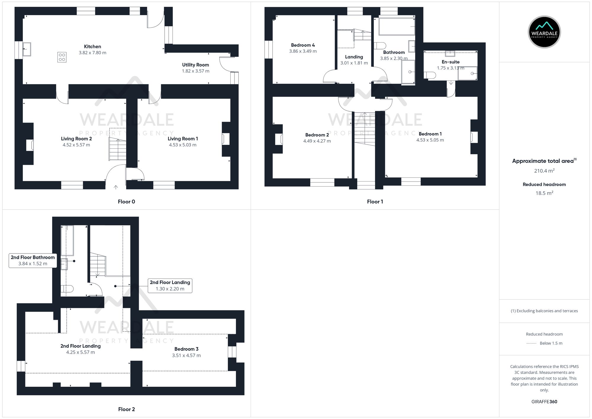
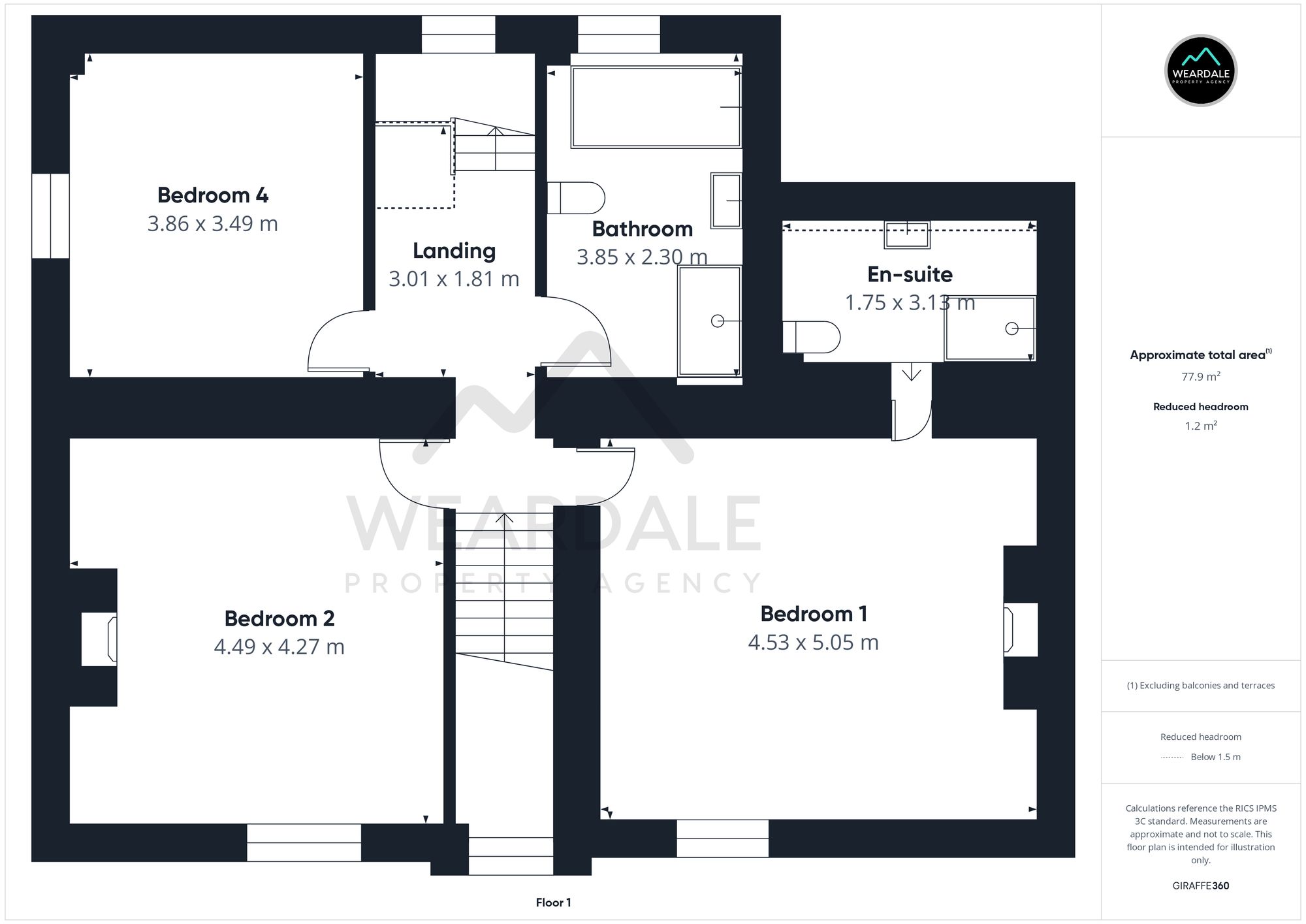
This impressive 4-bedroom detached farm house exudes style and traditional character. Coming to the market chain free, this premium home, was thoughtfully extended 12 years ago, showcasing high-quality materials and craftmanship throughout. Offering two reception rooms with multi-fuel burners set in feature fireplaces, exposed stone walls, and ceiling beams, a large triple aspect kitchen with a central island, along with, four generously sized bedrooms and three bathrooms, including a second floor private suite, the property is the epitome of rural living with modern comfort and convenience. Externally the attention to detail continues with the extensive outdoor spaces, including enclosed lawns, and a spacious patio area. All set in a picturesque backdrop with breathtaking views of the surrounding countryside creating a perfect retreat for relaxation or entertaining. A 30m x 10m block-built barn, complete with power and lighting, along with a newly constructed quadruple garage, further enhance the outdoor space. The property includes approximately 6 acres of flat grazing land, and comes with the option to acquire an additional adjoining 2.5 acres.The ground floor accommodation consists of two reception rooms with exposed stone walls and ceilings beams, extensive open-plan kitchen, with dining area and utility room. An oak staircase rises from the second living room to the first-floor landing, which provides onward access to three of the property’s bedrooms (one with En-suite), and the family bathroom. A further oak staircase rises to the second-floor landing, which provides access to the final bedroom and bathroom. This large landing area offers great potential for conversion into a dressing room, snug, or an additional sleeping area.Externally an inviting outdoor space awaits, with a rear enclosed garden, separated into a raised lawn and large sandstone patio, which provides access to the property via the kitchen and is surrounded by low level stone walls. To the front of the property is a South East facing garden area, also surrounded by low level stone walling and featuring a wood fired hot tub set on a sandstone patio. The newly built garage block has potential for conversion to a bungalow (subject to planning consent). The incredible outdoor spaces truly complement the beautiful indoor rooms, making this a perfect location, for living, relaxing and entertaining.Contact us today to ensure you don’t miss out on this exceptional opportunity.Agents NotesFuel: Lpg tankWater: Mains, meteredElectricity: MainsSewerage: Septic tank, shared with one neighbouring propertyLocationEliza farm is conveniently located close to the A68 providing access to Consett, Corbridge, Hexham and Newcastle. The property is located on the edge of the North Pennines National Landscape, and provides fantastic views of the surrounding hills. The area is hugely popular with walkers and cyclists, being positioned on the coast-to-coast route and provides the perfect balance of being within practical commuting distance to nearby towns and cities, whilst being positioned in a truly beautiful part of rural County Durham.Living Room 2 (4.52m x 5.57m)- External access to the front of the property is gained via a wooden door with frosted panes into living room 2, which provides onward internal access to the kitchen, living room 1, and a staircase that rises to the first-floor landing- Well-proportioned living room with wooden framed double-glazed sliding sash window with solid oak sill to the Southern aspect- Hardwood parquet flooring- Exposed wooden ceiling beams- Feature exposed stone wall to the staircase side- Large multi-fuel burner set in a brick and stone fireplace on a flagstone hearth- Central ceiling light fitting- Two traditional style column radiators- Under stairs storage cupboardKitchen (3.82m x 7.80m)- Positioned to the rear of the property being open-plan with the utility room, providing internal access to living room 1, living room 2, and providing external rear access via a wooden door with small clear pane to the Northern aspect- Large triple aspect kitchen with wooden framed double-glazed windows with solid oak sills to the Eastern, Northern and Western aspects- Hardwood parquet flooring- Huge range of over/under counter storage units- Central island with solid hardwood work surface and integrated five ring gas hob, with integrated storage below- Breakfast bar with solid hardwood top- Hardwood work surfaces with tiled splashbacks- Double Belfast sink- Integrated double electric oven- Two integrated dishwashers- Integrated freezer- Two integrated fridges- Integrated wine chiller- Ceiling light fittings- Additional ceiling spotlights- Traditional style column radiators- The property’s lpg fuelled Combi boiler is housed in a cupboard within this roomUtility Room (1.82m x 3.57m)- Positioned to the rear of the property and being open-plan with the kitchen whilst providing external access via a wooden door, with a small clear pane to the Eastern aspect- Small wooden framed double-glazed window to the Eastern aspect- Hardwood parquet flooring- Neutrally decorated- Solid wood worksurface with tiled splashback and integrated washing machine and tumble dryer below in addition to under counter storage cupboards- Additional whole height storage cupboards, one of which provides access to the property’s electrical consumer unit- Ceiling spotlights- Traditional style column radiatorLiving Room 1 (4.53m x 5.03m)- Positioned to the front of the property on the ground floor, accessed from living room 2, with onward access to the kitchen at the rear of the property- Well-proportioned living room with brick fireplace and multi-fuel burner- Wooden framed double-glazed sliding sash window with solid oak sill to the Southern aspect- Carpeted- Neutrally decorated- Exposed wooden ceiling beams- Feature exposed stone wall to one side- Central ceiling light fitting- Traditional style column radiator- Fantastic views over the front garden and fields beyondLanding (3.01m x 1.81m)- An oak staircase with plinth LED lighting rises from living room 2 to the first floor landing, which provides access to bedroom 1, bedroom 2, bedroom 4, the family bathroom, and a further staircase rising to the second floor- Wooden framed double-glazed sash window above the staircase to the Southern aspect- Carpeted- Neutrally decorated- Feature exposed stone wall to the side of the staircase- Ceiling light fittings- Traditional style column radiatorBedroom 1 (4.53m x 5.05m)- Positioned to the front of the property and accessed from the first-floor landing- Large double room with En-suite- Wooden framed double-glazed sliding sash window with solid oak sill to the Southern aspect, providing beautiful views over the surrounding countryside- Carpeted- Neutrally decorated- Feature exposed stone wall- Feature cast iron fireplace- Central ceiling light fitting- Traditional style column radiator- Ample space for free-standing furnitureBedroom 1 En-Suite (1.75m x 3.13m)- Accessed directly from bedroom 1- Roof light window- Tiled flooring- Half-tiled walls- Large walk-in corner shower cubicle with fully tiled enclosure, mains-fed shower and rainfall showerhead- WC- Hand-wash basin set on a vanity unit with integrated storage below- Ceiling spotlights- Traditional style column heated towel rail- Extractor fanBedroom 2 (4.49m x 4.27m)- Positioned to the front of the property and accessed from the first-floor landing- Large double room with wooden framed double-glazed sash window with solid oak sill to the Southern aspect, providing beautiful South facing views over the front garden and fields beyond which are owned by the property- Feature brick and stone fireplace- Carpeted- Neutrally decorated- Central ceiling light fitting- Traditional style column radiator- Ample space for free-standing storage furnitureBathroom (3.85m x 2.30m)- Positioned to the rear of the property and accessed from the first-floor landing- Large bathroom with tiled flooring and half-tiled walls- Wooden framed double-glazed windows to the Northern aspect- Large free-standing bath with central over bath tap- Large walk-in shower with fully tiled enclosure, alcove shelving, mains-fed shower with rainfall showerhead, and down light- WC- Hand-wash basin set on a vanity unit with integrated storage below- Anti-steam mirror with LED lighting- Ceiling spotlights- Traditional style column heated towel rail- Extractor fanBedroom 4 (3.86m x 3.49m)- Positioned to the Western side of the property and accessed from the first-floor landing- Well-proportioned double room with wooden framed double-glazed window with solid oak sill to the Western aspect- Carpeted- Neutrally decorated- Central ceiling light fitting- Traditional style column radiator- Ample space for free-standing storage furnitureSecond Floor Landing (4.25m x 5.57m)- A half-turn oak staircase with plinth LED lighting rises from the first-floor landing in two stages to the second-floor landing- The second-floor landing is a large open plan space providing access to the second-floor bathroom and bedroom 3- Wooden framed double-glazed window with solid oak sill, positioned halfway up the staircase to the Northern aspect- Low-level wooden framed double-glazed window to the Western aspect- Two roof light windows- Carpeted- Pitched ceilings with exposed timbers- Neutrally decorated- Fantastic potential to be used as a dressing room, snug or even a further sleeping area- Two traditional style column radiators- Three ceiling light fittingsSecond Floor Bathroom (3.84m x 1.52m)- Accessed directly from the second-floor landing- Well-proportioned bathroom with pitched ceiling and roof light window to the Western aspect- Tiled flooring- Half wooden decorative panelled walls- Large free-standing bath- WC- Hand-wash basin set on a vanity unit with integrated storage below- LED ceiling lights- Vertical heated towel rail- Extractor fanBedroom 3 (3.51m x 4.57m)- Positioned on the second floor and accessed from the second-floor landing through an open stone archway- Well-proportioned double room with pitched ceilings, exposed roof timbers and roof light window to the Northern aspect- Wooden framed double-glazed window to the Eastern aspect- Carpeted- Neutrally decorated- Feature exposed stone wall- Ceiling light fitting- Traditional style column radiator- Under eaves storage cupboards- Space for free-standing storage furnitureBarn- 30m x 10m block-built barn with power, lighting and sealed concrete floorRear Garden- To the rear of the property is an enclosed garden which is split into a large sandstone patio and a raised lawn- the patio area provides access to the property via the kitchen and is enclosed by low level stone walls- The lawned area is enclosed by close panel fencingFront Garden- To the front of the property is a South-East facing garden area which is enclosed on three sides by low level stone walling, is mainly laid to lawn, and features a wood fired hot tub set on a sandstone patioGarden- Approx. 6 acres of flat grazing land with potential to purchase additional adjoining 2.5 acresParking - Garage- Newly built quadruple garage (18m x 8m)- The garage doors are yet to be fitted and there are number of options from which the buyer can select their preference- Subject to the necessary planning consent, the garage has potential for conversion to a bungalow, with waste, power and water all being readily available

More articles