3 bed semi detached house for sale Raynton Drive, Hayes UB4

£600,000 offers over

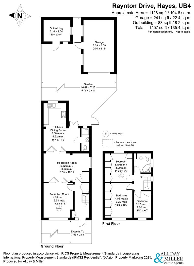
Key info

  • Status: For sale
  • Type: Semi detached house
  • Bedrooms: 3
  • Receptions: 2
  • Bathrooms: 2
  • Area: Raynton Drive, Hayes, London

Price changes

-4.0% £600,000 4 months ago
£625,000 7 months ago

Full description

Expertly extended, this three bedroom, two bathroom 'A Type Nash' semi detached family home offers spacious, light filled interiors throughout and is ideal for the growing family.This charming house is an ideal choice for family living. The property has a well designed layout, featuring two spacious reception rooms that provide ample space for relaxation and entertaining. The fitted kitchen, complete with a dining area, while a convenient downstairs WC and bathroom enhance the practicality of the home.As you ascend to the first floor, you will find three comfortable bedrooms, each boasting fitted wardrobes and a second bathroom.A front drive provides off street parking, a valuable asset in this area. To the rear, you will discover a private garden featuring an outbuilding and a garage with side access, offering extra storage or potential for a workshop.Raynton Drive is a sought after residential road in North Hayes offering easy access to a number of local amenities including shops and bus/road links and a number of highly regarded schools including Hayes Park. The Uxbridge Road is a short distance away and provides access to Hayes town centre with its variety of shops and Elizabeth Line (Crossrail) train station and Uxbridge Town centre with its multitude of shops, bars, restaurants and tube station.

More articles