2 bed flat for sale Kingdene Cottage, Mitcham CR4

£400,000

Key info

  • Status: For sale
  • Type: Flat
  • Bedrooms: 2
  • Receptions: 1
  • Bathrooms: 1
  • Area: Kingdene Cottage, Mitcham, London

Price changes

£400,000 one month ago

Full description

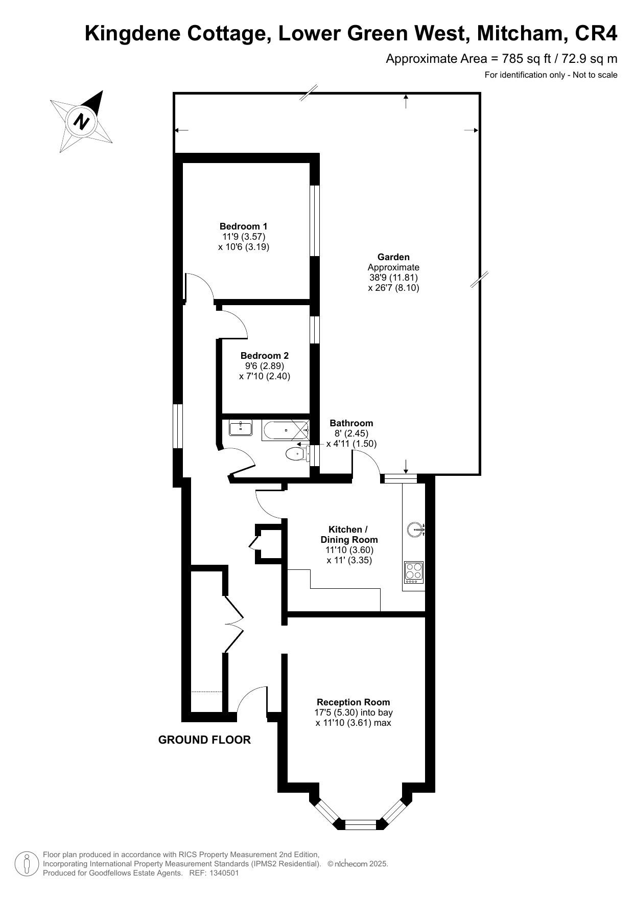
A delightful two-bedroom garden flat brimming with period charm.Kingdene Cottage occupies a prime position in the heart of Mitcham, surrounded by the greenery of the historic Cricket Green conservation area. This unique property provides just under 800 sq. Ft. Of well-arranged living space, seamlessly combining character features with modern comforts.The accommodation comprises a welcoming entrance hall, a generous reception room enhanced by an elegant front bay window, and a spacious kitchen/dining room fitted with integrated appliances and direct access to the private rear garden. Two well-proportioned double bedrooms, a stylish three-piece bathroom suite, and ample storage complete the interior.Believed to date back to the mid 19th century, Kingdene Cottage retains a wealth of period character while benefiting from tasteful updates for contemporary living. Perfectly positioned, the property enjoys excellent transport links with local bus and tram services close by, as well as Mitcham Eastfields station within easy reach.Important note to potential purchasers & tenants:We endeavour to make our particulars accurate and reliable, however, they do not constitute or form part of an offer or any contract and none is to be relied upon as statements of representation or fact. The services, systems and appliances listed in this specification have not been tested by us and no guarantee as to their operating ability or efficiency is given. All photographs and measurements have been taken as a guide only and are not precise. Floor plans where included are not to scale and accuracy is not guaranteed. If you require clarification or further information on any points, please contact us, especially if you are travelling some distance to view. Potential purchasers: Fixtures and fittings other than those mentioned are to be agreed with the seller.Potential tenants:All properties are available for a minimum of six months, with the exception of short term accommodation. A security deposit of at least one month’s rent is required. Rent is to be paid one month in advance. It is the tenant’s responsibility to insure any personal possessions.GMI220496/2

More articles