4 bed terraced house for sale Plough Way, London SE16

£875,000

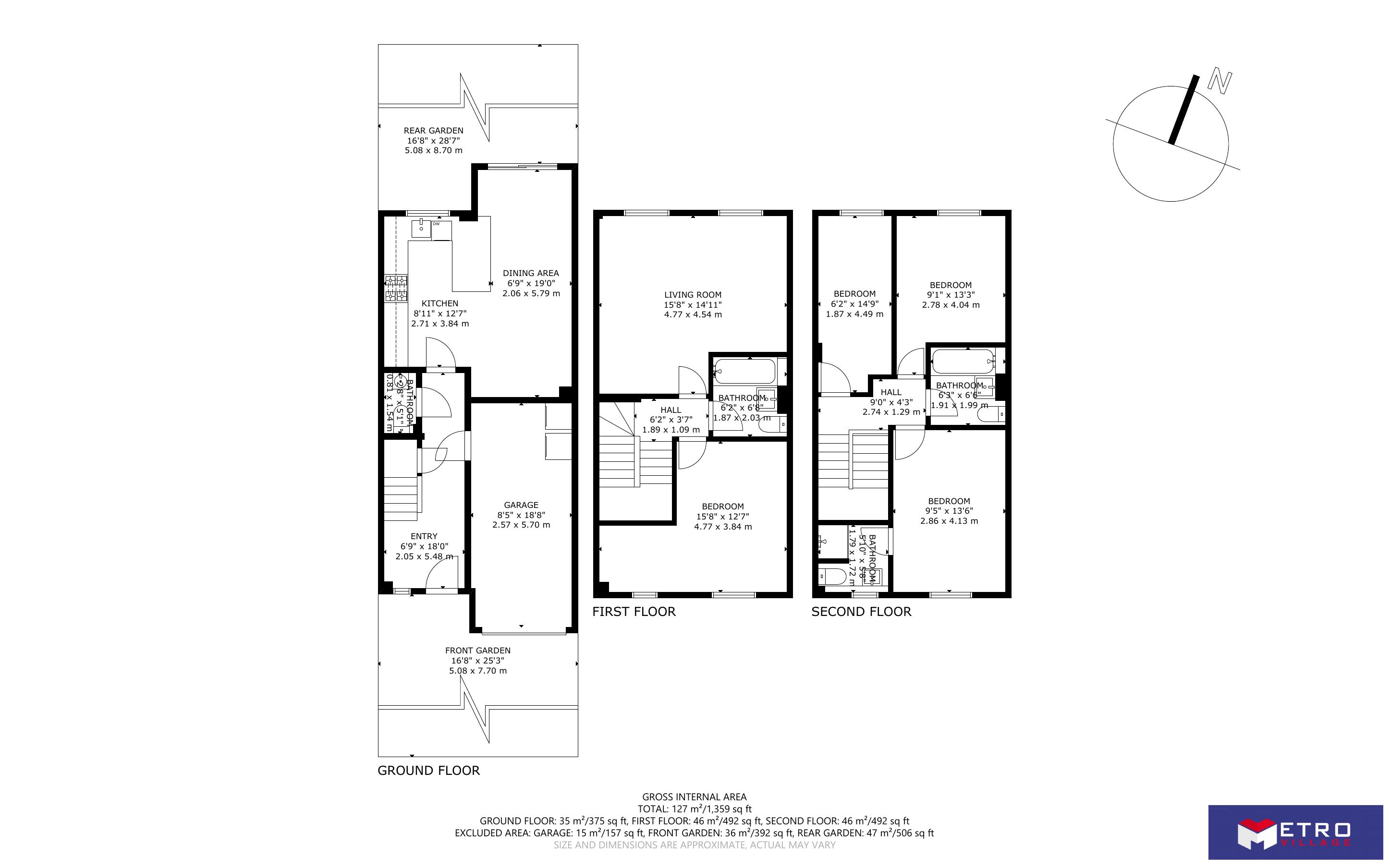
Key info

  • Status: For sale
  • Type: Terraced house
  • Bedrooms: 4
  • Receptions: 2
  • Bathrooms: 3
  • Area: Plough Way, London, London

Price changes

£875,000 2 months ago

Full description

A newly refurbished 4-bedroom, 3-bathroom townhouse, ideally positioned just moments from South Dock Marina and within easy walking distance of Surrey Quays Station, Canada Water, and the transformative Canada Water masterplan redevelopment.Arranged over three floors, this spacious home combines modern interiors with excellent connectivity and further benefits from a private garden, integral garage, and off-street parking.Set in a prime Rotherhithe location by South Dock Marina, the property offers a peaceful residential setting with convenient access to riverside walks, local shops, and everyday amenities. Transport links are outstanding, with Surrey Quays and Canada Water (Jubilee Line & Overground) both within walking distance, providing fast connections to Canary Wharf, London Bridge, and the West End.With the Canada Water masterplan set to establish the area as one of London’s most dynamic destinations for shopping, dining, and leisure, this property represents a superb opportunity for both homeowners and investors alike.

More articles