4 bed terraced house for sale Cottenham Park Road, London SW20

£2,075,000

Key info

  • Status: For sale
  • Type: Terraced house
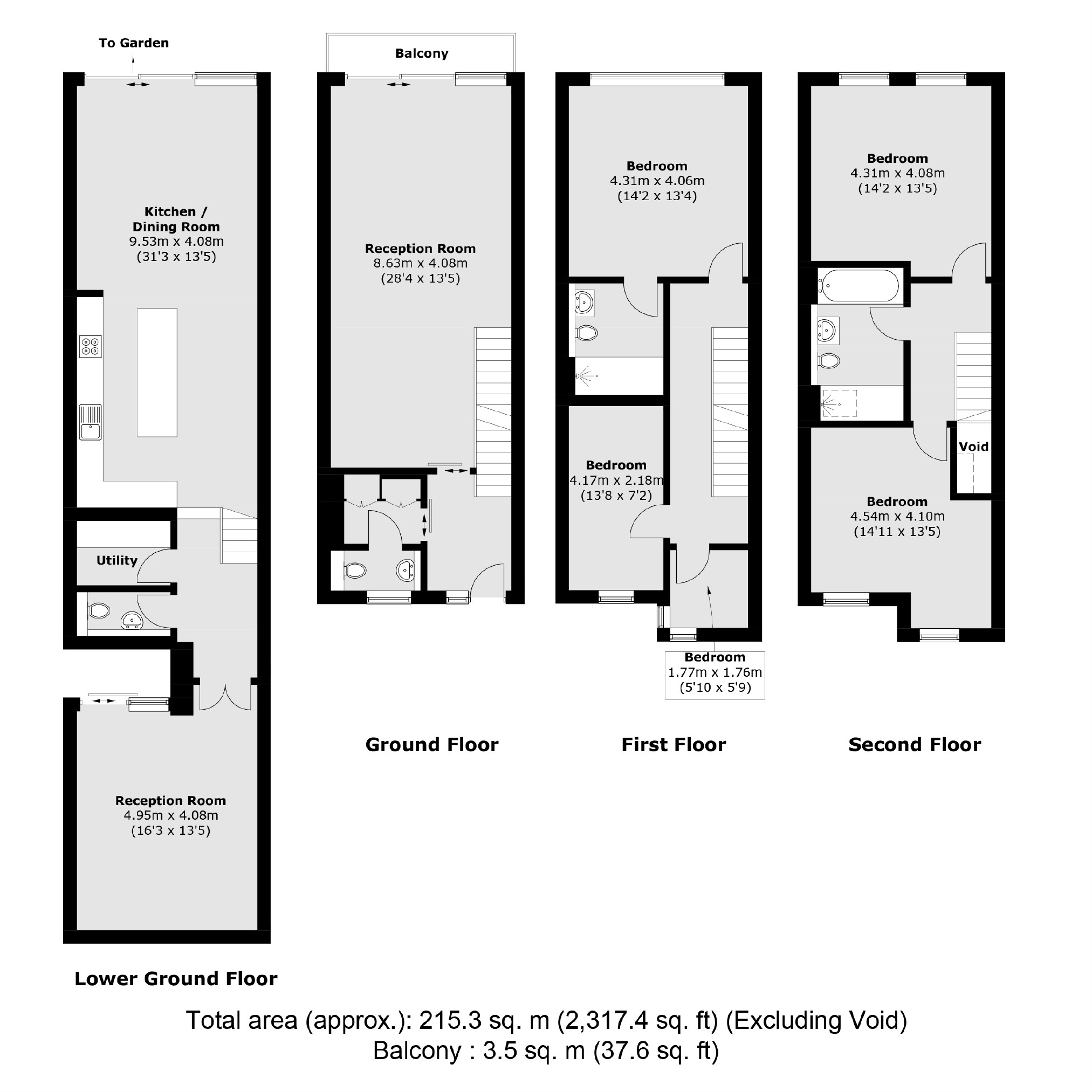
  • Bedrooms: 4
  • Receptions: 3
  • Bathrooms: 2
  • Area: Cottenham Park Road, London, London

Price changes

-9.5% £2,075,000 one month ago
£2,295,000 one month ago

Full description

* Last House Remaining * One of just three bespoke built, four/five bedroom, two bathroom freehold family homes with off-street allocated parking space.Laid out over four generous floors, the wide entrance hall with downstairs W.C and cloakroom leads to the large sunny reception room with balcony, and study nook - Perfect for working from home or after school homework!The lower ground floor features tremendous ceiling heights, offering a multifunctional games/gym/cinema room, W.C, utility room and private patio/lightwell. The open kitchen/ breakfast room has a large waterfall island with German appliances, opens to the south-facing landscaped garden which backs directly onto Holland Gardens.The first and second floors feature four double bedrooms, two bathrooms and a fifth study/children's room or playroom. There is underfloor heating throughout and an incredibly high specification with attention to detail at the forefront of the design.Located on the edge of Wimbledon Village, within close proximity to Wimbledon Common and exceptional schools. Wimbledon Village has a host of boutique shops, delicious restaurants and a vibrant coffee culture. The green open spaces of Cannizaro Park are just around the corner with a range of attractions including a sunken garden, water garden, Mediterranean garden and rose garden.Tenure: FreeholdCouncil Tax Band: BInformation contained within this listing is for guidance only and should be checked and confirmed (prior to proceeding).

More articles