3 bed semi detached house for sale Northwood Park Road, Northwood Park, Bushbury, Wolverhampton, West Midlands WV10

£170,000 offers in region of

Key info

  • Status: For sale
  • Type: Semi detached house
  • Bedrooms: 3
  • Receptions: 2
  • Bathrooms: 1
  • Area: Northwood Park Road, Wolverhampton, West Midlands

Price changes

£170,000 one month ago

Full description

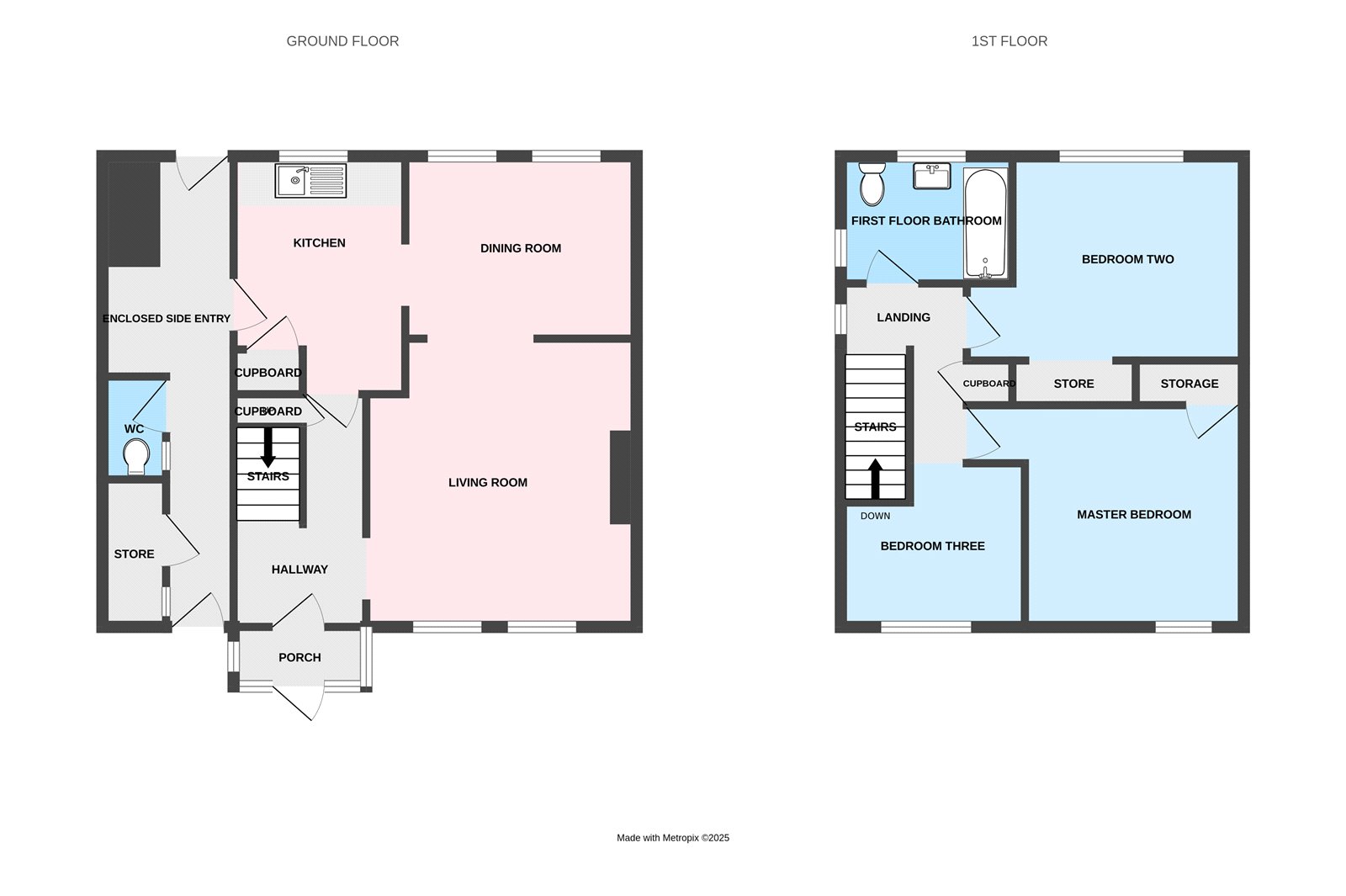
This traditional three-bedroom semi-detached property presents a fantastic opportunity for cash buyers looking for a project.In need of comprehensive internal renovation and modernisation, the property offers well-proportioned rooms, outdoor space and a great location with Northwood Park only a short stroll away where you can have hours of fun in the outside.The ground floor begins with a porch and entrance hallway leading into a front lounge suitable as a comfortable family living area.A separate dining room provides additional flexibility, whether as a second reception space or as part of a future open-plan redesign.The kitchen is positioned to the rear with an enclosed side entry giving direct access to rear garden and the front aspect. A ground-floor W/C adds further convenience.Upstairs, the first floor comprises of three good-sized bedrooms, two of the larger each capable of accommodating double or single beds, along with a family bathroom.The house layout is both practical and versatile, with clear potential for a new owner to redesign to their taste.Externally, the property benefits from front and rear gardens, offering the chance to create attractive outdoor spaces. The rear garden is of a good size, with plenty of scope for seating, planting, or creating a family-friendly environment.Buyers should note that the property is of non-standard construction, which may affect mortgage availability. As such, it is particularly well-suited to cash buyers, developers, or investors looking for a home with strong potential and excellent rental once refurbished.Agents NotesThis property is built of Non-Standard ConstructionThis property is non-standard construction and may limit mortgage fundingMobile coverage from all four major networks available*Ultrafast Broadband available*Services - tbaDriveway Parking*Results provided by Ofcom and correct at time of listing

More articles