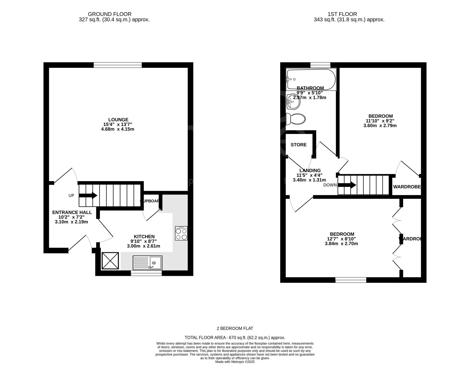
Detailed DescriptionOne of the standout features is free parking, a real bonus in this part of Croydon. The flat should have a dedicated parking spot, often in an off-street car park or perhaps an allocated space within a gated or secure compound. This removes the usual stress of street parking, permit fees, or long walks from public lots-making everyday life a little more convenient, especially if you own a car.The home features a generously sized living area filled with natural light, a modern fitted kitchen with ample storage, two well-proportioned bedrooms, and a contemporary bathroom. Whether you're a small family, professional sharers, or a couple looking for extra space, this property ticks all the boxes.Additional benefits include gas central heating, double glazing, and access to local amenities, excellent transport links (including nearby tram and train stations), and green spaces within walking distance.
The asking rent does not include letting fees. Our standard administration fee (which covers general administration and preparation of paperwork) is £300.00 (£240 + VAT). A security deposit, usually equivalent to six weeks rent, is also payable.
Depending on your circumstances and the property you select, one or more of the following may also be charged to you upfront;
Reference fees (including credit checks, bank, guarantor, previous landlord, etc)
Inventory fees, including check-in and check-out fees
Guarantor arrangement / application fees
Additional occupant fees
Pets disclaimer fees / additional pet deposit
Fees may be charged on a per person or per property basis