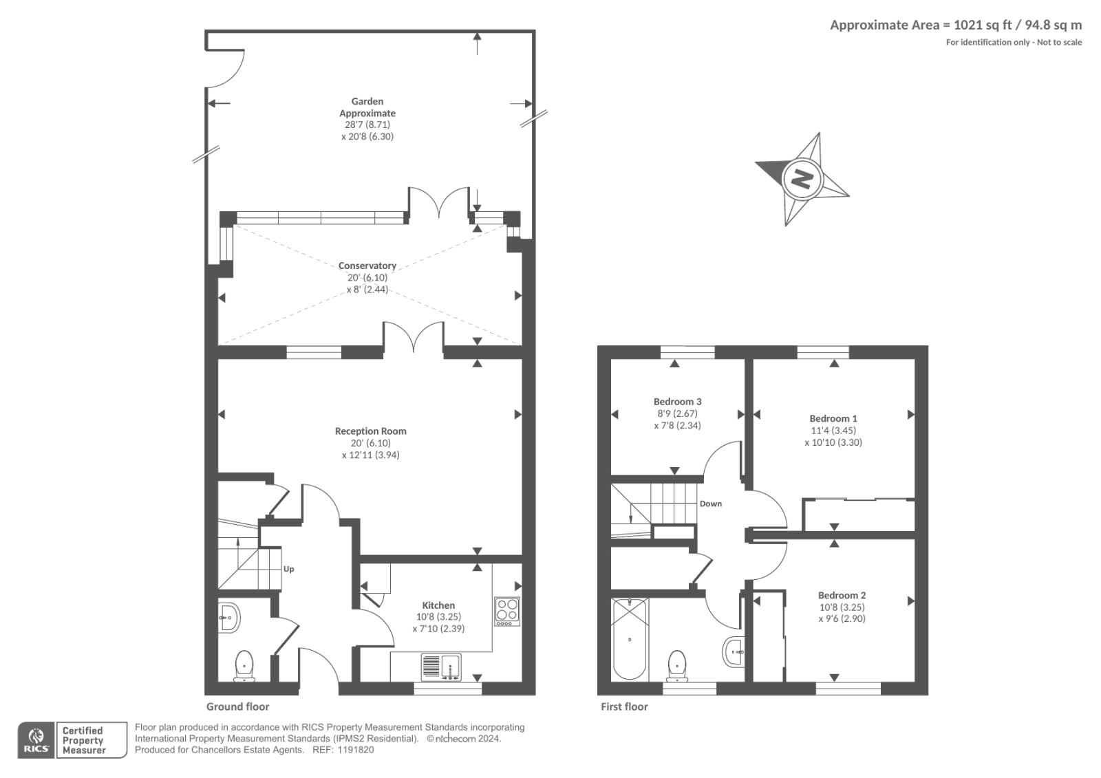
Property DescriptionUnfurnished three bedroom terrace house comprising entrance hallway, kitchen, reception room, conservatory, WC, three bedrooms, bathroom and rear enclosed garden. 0.1 mile from Chipping Norton High Street.Property DetailsThe landlord of this property will consider applications that include use of our Deposit replacement scheme. Please note the terms of this scheme in our guide to tenants which is displayed on our website. Our client is offering the benefit of this scheme within the listed monthly rent for the lifetime of the tenancy.Property reference 05280315
Tenant administration fees are as set out in the Application form. For all tenancies exchanged prior to 1st June 2019 these fees will remain in place until 1st June 2020. Please refer to the application form signed prior to 1st June 2019 for the detail of these fees. All tenancies exchanged from 1st June 2019 will be in line with tenant fee ban legislation and the charges detailed below.
Once your offer on a property is agreed, your application is subject to:
Commitment To Rent Agreement
The Tenant will be liable to pay an amount equal to 1 weeks rent in the event that the tenancy fails to progress for due to an event occurring as set out in the Application Form which details the terms of the Commitment To Rent Agreement
Refundable Holding deposit
A Landlord may require a payment of up to 1 weeks rent, instead of the Commitment to Rent Agreement terms. Cgeal will not be party to any payment arrangements or terms associated with the payment. Tenants will deal directly with the Landlord on any payment arrangements and should not make payment to any cgeal named bank account for these monies. Tenants should ensure they are wholly satisfied that the Refundable Holding Deposit arrangements are in line with current regulations before making any payment
Fees when you vacate
Early termination (where agreed with the landlord)
The outstanding rent payable to the landlord under the tenancy;
£50.00 inc. VAT for the reasonable costs of us carrying out the Early Termination;
£19.98 inc. VAT towards the landlord's administration costs of registering the deposit with the TDS (Tenancy Deposit Scheme) should the landlord be registered with this scheme.
Administration fees for tenancy swap
£50.00 inc. VAT on each occurrence
Tenant Protection
The Chancellors Group of Estate Agents Ltd ('cgeal') is a member of the Tenancy Deposit Scheme - an approved scheme. Chancellors is proud to be a member of Property Redress Scheme. Cgeal is a member of the Propertymark Client Money Protection Scheme.