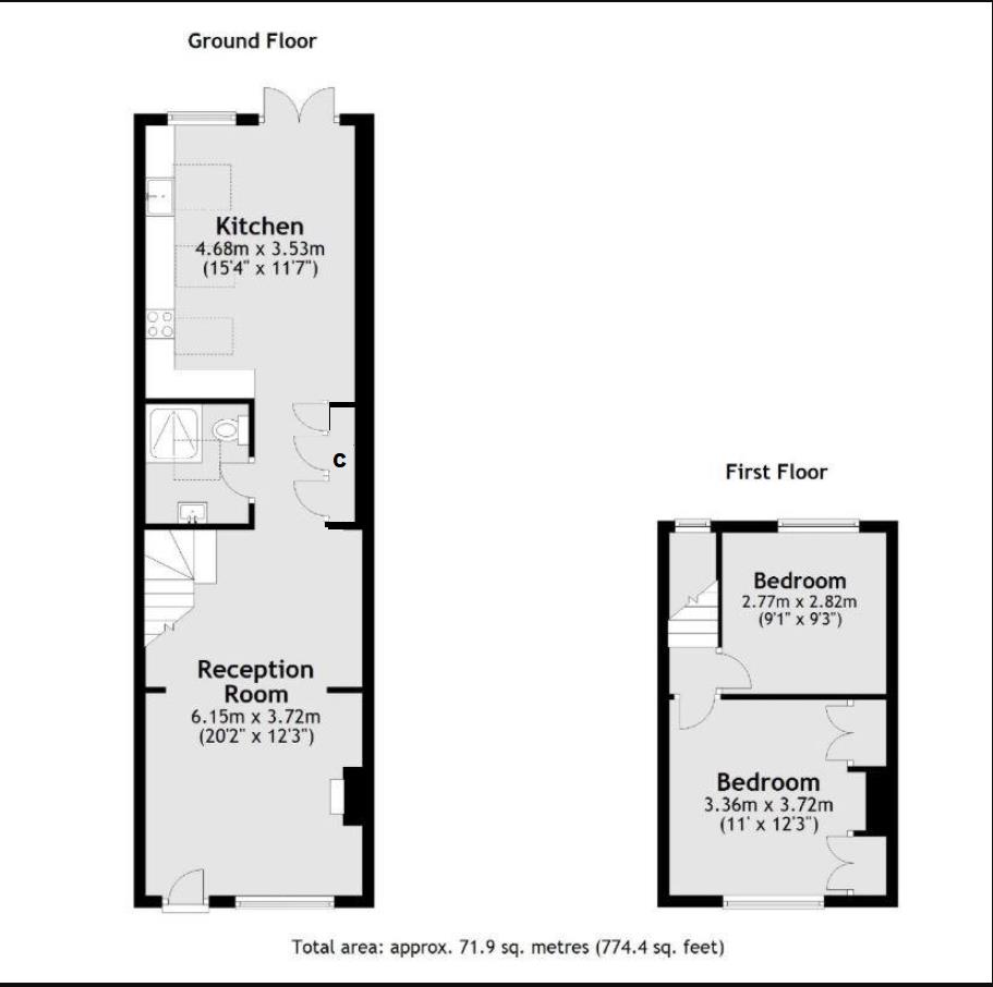
Rawlinson and Webber are pleased to welcome to the market this stunning two-bedroom Victorian cottage, offering stylish designs and high-quality finishes. The living room has been thoughtfully designed with custom alcove shelves and cupboards, perfect for both display and storage. The hallway is equally practical with a newly installed built-in cupboard, ideal for coats and cleaning supplies, and additional space to store larger items. An extended kitchen/dining room is situated at the rear, showcasing high vaulted ceilings with Velux windows, allowing natural light to flood the room. A modern ground-floor shower room and w/c complete the ground floor.Upstairs, the property benefits from two generously sized bedrooms, each beautifully styled. The principal bedroom features two built-in wardrobes, handcrafted by a talented local woodworker, offering ample storage with an added touch of craftsmanship.Externally, the property benefits from a small front garden and a sunny west-facing rear garden with a small patio area, mature lawn and a shed at the rear. This charming cottage combines character and contemporary features, making it the perfect home for those seeking comfort and style.The property is situated in a quiet cul-de-sac on the East/West Molesey border, offering a peaceful residential setting. Nearby amenities include local shops, schools, and recreational grounds, with excellent transport links to London and surrounding areas.
Sales: Standard Sole Agency Fee: 1.5% plus VAT (1.8% inclusive of VAT) Multi-Agency Fee: 2% plus VAT (2.4% inclusive of VAT) Lettings: Holding Deposit - One weeks rent Security Deposit (per tenancy, rent under £50k pa) - Five weeks' rent Security Deposit (per tenancy, rent under £50k pa) - Six weeks' rent Unpaid Rent - Interest at 3% above the Bank of England Base Rate Lost Key or other Security Devices - Tenants are liable to the actual cost of replacing any lost key(s) or other security device(s) Variation of Contract - £50 (inc. VAT) per agreed variation. Change of Sharer - £50 (inc. VAT) per replacement tenant or any reasonable costs incurred if higher. Early Termination - Should the tenant wish to leave their contract early, they shall be liable to the landlord's costs in re-letting the property as well as all rent due under the tenancy until the start date of the replacement tenancy. These costs will be no more than the maximum amount of rent outstanding on tenancy.