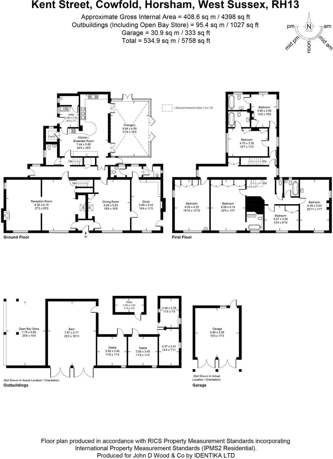
A Historic Country Home with 10 Acres, Pool, Tennis Court & Stables.Set within over 10 acres of stunning grounds, Kings is a remarkable Grade II listed 16th century residence offering peace, privacy, and countryside luxury. Behind its charming red brick façade, this beautifully restored home spans approximately 4,398 sq ft, combining period character with elegant modern living.Inside, exposed beams, inglenook fireplaces, and generous reception rooms create warmth and grandeur throughout. The property features a bespoke kitchen/breakfast room with Aga, an impressive orangery, study, and six double bedrooms—three with en suite bathrooms.Outside, the landscaped gardens include a heated swimming pool, all weather tennis court, boating pond, and extensive lawns surrounded by mature trees. Ideal for equestrian use, the grounds also include stables, paddocks, a barn, and a double garage.
In addition to paying rent for the property, you may also be required to make the following permitted payments:
Holding Deposit (per tenancy) One week's rent. This is to reserve a property. Please Note: This will be withheld if any relevant person (including any guarantor(s)) withdraw from the tenancy, fail a Right to Rent check, provide materially significant false or misleading information, or fail to sign their tenancy agreement (and / or Deed of Guarantee) within 15 calendar days (or other Deadline for Agreement as mutually agreed in writing).
Security Deposit (per tenancy. Rent under GBP50,000 per year) Five weeks' rent. This covers damages or defaults on the part of the tenant during the tenancy.
Security Deposit (per tenancy. Rent of GBP50,000 or over per year) Six weeks' rent. This covers damages or defaults on the part of the tenant during the tenancy.
Unpaid Rent Interest at 3% above the Bank of England Base Rate from Rent Due Date until paid in order to pursue non payment of rent. Please Note: This will not be levied until the rent is more than 14 days in arrears.
Lost Key(s) or other Security Device(s) Tenants are liable to the actual cost of replacing any lost key(s) or other security device(s). If the loss results in locks needing to be changed, the actual costs of a locksmith, new lock and replacement keys for the tenant, landlord any other persons requiring keys will be charged to the tenant. If extra costs are incurred there will be a charge of GBP15 per hour (inc. VAT) for the time taken replacing lost key(s) or other security device(s).
Variation of Contract (Tenant's Request) GBP50 (inc. VAT) per agreed variation. To cover the costs associated with taking landlord's instructions as well as the preparation and execution of new legal documents.
Change of Sharer (Tenant's Request) GBP50 (inc. VAT) per replacement tenant or any reasonable costs incurred if higher. To cover the costs associated with taking landlord’s instructions, new tenant referencing and Right to Rent checks, deposit registration as well as the preparation and execution of new legal documents.
Early Termination (Tenant's Request) Should the tenant wish to leave their contract early, they shall be liable to the landlord's costs in re letting the property as well as all rent due under the tenancy until the start date of the replacement tenancy. These costs will be no more than the maximum amount of rent outstanding on the tenancy.
Tenant Protection Seymours Prestige is a member of Arla/Propertymark which is a client money protection scheme, and also a member of The Property Ombusman which is a redress scheme. You can find out more details on the agent's website or by contacting the agent directly.