4 bed detached house for sale "The Melton" at Fedora Way, Houghton Regis, Dunstable LU5

£549,995

Key info

  • Status: For sale
  • Type: Detached house
  • Bedrooms: 4
  • Receptions: 3
  • Floors: 2
  • Area: Fedora Way, Dunstable, Bedfordshire

Price changes

£549,995 9 months ago

Full description

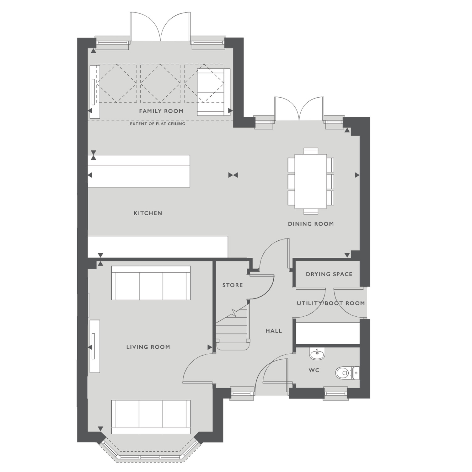
186 The Melton: We'll give you £20,000 towards your deposit+ we'll include upgraded premium kitchen unit doors + stunning stone worktops featuring an undermounted sink + an oven, hob, cooker hood, fridge freezer, washing machine, & dishwasher!* This home benefits from a garage, driveway, & a south facing garden!Four double bedrooms, bay windows & simply stunning kitchen/dining/family area make 186 The Melton an exceptional home. An attractive porched entrance opening into a spacious hall leads through to a roomy kitchen, dining and family area lit by skylight windows and French doors - with another set of French doors from the dining area leading onto the garden. At the front of the house there's a guest WC, utility room and handy storage space under the stairs. Meanwhile, next to the main entrance, the sitting room features a stylish bay window - as does the principal bedroom upstairs. Both the principal bedroom and bedroom two feature en suites, whilst two further bedrooms, the family bathroom and an airing cupboard complete the layout of this home.*Offer is not in conjunction with any other offer or scheme. Please ask our sales consultant for details.†Home Exchange is available on selected homes only. Acceptance is at our sole discretion and not all properties are suitable. We reserve the right to refuse to agree to Home Exchange of your current home and we are under no obligation to give reasons why. Home Exchange may not be available in conjunction with any other offer and is also subject to the terms of your Reservation Agreement with us. As a guide, your current home must not be worth more than 75% of the value of your chosen Countryside home. Reservation fees may vary. For full terms and conditions please click here."‡Smooth Move is available on selected new Countryside Homes only. Acceptance is at our sole discretion. We reserve the right to refuse to agree to Smooth Move and we are under no obligation to give reasons why. We will instruct local estate agents to undertake an independent valuation and marketing advice for your current home before we make you a proposal on a marketing price for your home. The realistic sale price may be lower than an initial marketing price and is based on a sale within a specified timescale fixed by us. You have the final say at the price at which the property is marketed, but Smooth Move will not be available if the price at which you wish to market your current home is higher than we think is realistic or the timescale is too long. You must agree: 1. No party is currently negotiating to purchase your current home 2. No introduction has already been made by another party 3. Not to instruct another estate agent to sell your current home. You may need to leave a full set of keys and agree to access accompanied viewings for potential buyers with the appointed estate agents. You agree that Countryside Homes will determine which estate agent is instructed and the terms of that appointment. It is not guaranteed that a buyer will be found for your current home or that any buyer will be willing to pay the price you want. Countryside Homes may continue to market your chosen Countryside home and reserves the right to take a reservation on this home until the sale of your current home to a third party is agreed and you pay the reservation fee on your chosen Countryside home. In this case, if available, an alternative home may be offered, but there is no obligation on either party to proceed with Smooth Move. Any sale of your current home to a third-party buyer is at a price approved by you. A reservation fee is payable to Countryside Homes for the purchase of your chosen Countryside home at the agreed price, when you agree a sale on your current home. You agree only to confirm agreement of sale with a purchaser who can achieve an exchange within 35 days and who has been financially qualified to proceed with the purchase of your current home. On the simultaneous legal completion of the sale of your current home and the purchase of your new Countryside home, we will pay the estate agents fees. Please note your buyer could cancel prior to legal exchange of contracts for the sale of your current home. In this instance, Countryside Homes retains the right to cancel the purchase of your chosen home and retain the agreed proportion of the reservation fee in accordance with your reservation agreement. We reserve the right to withdraw Smooth Move if an acceptable buyer is not found within the specified period. Should we secure a purchaser for your current home on your behalf and you do not proceed to purchase a Countryside home, you may be liable to pay all Estate Agent fees. Reservation fees may vary dependent upon the location of your new Countryside home. An upfront fee of £500 is required, all of which is refundable against the reservation fee and purchase price of your new Countryside home. If you choose not to purchase, Countryside Homes will retain up to fifty percent of the fee to cover reasonable administrative and other costs incurred in processing and holding the reservation. Smooth Move is available on selected plots only.RoomsGround floorKitchen (4.07m x 2.85m 13'4'' x 9'4'')Living Room (4.78m x 3.49m 15'8'' x 11'5'')Family Room (4.07m x 2.98m 13'4'' x 9'10'')Dining Room (3.63m x 3.53m 11'11'' x 11'7'')First floorMaster Bedroom (3.49m x 2.92m 11'5'' x 9'7'')Bedroom 2 (3.41m x 2.70m 11'3'' x 8'10'')Bedroom 3 (3.45m x 2.39m 11'4''x 7'10'')Bedroom 4 (3.03m x 2.36m 9'11'' x 7'9'')About Coppice HillWhat's my budget? Check your affordability Click here Opening HoursMon: 10:00 - 17:00, Tue: 10:00 - 17:00, Wed: 10:00 - 17:00, Thu: 10:00 - 17:00, Fri: 10:00 - 17:00, Sat: 10:00 - 17:00, Sun: 10:00 - 17:00

More articles