5 bed terraced house for sale Homerton Road, Luton LU3

£525,000

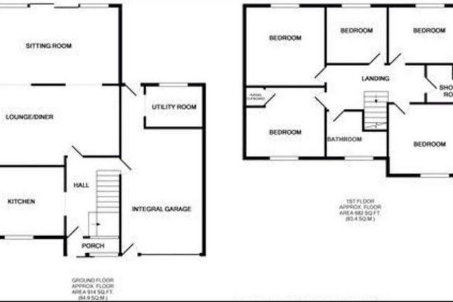
Key info

  • Status: For sale
  • Type: Terraced house
  • Bedrooms: 5
  • Receptions: 1
  • Bathrooms: 2
  • Area: Homerton Road, Luton, Bedfordshire

Price changes

£525,000 9 months ago

Full description

Apex Sales and Lettings Ltd are delighted to present this magnificent extended 5-bedroom, 2-bathroom property located on the desirable Limbury area.Internally the property briefly comprises an entrance hall, extended lounge diner/sitting room with feature fire place, kitchen comprising a range of wall and base units and space for all appliances. There is also utility room for laundry fitted with sink and wall units.To the first floor the landing offers a large space. There are five double bedrooms with fitted wardrobes to the master.Externally there is a driveway for 3/4 cars, carport leading to a garage, and rear garden.Located in this sought after area of North Luton. Schools locally come with high reputations including the much favoured Icknield schools. There are parks nearby with an array of shops, bus routes and other amenities within quarter of a mile. Leagrave mainline train station which has fast links to London is within half a mile and the M1 motorway is within 1.2 miles.Property must be viewed to be appreciated.

None available

More articles