4 bed town house for sale Beech Tree Crescent, Blaina NP13

£359,950 offers in region of

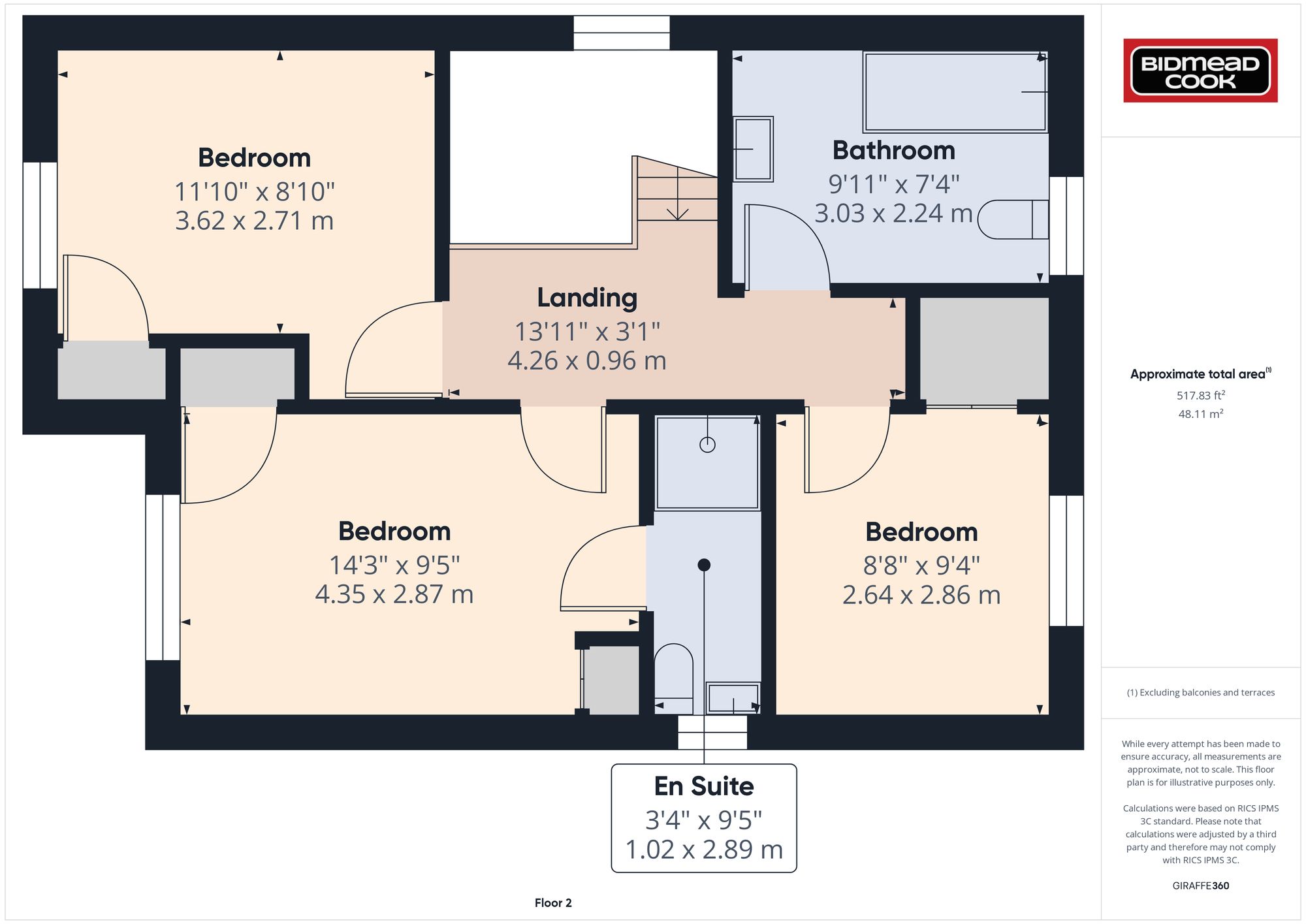
Key info

  • Status: For sale
  • Type: Town house
  • Bedrooms: 4
  • Receptions: 2
  • Bathrooms: 3
  • Area: 24 Beech Tree Crescent, Abertillery, Blaenau Gwent

Price changes

£359,950 7 months ago

Full description

Detached town house with accommodation arranged over three levels lending itself to the possibility of multi-generational living. The property comprises an entrance hallway, office/bedroom, sitting room/bedroom, utility room, cloakroom/wc, lounge with two sets of French doors leading out into the rear garden, open plan kitchen/dining/living room with French doors opening out onto a balcony enjoying views to the front aspect, family bathroom, 3/5 bedrooms and en-suite shower room to master. The property benefits from double glazing, gas central heating system, front & rear gardens, garage and two driveways providing off road parking for several vehicles.EPC Rating: CLocationBlaina has a small selection of shops and public houses. A wider range of shops and supermarkets are available at the nearby towns of Brynmawr and Abertillery. The railway station is approximately 4 miles away at Llanhilleth.DisclaimerWhilst every effort is made to ensure our sales particulars are fair, accurate and reliable, they are only a general guide to the property. Measurements indicated are supplied for guidance only. Services or any equipment/appliances at the property have not been tested.

More articles