12 bed land for sale Newmarket Road, Cambridge CB5

£1,500,000 offers over

Key info

  • Status: For sale
  • Type: Land
  • Bedrooms: 12
  • Area: Newmarket Road, Cambridge, Cambridgeshire

Price changes

£1,500,000 2 months ago

Full description

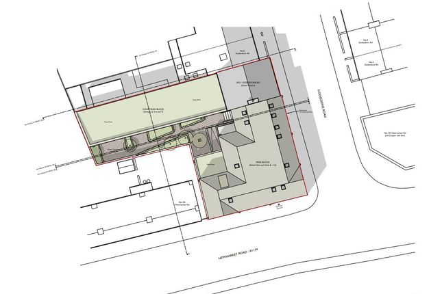
Full planning approval for a mixed use redevelopment project in a central Cambridge location. Comprising of a ground floor retail space and 12 1xbed residential units the site offers an immediate opportunity with the benefit of existing rental income.PlanningGranted on 5th May 2023 planning reference number 22/04356/ful permitted the conversion and extensions to the existing buildings including demolition of the existing block to the rear of 1 Godesdone Road to deliver a mixed use development comprising a ground floor retail space and 12 1xbed residential units (net increase 9) to the rear and above along with cycle parking and associated infrastructure.The SiteThe site extends to approximately 0.12 acres and currently comprises two retail units, three residential units and workshops laid around a small courtyard to the rear. The current property yields a rental income in the region of £56,740 per annum. The site is accessed between the retail unit at 185-189 Newmarket Road and 1 Godesdone Road, under a canopy. The completed scheme will comprise a 1,237 sq ft retail unit on the ground floor, with 5,575 sq ft of residential accommodation plus ancillary space. The proposals retain most of the courtyard space and seek to improve the layout to provide shared amenity space.LocationThe site is conveniently located on Newmarket Road, a main route from the east into Cambridge city centre, providing excellent access to the A14 and M11. The site is located within the Central Conservation Area; Godesdone Road is predominantly residential in character, while Newmarket Road is host to a number of commercial and residential buildings. Newmarket Road has undergone a significant regeneration with a number of developments taking place over the last few years, including a new Easy Hotel opposite the subject site. There are a number of local amenities nearby, including the Beehive Centre, Cambridge Retail Park, the Grafton Centre as well as a number of independent shops and restaurants. The property is within walking distance of Cambridge city centre and its wide array of amenities. Cambridge Train Station is 1.2 miles from the site, with regular services to Kings Cross / St Pancras International, London Liverpool Street, Stansted Airport and the Midlands.Agents NotesTenure - FreeholdCouncil Tax Band - Various for individual unitsNumber & Types of Room - Please refer to planning drawingsSquare Footage - Please refer to planning drawingsParking - Off street with gated accessUtilities/servicesElectric Supply - MainsWater Supply - MainsSewerage - MainsHeating - GasBroadband - Fibre availableMobile Signal/Coverage - GoodFlood Risk - None notedRights of Way, Easements, Covenants -None notedConservation Area - YesPlanning Permission - 22/04356/ful

None available

More articles