6 bed detached house for sale The Limes 219- 221 High Street, Cottenham, Cambridge CB24

£1,100,000

Key info

  • Status: For sale
  • Type: Detached house
  • Bedrooms: 6
  • Receptions: 4
  • Bathrooms: 3
  • Area: 219 High Street, Cambridge, Cambridgeshire

Price changes

-12.0% £1,100,000 2 months ago
£1,250,000 4 months ago

Full description

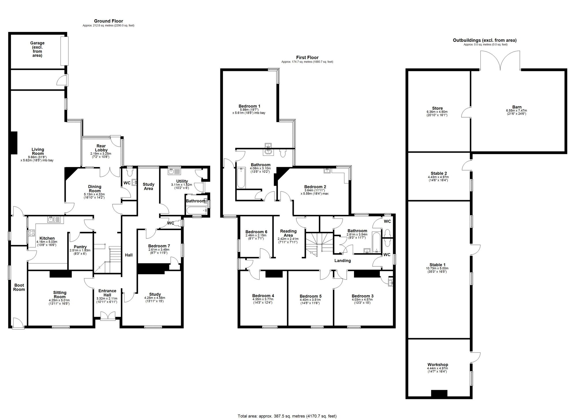
Stone steps lead to a beautiful Victorian front door, featuring original stained glass panels and ornate detailing, setting the tone for the period charm found throughout this magnificent home. The entrance hall is equally impressive, with high ceilings and intricate cornicing, characteristic of the era. This is continued within the two principal reception rooms, both of which feature sash windows and original fireplaces, stripped wood floors and picture rails. Leading to the breakfast room, which includes wood panelling to the walls and ceiling and an original cast iron fireplace with a decorative tiled surround and timber hearth, with two storage cupboards, a ground floor WC and access to the rear porch and courtyard beyond.The kitchen is fitted with a comprehensive range of wall and base units with a built-in double oven, hob and dishwasher, a wall-mounted gas boiler (installed 2023), and a useful walk-in pantry which is fitted with full-height bespoke wood cabinets and includes an original brick weave floor. Also leading from the kitchen is a useful boot room. The remainder of the ground floor is currently configured to provide a self-contained annex. Comprising a fully equipped kitchen, a bathroom, a bedroom/sitting room and a study area. Alternatively, if not required, it can easily form part of the main house.The property was extended in the 1930’s, and typically the architectural character of the interwar period boasts a classic brick façade complemented by rendered upper walls Within this additional space is a rather grand living room, located at the rear of the house with views from a generous bay window into the courtyard, attractive wooden beams to the ceiling and floors, wood floors and a stunning decorative wood fireplace, serving as a sophisticated focal point in the main living area. Leading from the living room is a wood panelled room, with shelving.The exquisite Victorian staircase, a true centrepiece of the home, is thought to be constructed from mahogany or oak. The first floor comprises three generous double bedrooms located to the front aspect, with sash windows and cast iron fireplaces. A interesting feature found within the middle bedroom, is a delightful hand-painted mural of children playing and is thought to date back to the 1940s. There is a fourth bedroom, a family bathroom and a middle landing with built-in storage cupboards. Leading to the double-storey extension at the rear of the house, which is accessed via the middle landing, there are two further double bedrooms with 1930’s features such as picture rails and wood floors, plus a more recently fitted family bathroom.Outside areasThe Limes is situated along the picturesque High Street, within the conservation area of this bustling and well-served Cambridgeshire village. The walled front garden includes established and well-maintained lime trees. Alongside the property is a five-bar, gated entrance leading to the driveway, which provides ample parking and access to the adjoining garage. Leading along the side of this large and mature garden is a workshop, an open stable/barn measuring over 10.5m and a further barn with mezzanine floor, offering great potential for an home office/gym or studio. There is a large, secluded expanse of lawn at the rear of the property featuring mature trees including three horse chestnuts.Continuing along the driveway to a further additional garden which is laid to lawn, with mature trees and two timber clad barns. Offering potential for development, STP. The double-storey threshing barn measures 45 sqm and adjoins a second double-storey barn with a mezzanine floor. Subject to the necessary consent, there could be the opportunity to convert the barn to a potential separate dwelling/annex.LocationCottenham is one of the largest villages in Cambridgeshire with many facilities available and a wide range of properties, from period townhouses on the high street to more modern developments on the outskirts of the village. Transport links are excellent as the village is approximately 3 miles (4.83 kilometres) from the A10 and A14. In addition, the village has a regular bus service to both Cambridge and Ely.Cottenham Primary School is located on Lambs Lane and Cottenham Village College provides both secondary schooling and a sixth form, as well as adult learning classes and numerous after-school events.Facilities include a gym, sports hall, tennis courts and sports field which are commonly used by the local community. Cottenham has a broad range of amenities including two doctors’ surgeries, a dental surgery, a library, two mini supermarkets, a newsagent with a post office, pharmacy, butchers, bakers, a fruit, flower and vegetable store, community coffee shop, fish & chip shop, a hairdressers, barbers and beauty salon, two pubs, an Indian restaurant and a village hall.

More articles