6 bed detached house for sale Manor Farm, Main Street, Coveney Sat Nav CB6

£1,500,000 guide price

Key info

  • Status: For sale
  • Type: Detached house
  • Bedrooms: 6
  • Receptions: 4
  • Bathrooms: 2
  • Floors: 2
  • Area: Main Street, Ely, Cambridgeshire

Price changes

£1,500,000 7 months ago

Full description

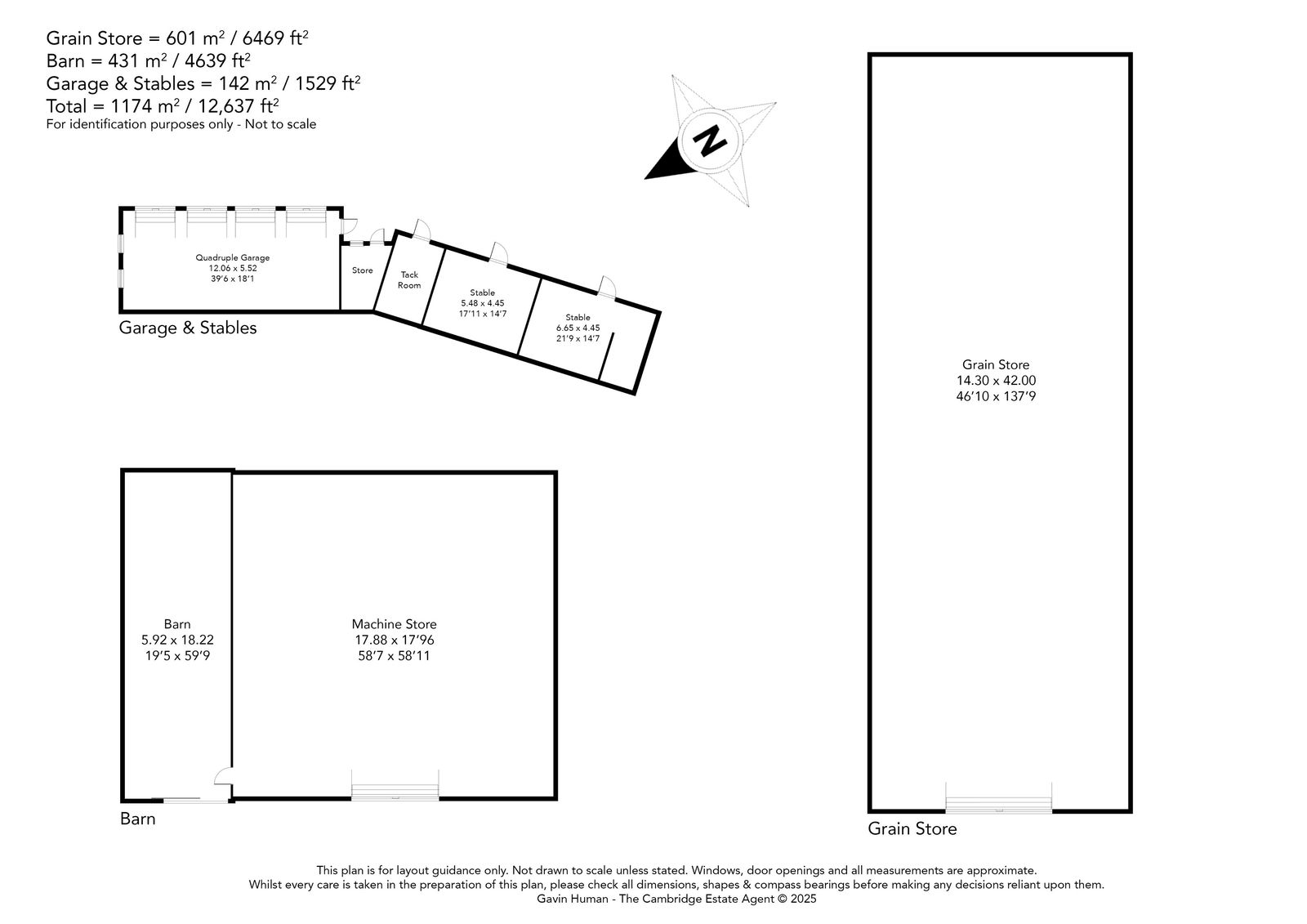
Quote GH0600Entering through the original front door takes you into the main entrance hall, and is light and airy with a double-glazed sash window overlooking the front lawn, with the key focal point a centralised balustrade staircase rising to the first floor. Doors lead off to the dining room, living room and open plan kitchen. The entrance hall is of sufficient size to have previously been used as an office, and is currently used as a music roomThe peaceful sitting room is away from the busy hub of the house and enjoys a dual aspect with two double glazed sash windows overlooking the front courtyard and then a further window with an easterly aspect over the gardens and land beyond.The dining room has been host to many very happy family occasions, particularly in the winter when the fire is lit. This room was previously used as the living room, providing an option for new owners to change the configuration. The dining room enjoys a dual aspect with two double glazed sash windows overlooking the garden to the east and a further double glazed sash window overlooking the rear patio. There is a door leading to the family snug.The open plan living dining kitchen used to be three separate rooms but following the extensive modernisation and refurbishment, it has now been opened up creating a central and modern living space. An outstanding feature is that whether prepping food at the stylish island or enjoying a coffee at the breakfast bar, you can enjoy uninterrupted views through patio doors across the garden and open fields.Laminate wooden flooring leads you through this area. There is a woodblock breakfast-bar that contrasts nicely with the rest of the kitchen and creates an additional seating area that accommodates high stool seating for four or five people.The kitchen area offers a bespoke range of base and eye-level storage units with a feature centralised workstation, which has integrated AEG induction hob and a concealed fitted Neff extractor hood. It also comprises a range of soft-close drawers and integrated pop-up power points, ideal when needing to use food mixers or similar appliances.Also in the kitchen area are additional integrated appliances including a Neff dishwasher, three built-in Neff ovens with a further built-in Neff Combi oven microwave and grill. There are patio doors leading out to the rear and double glazed sash windows overlooking the front courtyard, ensuring natural light throughout the day. There is an additional utility cupboard housing the hot water cylinder.From the kitchen, steps descend into a snug area and a cosy inset log burner. Here there are patio doors leading out onto the rear patio and on a clear day offers views towards Ely Cathedral.There are two extra doors: One (that is currently not in use) leads through to the dining room, and another in the kitchen area that opens to the courtyard.To the other side of the kitchen is the boot room and utility area, which is accessed from the front drive. It is this entrance that is used as the main entrance by my clients due to the practicality of it opening to the front courtyard. There is a double glazed window to the front and an entrance door, and a range of full-width and full-height cupboards and storage. There is a further cupboard which houses the oil fired boiler, which was previously serviced in 2025.The utility room offers ample work surfaces, base and eye-level storage cupboards, plumbing for washing machine and tumble dryer and a walk-in storage closet. A stable style door leads to the rear patio.First floorFrom the original entrance hall, a balustrade staircase takes you to the first floor landing with doors that lead off to five of the bedrooms and access to the loft. The higher than usual ceilings help to create a feeling of space.The main bedroom is located at one end of the house and benefits from a dual aspect with one window overlooking the front courtyard, and a double-glazed sash window overlooking the garden to the east, which my client says offers picturesque sunrises. The room benefits from twin fitted wardrobes with case cupboards over. The ensuite shower room has been beautifully refitted, with wood panelling surround to dado height and offers a white suite consisting of a wash hand basin, low-level flush WC and walk-in double shower cubicle with sliding doors.Bedroom two is located at the other end of the landing and again enjoys a dual aspect with two double-glazed windows.Bedroom three has a lower ceiling than the others, but enjoys beautiful far-reaching views over the rear garden and land.Bedroom four is a large bedroom with a window overlooking the courtyard. This is a ‘walk-through’ room to bedroom five. This allows the possibility of creating a bedroom with an ensuite living room for a teenager or an upstairs living room/library.Bedroom six has a double-glazed sash window overlooking the garden to the east.The refitted family bathroom is of good size and benefits from a low-level flush WC, wash hand basin, dual-ended bath with centralised mixer taps, and a shower over. There is a sash double-glazed window overlooking the garden to the east.Loft access from the main landing is via a drop-down ladder. This could make a substantial additional living space, having newly installed double-glazed windows. It could be converted into a games room or office for those working from home, subject to relevant planning consent.OutsideTo the rear there is an enclosed family garden that maximises the views whilst also providing a dedicated and safe space for family gatherings and entertaining without compromising the views. There is a paved patio and a lawn area and a further covered area via the timber framed gazebo that offers shade and shelter. There is gated access through the post and rail fencing to the fields beyond and a further gate giving access to the garden to the east.Approaching the house from the main road, you sweep through an electric gate (with brick pillars to either side) down into a main courtyard, which provides ample parking and turning area. There is access to a detached quadruple garage with up and over doors and benefits from electric light and power. Inside the garage it is open plan and in the past has been internally decorated with drapes and used as a party room for various family celebrations.. To the side of the garage there is an additional store and a pedestrian gate leading to the main agricultural/equestrian yard. As previously mentioned, my clients commonly use the access door to the boot room as their main entrance door on a daily basis.Access to the main agricultural/equestrian yard is independent to the main house and is through matching electric gates and provides ample hard-standing for turning and parking of large vehicles, including horse boxes and lorries.There are a number of agricultural outbuildings which subject to the relevant consents, could possibly be converted for equestrian use and these includegrain store - A modern steel-framed building measuring approximately 46'10 x 137'9 with concrete flooring, roller shutter and personnel door to the front.Machinery - general store 58'7 x58'11 a concrete-framed building with concrete floor, brick walling, and corrugated asbestos cladding.Further barn 19'5 x 59'9 concrete frame building with concrete floor, brick walling and corrugated asbestos cladding.There is also a former stable block consisting of three stables which could potentially be converted to an annexe of office accommodation subject to the relevant planning.Key information : Manor Farm, CoveneyProperty Type Detached FarmhouseBedrooms SixCouncil Tax Band GSquare footage House 3207 sqftGrain Store 6469 sqftBarn 4639 sqftGarage and Stables 1529 sqft(app approx)EPC Rating naAge 16th CenturyLast sold date naTitle Number CB295807Plot size 8.78 acres (sts)Heating Oil Fired Central HeatingTenure Freeholdlocal areaLocal Authority East Cambs District CouncilFlood Risk River & Seas Very LowFlood Risk surface water Very LowConservation Area NoconnectivityEstimated broadband speeds:Standard 2 mbpsSuperfast 80 mbpsUltrafast 1800 mbpsCable/Satellite TV availabilityBT YesSky YesVirgin NoMobile Signals (based on calls indoors)EE Amber3 (Three) RedO2 RedVodafone Amber● Green - Likely to have good coverage.● Amber - You may experience some problems.● Red - You should not expect to receive a signal.SchoolsPrimaryRackham CofE Primary 2.05 milesDownham Feoffees Primary 2.73 milesEly St Johns Community Primary 2.82 milesSecondaryWitchford Village College 1.98 milesEly College 2.74 milesKings Ely (Private) 3.43 milestransport (national)National Rail StationsEly 3.79 milesManea 5.87 milesTrunk Roads/MotorwaysM11 J14 13.39 milesM11 J13 14.64 milesM11 J12 16.16 milesM11 J11 17.85 milesAirports/HelipadsCambridge Airport 19.6 milesStansted airport 36.41 milestransport (local)Bus stopsShort Lane 0.13 milesMain Road 0.27 milesHale fen Lane 1.08miles10 year history of average house prices by property type in CB6Detached +86.33 %Semi-Detached +84.48%Terraced +76.36%viewing arrangementsBy appointment only. Call or text during or after office hours and quote GH0600remote viewing tour:Traditional property viewings are still vital when it comes to finding the right house. However, making these arrangements can be tricky and complicated, juggling work and home life commitments, or simply finding enough time if moving into a new area and traveling some distance.Booking a Remote Viewing Tour puts you firmly in control. Arrange a day and time that is convenient for you to “look around” and I will arrange for my client to go out and then be at the property at the appointed time to walk you around the house using WhatsApp or Facetime. The Viewing Tour can be as quick or as long as you like, making sure you have a good look round, focussing on the rooms that are important to you. This will hopefully help you decide to arrange a normal viewing at a later date or after office hours.Have you got A house to sell:If you are thinking of moving and have yet to put your house on the market, or if you are on with another estate agent and have yet to find a buyer, I would welcome the opportunity of sharing my 30 years of estate agency experience with you. Please call me and quote GH0600 for a free, confidential valuation and marketing review with no obligation.Please note -Contains public sector information licensed under the Open Government License v3.0. The information contained within this report is for general information purposes and to act as a guide.Sprift Technologies aggregate this date from a wide variety of sources and while we endeavour to keep the information up to date and correct, we make no representations or warranties of any kind, express or implied, about the completeness, accuracy, reliability, of the information or related graphics contained within this report for any purpose. Any reliance you place on such information is therefore strictly at your own risk. In no event will we be liable for any loss or damage including without limitation, indirect or consequential loss or damage, or any loss or damage whatsoever arising from loss of data or profits arising out of, or in connection with, the use of this report.

More articles