Land for sale Old Houghton Road, Hartford, Huntingdon, Cambridgeshire PE29

£1,600,000 From

Key info

  • Status: For sale
  • Type: Land
  • Area: Old Houghton Road, Huntingdon, Cambridgeshire

Price changes

£1,600,000 one month ago

Full description

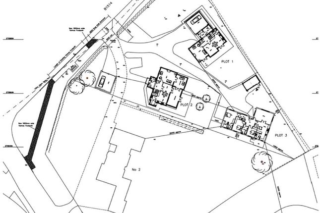
The Site A detached bungalow set in a generous 1.5acre plot with full planning permission for the erection of two detached houses with garages and a 3 bedroom detached bungalow with garage. The site offers scope for further planning gain subject to planning approval.This fantastic site is within close proximity to essential amenities such as schools, a train station, Hinchingbrooke Hospital, and the motorway.Planning Consent Approved by Huntingdonshire District Council the land to the North benefits from implemented consent, including cil paid, for three additional dwellings.Approved under two separate consents, 18/00089/ful permits a three bedroom detached bungalow of circa 1,700sqft and 16/00597/ful permits two detached houses with garages. Plot 1 being circa 2,200sqft and plot 2 circa 2,500sqft. All three are accessed from Main Street/ B1514.The currently approved units have little impact on the bungalow itself which benefits from its own access from Old Houghton Road. The bungalow offers scope for enhancement or potential for further development - subject to planning approval.New Homes For information regarding New Homes sales values, please contact: Jason Capel on / Material Information Tenure - FreeholdCouncil Tax Band - GElectric Supply - MainsWater Supply - MainsSewerage - MainsHeating - GasBroadband - Fibre to cabinetMobile Signal/Coverage -GoodFlood Risk - Flood Zone 2Conservation Area - YesPlanning Permissions - 16/00597/ful and 18/00089/ful

None available

More articles