9 bed château for sale Three Holes, Wisbech, Norfolk PE14

£1,000,000 offers over

Key info

  • Status: For sale
  • Type: Château
  • Bedrooms: 9
  • Receptions: 5
  • Bathrooms: 3
  • Area: -, Wisbech, Cambridgeshire

Price changes

£1,000,000 one year ago

Full description

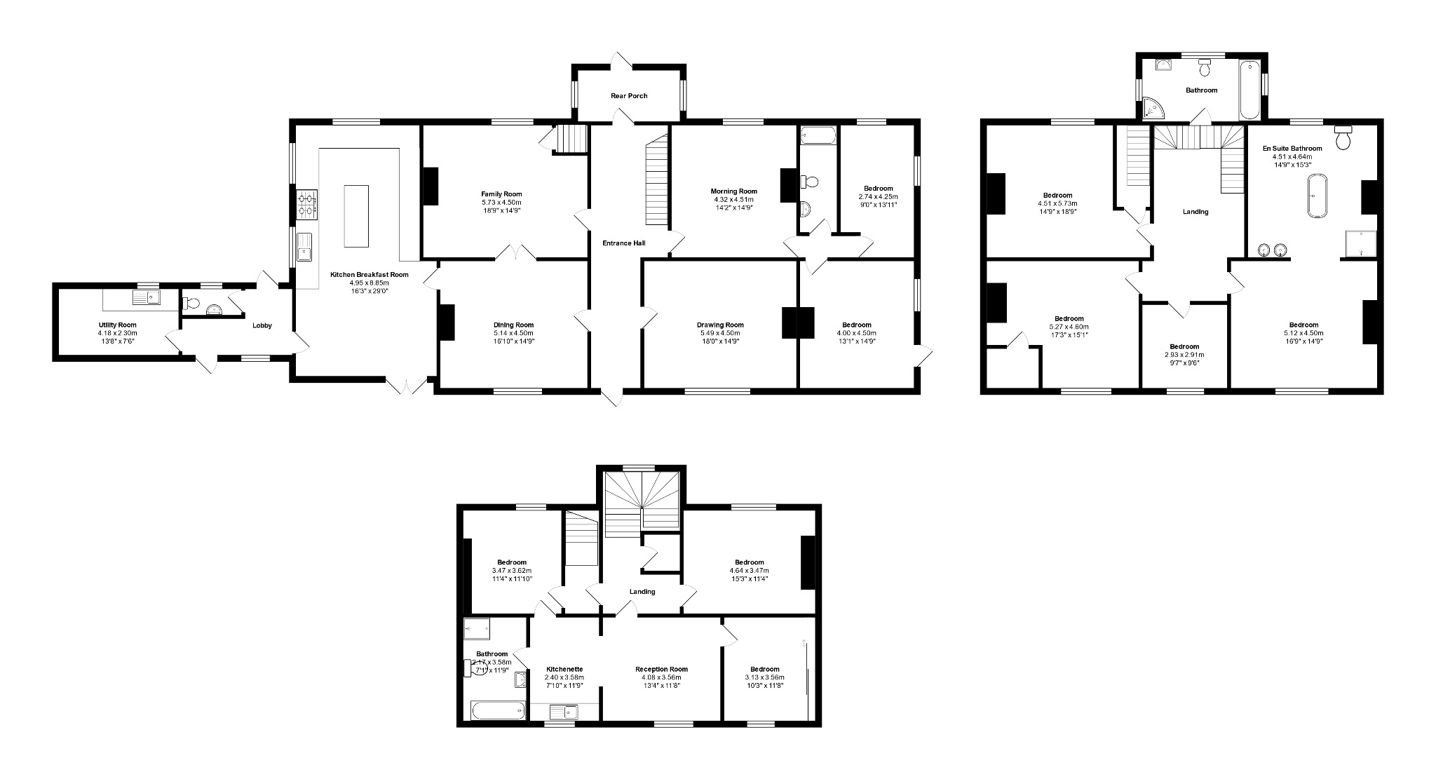
An Impressive Georgian Farm House Boasting Grounds Of Around 3.5 Acres (Stms)The Norfolk Agents are pleased to offer to the market this fantastic Grade II listed farmhouse which has impressive living accommodation of over 4700 square foot. Set within grounds of approximately 3.5 acres (stms) this truly unique home must be seen to be appreciated. Currently used as a successful holiday let it boasts many original Georgian features including eye catching sash windows and feature fireplaces whilst the grounds and gardens are equally impressive!Accommodation:Step inside in to this superb home and visitors are immediately taken aback by the grand and welcoming feeling which it exudes, the ground floor is accessed via the entrance hall, there are four reception rooms in total on this floor all boasting feature fire places, there is a drawing room and a morning room along with both a formal dining room, perfect for entertaining and a family room too. The stunning kitchen dining room is spacious and well equipped whilst leading off from here is a side lobby, WC and a utility room. There are also two generously sized bedrooms on the ground floor sharing a wet room which is fitted with a three piece suite.The stairs lead up to the first floor which boasts four further bedrooms, the master bedroom which is particularly enviable enjoys an adjoining en suite which has a free standing bath and twin hand wash basins, this fantastic space really does require in person to be fully appreciated. Bedroom two which is also found on this floor has an en suite shower room whilst the main bathroom is to the rear of the property.On the second floor are three bedrooms along with an additional reception room and a kitchenette, this floor is served by a four piece bathroom, this floor could be used as a self contained annexe space.Outside:Lode Hall enjoys approx. 3.5 acres of outside space (stms), with established and mature parkland grounds which are largely laid to lawn with a range of trees. The property is accessed via a sweeping driveway which offers plenty of parking for many vehicles. There is also a frame for a former piggery which could be converted for a variety of uses.Services:This home has mains electric, mains water and has a septic tank drainage system. There is lpg heating.Council Tax Band: Currently used as a holiday let so due to current use, business rates are currently payable and a review of the council tax banding will be undertaken at which stage the property is sold.EPC Rating: This property is exempt as it is Grade II listed.1. To comply with the Money Laundering Regulations, we must verify your identification documents and source of funds. These checks are carried out by Coadjute, a regulated third-party provider. A £45 fee (+ VAT) per client applies to cover administration and verification, payable at the outset.2. While we endeavour to make our sales details fair, accurate and reliable, they are only a general guide to the property. If there is any point which is of particular importance to you, please contact the office and we will be pleased to make further investigations.3. The measurements indicated are supplied for guidance only.4. Please note we have not tested the services or any of the equipment or appliances in this property. We strongly advise prospective buyers to commission their own survey or service reports before finalising their offer to purchase.5. These particulars are issued in good faith but do not form part of any offer or contract. The matters referred to in these particulars should be independently verified by prospective buyers or tenants. The norfolk agents limited nor any of its employees has any authority to make or give any representation or warranty whatsoever in relation to this property.”

More articles