7 bed land for sale Edge, Malpas, Cheshire SY14

£1,575,000

Key info

  • Status: For sale
  • Type: Land
  • Bedrooms: 7
  • Receptions: 4
  • Bathrooms: 3
  • Area: Edge, Malpas, Cheshire

Price changes

£1,575,000 28 days ago

Full description

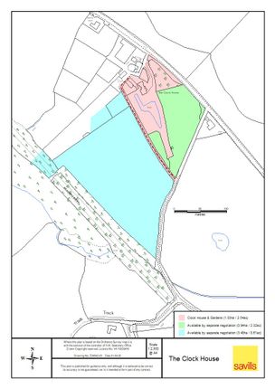
An impressive Victorian house with adjoining early 19th Century carriage house in delightful gardens and grounds with the option of additional landDescriptionThe Clock House is a substantial and impressive family house which has been carefully maintained by the current owners. It stands in lovely, private gardens and grounds, with a pond as a centre piece and is accessed via two drives, with the long ‘Malpas’ drive bisecting open fields which are available in addition.The front door opens into a reception hall with ornamental part-stained glassed windows and door, a stone fireplace, part wood panelled walls and original wooden staircase. It serves the main reception rooms, being an elegant drawing room with a substantial bay window and views over the garden, a dining room and study with French doors opening onto the garden. The contemporary Mark Wilkinson family kitchen lies at the heart of the house and has an excellent range of storage units, integrated appliances and an island unit and links to a pantry and utility/boot room. Beyond is a games room/sitting room and a cloakroom completes the ground floor accommodation. On the first floor is an impressive principal bedroom with ensuite bathroom, a guest suite, five further bedrooms and a family bathroom. Overall, it is an excellent family house, brimming with charm and character.The beautiful 18th century Carriage House is Grade II Listed and is currently arranged as garaging, storage, stabling and a gardener’s WC with hobby and office space above. A roof turret sits on top of the structure housing a clock believed to have been manufactured by renowned clock makers jb Joyce. An application to Cheshire West and Chester Council was approved on 8 February 2017 under reference no. 16/02258/ful and consent exists for the Carriage House's conversion into a four-bedroom dwelling, offering a range of options for the purchaser. Attached at the rear is steel portal structure housing a swimming pool.The land (available in addition)Plot 1 at 2.32 acresPlot 2 at 8.61 acresThe land comprises two fields with a combined area of 10.93 acres with access from the start of the ‘Malpas’ drive. They offer level or gently undulating pasture for the grazing of livestock and are bounded by horse proof fencing. Each enclosure has a water supply and the larger field a recently constructed timber field shelter.LocationMalpas 2 milesChester 15 milesWrexham 13 milesCrewe Station 20 milesManchester Airport 44 milesLocationThe Clock House is situated in Hampton Heath just outside Malpas, a prominent south Cheshire village in some of the most attractive countryside in the region.Malpas offers an excellent range of day-to-day services and access via the A41 to Chester and the motorway network linking to the cities of Liverpool and Manchester. It is only 20 miles from Crewe and a regular rail service to London Euston (from 1 hour 34 minutes).Malpas is a picturesque English country village, recorded in the Doomsday Book, with a fine gothic church (St Oswalds) and buildings in a mixture of architectural styles. It has a good range of independent shops along with pubs (notably the recently refurbished Lion), restaurants, a coffee shop and anexcellent doctors surgery and pharmacy.Alport School is a Malpas based primary school and Heber High is a popular secondary school situated on the outskirts of the village. There are well-regarded independent schools within daily reach including King’s and Queen’s schools in Chester, Abbey Gate College, Ellesmere College, Moreton Hall and Packwood Haugh Preparatory School.The City of Chester (15 miles) is one of the north west’s leading retail and commercial centres serving a catchment area extending from Manchester to Shrewsbury and covering the whole of North Wales.The leisure opportunities are also excellent. Carden Park, about 6 miles away, has two championship golf courses (one designed by Jack Nicklaus) a golf academy, an hotel and an excellent health and fitness club. Malpas is also in the heart of Wynnstay hunting country and there are opportunities for shooting and game fishing in the locality. There are also numerous walks in the area and polo at the Cheshire Polo Ground.Square Footage: 4,201 sq ftAcreage:2.54 Acres

More articles