5 bed land for sale Prestbury Road, Wilmslow, Cheshire SK9

£1,595,000 guide price

Key info

  • Status: For sale
  • Type: Land
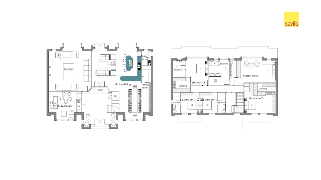
  • Bedrooms: 5
  • Receptions: 2
  • Bathrooms: 4
  • Area: Prestbury Road, Wilmslow, Cheshire

Price changes

£1,595,000 28 days ago

Full description

Plot 2,9 Prestbury Road represents a rare opportunity to acquire a self-build 0.54 acre plot with Planning Permission for a 5 bedroom modern Regency style residence (Reference No: 24/1000M)DescriptionThe purchase of Plot 2,9 Prestbury Road represents a rare opportunity to acquire a self-build 0.58 acre plot with Planning Permission granted (Cheshire East Application Reference Number: 24/1000M) for the construction of a striking modern regency style residence offering five bedrooms, four bathrooms, two formal reception rooms and an incredible open plan living/dining/kitchen.An impressive reception hall and galleried landing, utility/boot room, pantry, downstairs WC and a detached double garage form part of the design.There is potential for accommodation by the creation of a second floor within the roof space subject to amendments to the design and the necessary consents.LocationSet within a generous 0.58 acre plot this exclusive residential development site is located on one of the area’s most desirable roads. Prestbury road is situated 1 mile from the thriving town centre of Wilmslow and the train station which offers a 1hr 56mins service to London Euston and a 17 minute service to Manchester Piccadilly.Wilmslow is renowned for its excellent shopping and all the main supermarkets are represented along with specialist shops, restaurants, bars and Hoopers department store. The area has an excellent choice of private schools including Pownall Hall (1.9 miles), Wilmslow Prep (1.4 miles), The Ryleys (2.4 miles), Alderley Edge School for Girls (2.1 miles), The Kings School Macclesfield (4.7 miles).Surrounded by glorious Cheshire countryside, walks can be enjoyed from the door step; the Bollin Valley is only 0.5 miles away. The property is also conveniently situated for access to the villages of Alderley Edge (2.2 miles) and Prestbury (3.8 miles). Manchester Airport is 4.9 miles away.Acreage:0.54 Acres

More articles