6 bed detached house for sale Hale Road, Hale Barns, Altrincham WA15

£1,495,000

Key info

  • Status: For sale
  • Type: Detached house
  • Bedrooms: 6
  • Receptions: 3
  • Bathrooms: 4
  • Area: Hale Road, Altrincham, Greater Manchester

Price changes

£1,495,000 16 days ago

Full description

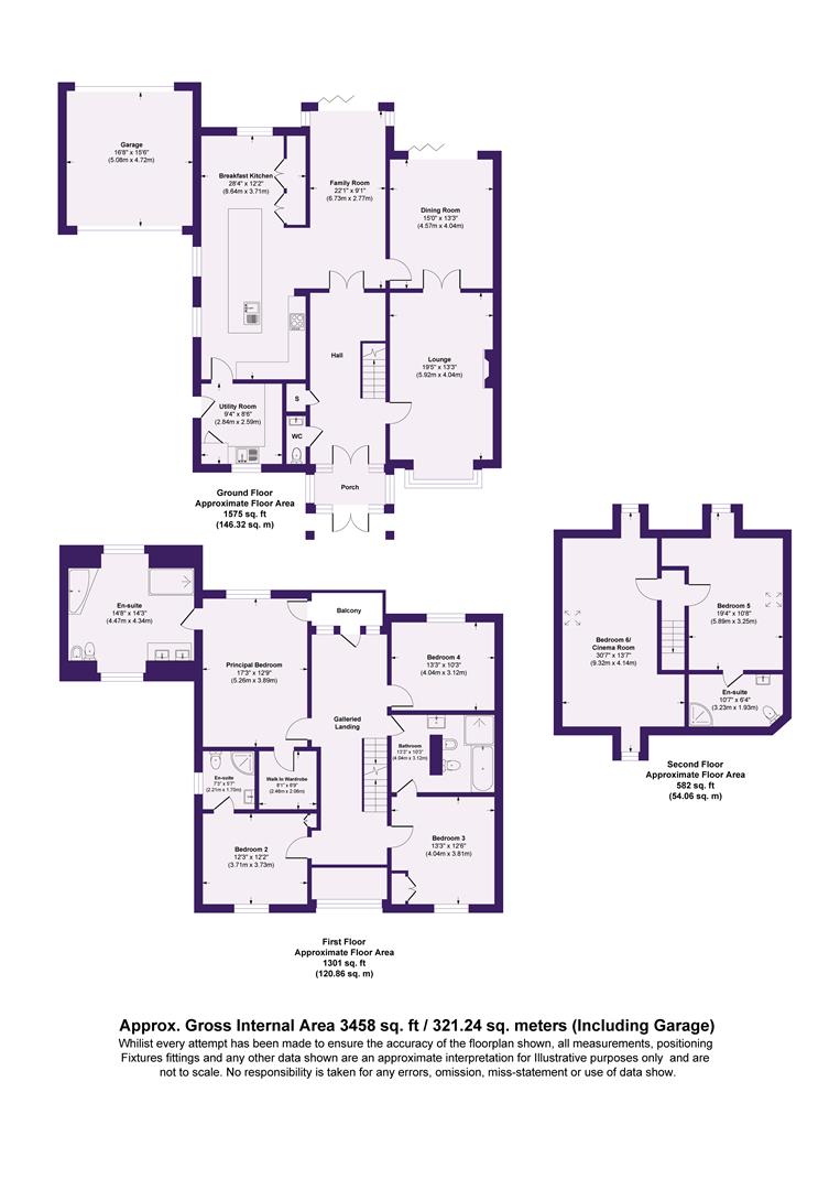
An impressive modern detached family home standing on A mature 0.25 acre plot located in this desirable neighbourhood within walking distance of hale barns centre and close to excellent transport links. 3275 sqftPorch. Hall. WC. Lounge. Dining Room. 575sqft Family Room and Breakfast Kitchen. Utility. Five/Six Double Bedrooms. Home Cinema Four Bath/Shower Rooms. Gated Driveway. Garage. South facing Garden.An impressive modern Detached family home constructed by Altin Homes in circa 2006 and offering extensive and versatile family accommodation arranged over Three Floors extending to 3,275 square feet.The property stands on a lovely mature South facing Garden plot extending to approximately 0.25 of an acre and is located within walking distance of Hale Barns Village Centre featuring Asda Supermarket, Costa Coffee and The Bulls Head Gastro Pub, and also within walking distance of the Synagogues at Shay Lane and Wicker Lane and Holy Angels rc Church. In addition, there is easy access to the M56/M6 motorway network serving the region towards Manchester City Centre and Manchester Airport.The property is superbly appointed throughout with high specification kitchen, bathrooms, fixtures and fittings, polished tiled flooring through much of the Ground Floor, natural wood finish internal doors, integrated home entertainment and media systems, a glass balustrade staircase rising through the floors and bi-folding doors from the Living Areas to the garden.The Entrance Porch leads through double doors into the Hall with an impressive staircase rising to the First Floor Galleried Landing with the Ground Floor WC off.A Lounge enjoys a bay window to the front and fireplace feature and double doors lead through to the Dining Room with folding doors onto the gardens.575 square foot open plan Family Room and Breakfast Kitchen with the windows and folding doors enjoying aspects of and giving access to the gardens.The Kitchen Area is fitted with an extensive range of wood and high gloss finish laminated fronted units with Corian worktops incorporating a substantial breakfast table and breakfast bar. An extensive range of built in appliances include double ovens, combination microwave oven, induction hob, extractor fan, dishwasher, fridge and freezer units.Off the Breakfast Kitchen is a comprehensively equipped Utility Room.Over the Two Upper Floors are up to Six Double Bedrooms served by Four Bath/Shower Rooms and including a Top Floor Home Cinema Room. The Galleried Landing overlooks the Hall below and has French doors and windows onto a Balcony overlooking the gardens.The Principal Bedroom is positioned to the rear and is served by the impressively spacious En Suite Bathroom.Three further Double Bedrooms at First Floor level are served by two well appointed Bath/Shower Rooms being En Suite.To the Second Floor are Bedrooms Five and Six, with Bedroom Five also having its own En Suite facility and a window overlooking the gardens.Bedroom Six is equipped as a Second Floor Sitting Room and Home Cinema with windows to the front and rear.Externally, the property is approach through a remote controlled Gated Entrance and stone pillars to a block paved Driveway, providing extensive off street Parking for a large number of vehicles, and turn leading to the large, attached Garage, which has a drive through facility to the rear.The front Garden is stocked with mature trees providing screening from the road whilst the rear Garden is South facing, enjoying the sun throughout the day. There are large stone paved path and patio areas closing a substantial area of lawn, and a mature backdrop of shrubs, bushes and trees within the boundaries of this, and neighbouring properties providing excellent privacy and a most attractive outlook.In addition, there is a custom built pergola outside dining area.This impressive outside space completes a superb family home.- Freehold- Council Tax Band H

More articles