3 bed detached house for sale Hemfield Road, Ince WN2

£1,000,000 offers over

Key info

  • Status: For sale
  • Type: Detached house
  • Bedrooms: 3
  • Receptions: 3
  • Bathrooms: 3
  • Area: De Trafford House Hemfield Road, Wigan, Greater Manchester

Price changes

£1,000,000 23 days ago

Full description

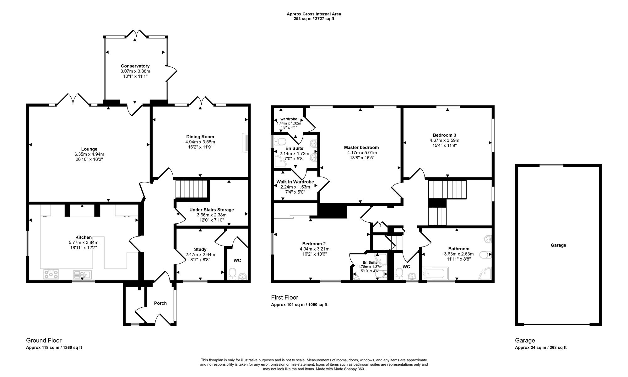
Discreetly tucked away with its own private driveway and detached garage, De Trafford House spans over 13 acres of land with a square foot of 2727.De Trafford house is a unique 3 bedroom detached property stood in its own grounds and valued at offers over £750,000 sold with 13 acres of attached land and valued at over £250,000. Selling as a package for offers over £1,000,000. Tranquil location, spacious interiors with modern amenities and scenic views, perfect for equestrian or agricultural use.Set parallel to Makerfield Way, the home benefits from a tranquil outlook over neighbouring greenbelt land, offering a rare combination of luxury living and natural scenery. Whilst the driveway holds space for several vehicles the interior of the property boasts versatile reception rooms with stunning flooring, modern fixtures and beautiful views from every angle.Internally this impressive home is arranged across two floors and comprises of; a welcoming entrance porch with a boot room, the entrance hallway which gives access to the large family kitchen, the heart of the home featuring a breakfast bar, luxury quartz worktops, kick board lighting and the fitted kitchen contains integrated appliances and ample storage. You will also find ample understairs storage space and a study which is ideal for those working from home leading to a cloakroom with a W.C. De Trafford House offers flexible living with a separate dining area for the more formal occasions making it perfect for entertaining. You will also find access to the spacious lounge with a media wall, LED feature ceiling and french doors overlooking the rear garden whilst also providing access to the conservatory filled with natural light from the feature glass ceiling.To the first floor, the grand oak staircase leads to three generously sized bedrooms, the master bedroom features a Jack and Jill en-suite whilst also benefitting from two walk in wardrobe spaces ideal for the extra storage. The second bedroom also with an en-suite shower room has been finished with large fitted wardrobes for the additional space a home owner needs whilst the third bedroom features dual aspect windows. The principal family bathroom comprises of a four-piece suite with a free standing bath and corner multi-spray shower cubical. The separate w.c with vanity sink completes the first floor accommodation. This unique home also benefits from a large loft with a staircase leading up to it which is partially boarded providing potential for conversion. Other benefits to the property include oak laminate flooring and luxury oak doors leading into all rooms.Externally, the plot ensures the property is situated privately away from the road. Included within the grounds are pond areas, field space and lawned areas, perfect for equestrian needs or further development of the property.With a rural feel but still within distance of local amenities this property provides the perfect opportunity for someone looking to purchase both a tasteful home and a slice of countryside.EPC Rating: FParking - Double GarageParking for more than 12 vehiclesParking - Driveway

More articles