4 bed detached house for sale Robin Hood Lane, Wrightington WN6

£850,000 offers in region of

Key info

  • Status: For sale
  • Type: Detached house
  • Bedrooms: 4
  • Receptions: 2
  • Bathrooms: 3
  • Area: Robin Hood Lane, Wigan, Greater Manchester

Price changes

-5.0% £850,000 6 months ago
£895,000 8 months ago

Full description

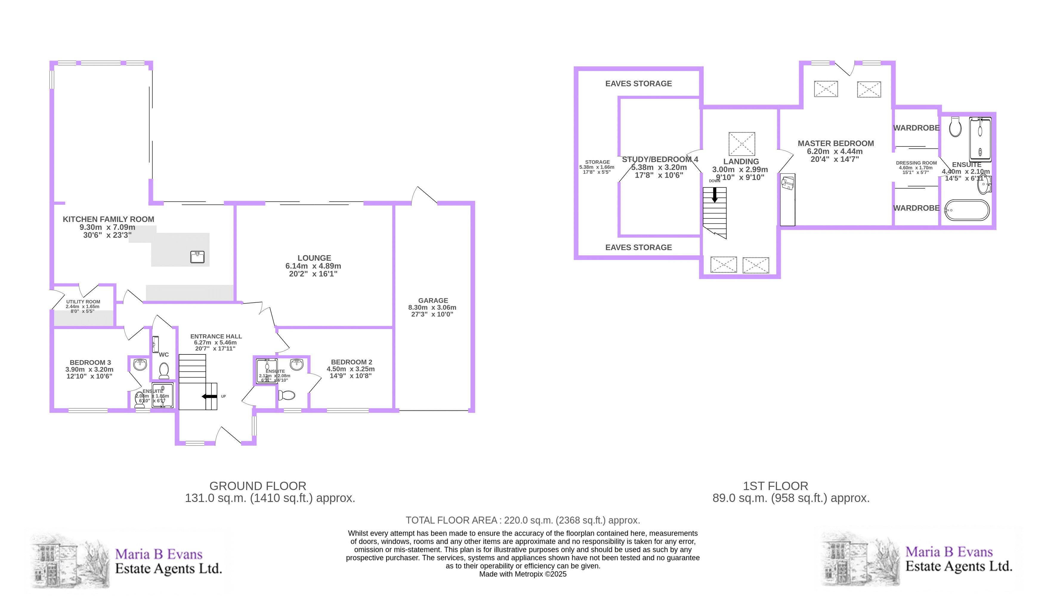
Coming to the market for the first time, this stunning, individually designed home offers carefully considered accommodation with a contemporary finish and apex windows which take full advantage of its location by enhancing the light within and the spectacular rural aspects beyond the garden. Immaculately and tastefully presented throughout, the rooms include a comfortably spacious lounge, an L-shaped living-dining-kitchen, ground floor cloakroom, four double bedrooms - two ground-floor with en suites, first floor master bedroom with dressing area and en suite plus bedroom four/atelier. The driveway provides parking for several cars and leads to the integral tandem garage whilst the rear, secluded lawn garden offers a tranquil haven with spectacular pastoral aspects over the adjoining farmland.A sturdy Winkhaus insulated front door, with opaque glass inset and lengthy brushed steel handle, opens into the impressive full height hallway which is filled with natural light from the lengthy side window and two Velux skylights. An eye-catching oak staircase with glass balustrade rises and turns to the first-floor galleried landing and the area is also lit by a chandelier point and a pendant light along with recessed down-lights and picture light. Horizontal panel doors open to the rooms off, including a coats cupboard, and the porcelain tiled floor, with under-floor heating, continues from here into the cloakroom and the splendid living-dining-kitchen.Double doors with glazed inset lead into the comfortably spacious lounge with sliding patio doors to the rear elevation offering incredible garden and rural aspects across the adjacent farmland. There is a central ceiling light for evening ambience and the laminate flooring gives the room a sleek finish along with the low-level media cabinet to one wall with television point and two floating wall cabinets above. The room is also warmed by three radiators.The striking L-shaped living-dining-kitchen has two sets of sliding patio doors giving way to the garden, apex panel windows to the rear elevation and two Velux skylights enhance the light and airy quality of the space. In the evening, recessed down-lights illuminate along with two pendant lights over the breakfast bar and an array of pendants over the table space of the living-dining area. The kitchen is fitted with an excellent range of two-tone high gloss cabinets, in mushroom and cream, and incorporate deep drawer banks and a broad island unit with granite worktop linked to an oak breakfast bar. The island has an inset stainless steel sink unit with swan-neck mixer tap and etched side drainer, two pop-up power points along with a four-ring Neff induction hob with ceiling extractor fan above. A bank of wall-to-ceiling cabinets incorporates an eye-level hide-and-slide door oven plus a combination oven and microwave with warming drawer beneath whilst integrated appliances include a fridge freezer and an automatic dishwasher.Just off, the utility room is fitted with kitchen complementary units having oak worktops with under-counter plumbing for a washing machine and space for a tumble dryer. The cabinets house the gas combination central heating boiler, consumer board and heating manifolds and a side door with opaque glass panels leads to the garden.There are two ground floor bedrooms and both have picture windows to the front, ceiling lights, radiators and ample space for wardrobes. The en-suites are tiled in natural shades to all splash areas and each comprise a glazed shower cabinet with rainfall head and hand shower, wash hand basin and a close coupled WC. Both also have an opaque window to the front, recessed down-lights and a chrome ladder-style heated towel rail.Completing the ground floor, the cloakroom has a two-piece white suite of vanity set wash hand basin and close coupled WC. Lit by recessed down-lights, there is also an extractor fan and a chrome ladder-style heated towel rail.The galleried landing with glass balustrade overlooks the hallway and enjoys light from the Velux skylight window, ceiling track lighting plus a radiator and gives way to the two bedrooms at this level.The sumptuous master bedroom features a full height apex window with central door and Juliet balcony positioned opposite the super king-size bed-space offering far reaching rural aspects to wake up to. The room also has two Velux windows and is lit by a pendant light and ceiling track lighting. Warmed by two radiators, there is ample space for drawer banks and nightstands and a range of fitted wardrobes line one wall. A broad opening leads to a further dressing area, having mirror-fronted sliding-door wardrobes to both sides with deep storage areas, and a door opens to the fully tiled en suite with under-floor heating. With Velux windows to front and rear plus ceiling track lighting, this luxurious space is fitted with a white Duravit suite of vanity set console-style wash hand basin with monobloc tap and a back-to-wall WC, a stand-alone bathtub with stand-pump style tap and hand shower and glazed shower cabinet with monsoon head and hand shower.Bedroom four/atelier has two Velux windows to the rear, ceiling track lighting, a radiator, laminate flooring and a door to the walk-in loft storage space with power and light.The property is approached via a broad entrance to a Tarmacadam driveway providing parking for several cars and leading to the integral tandem-style garage with up-and-over door, a rear personal exit door, power and light. The frontage is bordered by raised shrub beds and timber gates to either side of the property lead to the rear garden. The rear garden is laid to lawn with an Indian stone flagged path expanding into a patio area for alfresco dining and barbecues. Designed for easy maintenance, the borders are well stocked with shrubs and herbaceous planting, carved out with strategically placed seating areas, a small wildlife pond and rockery and the stock fenced boundary allows for the stunning far reaching rural aspects to be fully appreciated. The garden also benefits from exterior lighting, armoured power points and two outside taps.Viewing is strictly by appointment through Maria B Evans Estate AgentsWe are reliably informed that the Tenure of the property is FreeholdThe Local Authority is West Lancashire Borough CouncilThe EPC rating is BThe Council Tax Band is FThe property is served by mains drainage Please note: Room measurements given in these property details are approximate and are supplied as a guide only.All land measurements are supplied by the Vendor and should be verified by the buyer's solicitor. Wewould advise that all services, appliances and heating facilities be confirmed in working order by anappropriately registered service company or surveyor on behalf of the buyer as Maria B. Evans EstateAgency cannot be held responsible for any faults found. No responsibility can be accepted for anyexpenses incurred by prospective purchasers.

More articles