4 bed detached house for sale Long Heys Lane, Dalton WN8

£900,000 offers in region of

Key info

  • Status: For sale
  • Type: Detached house
  • Bedrooms: 4
  • Receptions: 2
  • Bathrooms: 3
  • Area: Long Heys Lane, Wigan, Greater Manchester

Price changes

£900,000 3 months ago

Full description

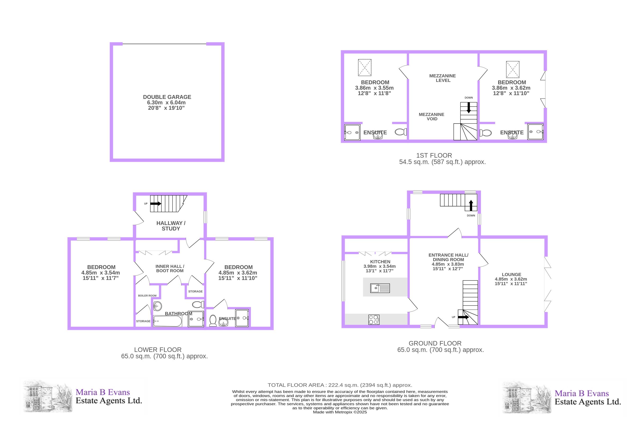
A barn to take you by storm ….A broad, glazed door and side panels allowing natural light to fill the full-height area and galleried landing of the impressive dining hall which is also lit by recessed downlighting during the evenings. An exposed stone feature wall stands beyond the stone slab hearth with log burning stove for added ambience and latch doors open to the rooms off whilst the engineered oak flooring continues into kitchen and the principal lounge.Looks like home to me ….The comfortably spacious lounge welcomes you in with open arms and the painted olive green book-shelves, which line one wall, just tempt you to curl up on the sofa and sample the tranquil serenity for an hour or so. Irrespective of the weather, the bi-folding doors across the side elevation invite garden in to join you or just take a seat on the oak balcony sip a glass of wine or two. Or, for the less romantic, you could switch the television on.What’s cooking….The breakfast kitchen has a side window and pendant lighting highlighting the soothing lamp-room grey shade of the hand painted cabinetry with copper cup handles and unpolished grey granite work-surfaces which coordinate perfectly with the copper sink unit and mixer-spray tap inset into the central island.The island also has a pop-up power point plus a cleverly oak-edged area defining the breakfast bar. An oak beamed canopied niche houses the Rangemaster multi-oven cooker with induction hob and has a discrete extractor fan over. The well-appointed space has integrated appliances to include and automatic dishwasher, wine chiller and a full height fridge and freezer.The hidden gem ….Sneak away to the first-floor landing for another peaceful retreat and which overlooks the barn’s former stone arch entrance beyond the three pendant lights suspended from the vaulted ceiling. An exposed stone wall and part timber boarded wall create a rustic aura and the space is perfect for a sofa to relax or creating a work-space.We have drift off ….On this same level, the good-sized master bedroom has a serene aura and garden and paddock views via the French window with Juliet balcony plus a Velux skylight window. A pendant light takes over at twilight and there are white fitted wardrobes plus ample space for further furniture. Continuing the rustic feel, the en suite has wood effect tiling which highlights the white suite of walk-in shower with glass panel, a vanity set wash hand basin and a close coupled w.c. The Velux skylight lets the natural light pour through, recessed downlighting is also on hand as is a chrome heated rail for fluffy towels.On the opposite side of the landing, bedroom two is equally as spacious and has a Velux skylight, pendant light and ample space for garment storage furniture. In this room, a timber panelled feature wall gives a country aura as does the wood effect tiled en suite shower room with slate tiled floor and fitted three-piece white suite. Lit by recessed downlighting, there is also a further Velux skylight and a black ladder style heated towel rail. On another level ….To the rear of the dining hall, the triple aspect inner hall has space for a study area, is lit by recessed downlighting to the part-vaulted ceiling and has another exposed stone wall. The painted spindle balustrade and staircase descends to the lower-level vestibule with a solid oak door to the driveway, sheltered by the exterior ranch style open porch.This area has a rear window, recessed downlighting and wall lights, and a glazed door to the inner hall having green stone flagged flooring, recessed downlighting and a light tunnel from the hall above. A built-in storage cupboard provides for the household essentials and a tall-backed settle with shoe and accessory cupboards to either side is the perfect place to don the slippers.A second dual-aspect reception room on this level offers the flexibility for use as a fourth bedroom or even the option to use all the accommodation on this floor as a separate self-contained annex for a dependant relative. Lit by a pendant light and recessed downlighting, there is a tiled floor and, to one corner, a stainless-steel sink unit with water supply to create a kitchenette. Just saying ….Bedroom three – a spacious double room - has a side window and two pendant lights whilst fitted wardrobes with white panelled doors line one wall and incorporate shelves. The adjacent, chic en suite has both patterned and subway tiled walls and floor as the backdrop to the white suite of shower cubicle with sliding door, a pedestal wash hand basin with black tap, and close coupled w.c. Lit by recessed downlighting, a black panelled radiator is on hand to warm the towels.The split-level bathroom also has a heated towel rail, is lit by two ceiling lights, has white tiled walls and a patterned tile floor. The contemporary white suite comprises a vanity set wash hand basin, panelled bath, shower cubicle with rainfall and hand attachments, and a close coupled w.c.Also on this level is the utility room with plumbing for an automatic washing machine and stacked tumble dryer and a louvre door cupboard housing the central heating boiler.A long and winding road ….…takes you up hill and down dale, to reach this picturesque, three-storey, stone-built barn with a black-barn boarded extension and is surrounded by laurel and conifer hedging creating secluded, as well as attractive, gardens and having an adjacent five acres of stock fenced grazing land divided into four paddocks. Nestled away beyond hedgerows and dry-stone walls, this charming barn conversion has three sets of gates all giving way to different parts of the property.Firstly, tall, electronically-controlled wrought iron gates open to reveal a pebbled driveway with parking for numerous cars and leading to a complementary-build double garage with a stone flagged parking apron and an electric up-and-over door. The interior has a tiled floor, power and light, personal door, convenient corner w.c. And wash basin, and a hatch access for loft storage. An attached timber shed provides storage for garden tools and machinery and has a side decked area. The frontage is bordered by a dry-stone wall with fern-edged dell and brook below and the driveway displays further sleeper-edged borders of specimen shrubs and ornamental trees which softly enhance the vista. A second wrought iron gate, slightly higher up the lane, gives way to a further pebbled area which houses a log store and provides a raised seating area over looking the garden. From the lane, a third entrance via an aluminium five-barred gate opens to a pebbled parking area for a small horse box or trailer, and gives way to the grazing paddock, two timber stables separate blocks of two stables with concrete floors and hardstanding.Within the main gates, stone flagged paths and steps meander through the rear, south-facing lawn garden and lead to strategically placed terraces for al fresco dining and leisurely seating as well as the raised oak-built balcony with balustrade which commands views over the garden, paddocks and rural aspects to beyond.Viewing is strictly by appointment through Maria B Evans Estate AgentsWe are reliably informed that the Tenure of the property is FreeholdThe Local Authority is Borough CouncilThe EPC rating is EThe Council Tax Band is FThe property is served by septic tankPlease note:Room measurements given in these property details are approximate and are supplied as a guide only. All land measurements are supplied by the Vendor and should be verified by the buyer's solicitor. We would advise that all services, appliances and heating facilities be confirmed in working order by an appropriately registered service company or surveyor on behalf of the buyer as Maria B. Evans Estate Agency cannot be held responsible for any faults found. No responsibility can be accepted for any expenses incurred by prospective purchasers.

More articles