5 bed detached house for sale The Pump House, Standish, Wigan WN1

£3,250,000 guide price

Key info

  • Status: For sale
  • Type: Detached house
  • Bedrooms: 5
  • Receptions: 4
  • Bathrooms: 5
  • Area: Thornhill, Wigan, Greater Manchester

Price changes

£3,250,000 2 months ago

Full description

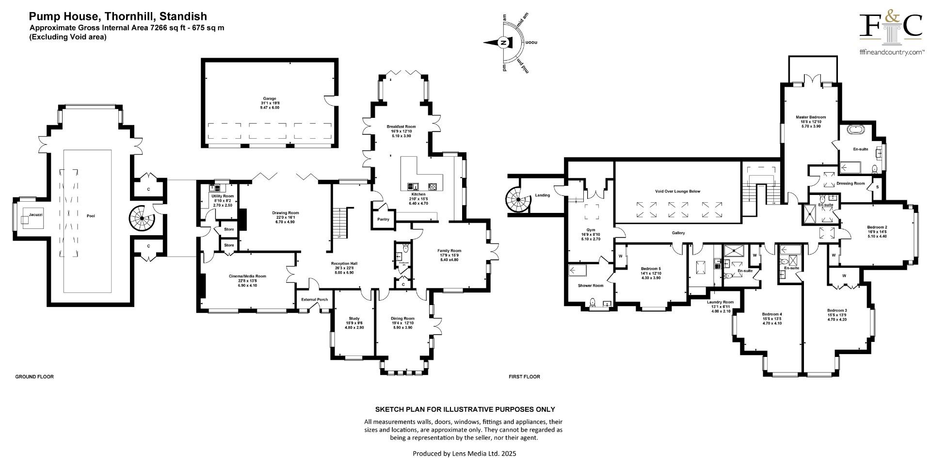
The Pump House is an impressive fusion of contemporary architecture, luxury family living, and peaceful sanctuary - all wrapped in over 7,000 sq ft of exceptional space and nestled within 4.5 acres of private grounds. Elevated above a tranquil wooded valley with landscaped gardens cascading down to the river below, this magnificent home offers unrivalled privacy, awe-inspiring design, and a standard of living that must be seen to be fully appreciated.From the tree-lined driveway and bold architectural form to the exquisite interiors, bedroom suites, designer kitchen, multiple reception rooms, home cinema, indoor swimming pool and home gym - this is family life at its most refined. Located just moments from the amenities of Standish village, acclaimed schools, and key transport links, The Pump House is a home that delivers the very best of both worlds.An Impressive ApproachThe house is so discreetly positioned that if nobody told you it was here, you’d never know it existed. Accessed via electric gates, a tree-lined driveway opens to landscaped grounds and reveals the home in all its grandeur - perfectly framed by lush greenery and manicured lawns.The main parking area is large enough for a whole fleet of cars, and the home welcomes you inside through a supersize bespoke solid oak door with glass surrounds, giving you the first impression of the grand proportions found throughout. A handy porch leads through to the central reception hall where you immediately notice the stylish oak and glass staircase, plus the abundance of natural light pouring in through the huge skylight window and glass wall at the rear.The Designer KitchenThe heart of the home is the exceptional designer kitchen and daily dining area - a breathtaking space with plentiful glass and panoramic views of the gardens and valley below. Bifold doors and three sets of French doors open onto a vast elevated composite deck, creating seamless indoor-outdoor living.Designed and installed by the renowned Stuart Frazer, this premium Siematic kitchen features minimalist cabinetry, ambient recessed lighting, and deep Corian worktops. Every detail has been considered - from the walk-in pantry to the well-tailored storage and integral larder cabinets.A selection of Miele appliances includes two conventional ovens with warming drawers, a microwave, steam oven, full-length fridge and dishwasher. Additional highlights include a Bora induction hob with built-in downdraft extractor, a Quooker tap with instant boiling, chilled and sparkling water, a Liebherr full-length freezer, and twin Monogram wine fridges.At the centre is an enormous island with a contrasting dark oak breakfast bar - a stunning and practical hub for everyday family life, relaxed weekends, or entertaining. Whether it's Sunday brunch, evening drinks with friends, or summer barbecues spilling out onto the decking, this space is made to be enjoyed.Reception RoomsThe Pump House offers four distinct reception rooms, each delivering space, comfort, and flexibility for the modern family.The main lounge is a showstopper - around 33 sq m in size, with a vaulted double-height ceiling, six-panel bifold doors, and a stylish glass inset log burner within a towering chimney breast and gallery landing above. It’s a room made for hosting on a grand scale or unwinding in total comfort.Next door, the media room offers another luxurious lounge experience, with floor-to-ceiling windows by day and a full cinema set-up by night - blackout blinds, projector screen, and surround sound at the touch of a button. It’s ideal as a cinema, games room or teenage retreat.On the opposite side of the reception hall, the formal dining room enjoys an abundance of natural light, with French doors opening onto a covered al-fresco dining terrace. Perfect for dinner parties and special occasions, it blends elegance with atmosphere.Adjoining the kitchen is a peaceful day lounge - currently a relaxed sitting room with more French doors onto the garden. It’s the perfect spot for morning coffee, a children's playroom, or a snug for reading and relaxation.Practical AspectsFunctionality is fully considered, with a separate plant room, utility, guest WC, ample cloak storage, and a large, fully equipped home office designed for two people. A unique bonus is the first-floor laundry room - located near the bedrooms and complete with plumbing, sink, and generous storage.Bedrooms & BathroomsThe entire first floor benefits from vaulted ceilings and striking architectural lines. Full-height apex windows and walls of glass frame tranquil green views from every room.Each of the five double bedrooms has its own sleek three-piece en-suite with tiled surrounds and modern fittings, all immaculately maintained. The master suite adds a walk-in dressing room and a stunning private balcony beneath an apex roof - your own peaceful morning sanctuary just steps from the bed.Leisure FacilitiesThe indoor swimming pool is a standout feature, newly refurbished and upgraded with a Calorex system in 2025. Enjoy year-round heated swimming with a swim-jet system for endless laps, plus a hot tub, skylights, floor-to-ceiling windows, and bifold doors connecting you back to the neighbouring nature.Accessed via a covered walkway from the house and also from the first floor via a spiral staircase, it’s a true private spa experience. A home gym links the gallery landing to the pool hall - equally suited to yoga or conversion into a wellness suite or sauna.A Luxury FinishFrom the moment you enter, the luxury is unmistakable - bespoke oak joinery and flooring, natural stone tiling, gallery landings, vast proportions, and world-class appliances throughout.A Control4 smart home system allows you to manage lighting, heating, and audio from your phone, delivering comfort and convenience with every touch.Gardens, Grounds & GaragesSet on approximately 4.5 acres with no neighbours in sight, this is more than a home - it's a countryside retreat. The gated driveway delivers complete seclusion and leads to a shale-surfaced parking area, triple garage, and carport with EV charging point.To the rear, a full-width composite deck with glass balustrades offers a breath-taking entertaining space overlooking the valley and river. It’s piled into the ground for structural integrity and generously sized to accommodate sun loungers, dining zones, or even an outdoor kitchen if desired.The surrounding grounds include manicured lawns, landscaped borders, rockeries, and mature trees. To one side, Japanese-inspired tiered lawns step down to a large wildlife pond, offering a magical connection to the river and nature. A children’s treehouse completes the picture - making this a truly special home for every generation.LocationDespite its extraordinary privacy, The Pump House is just moments from the bustling and sought-after village of Standish - home to a wide selection of independent shops, cafes, restaurants, gyms, supermarkets, and top-rated schools.The M6 motorway is a short drive away, placing Manchester, Preston, and the wider North West within easy commuting distance. This rare combination of peace, privacy, and connectivity makes the location just as impressive as the home itself.Specific DetailsCouncil Tax Band: HTenure: FreeholdHeating: Gas boiler and tank with water-based underfloor heating throughoutDrainage: Private septic tankUtilities: Mains gas, electricity, and waterSecurity: Full alarm system with CCTVSmart Home: Control4 automation system

More articles