6 bed detached house for sale 4 Woodlands Park Close, Haigh WN1

£1,100,000 offers in region of

Key info

  • Status: For sale
  • Type: Detached house
  • Bedrooms: 6
  • Receptions: 2
  • Bathrooms: 4
  • Area: Woodlands Park Close, Wigan, Greater Manchester

Price changes

4.7% £1,100,000 5 months ago
£1,050,000 5 months ago

Full description

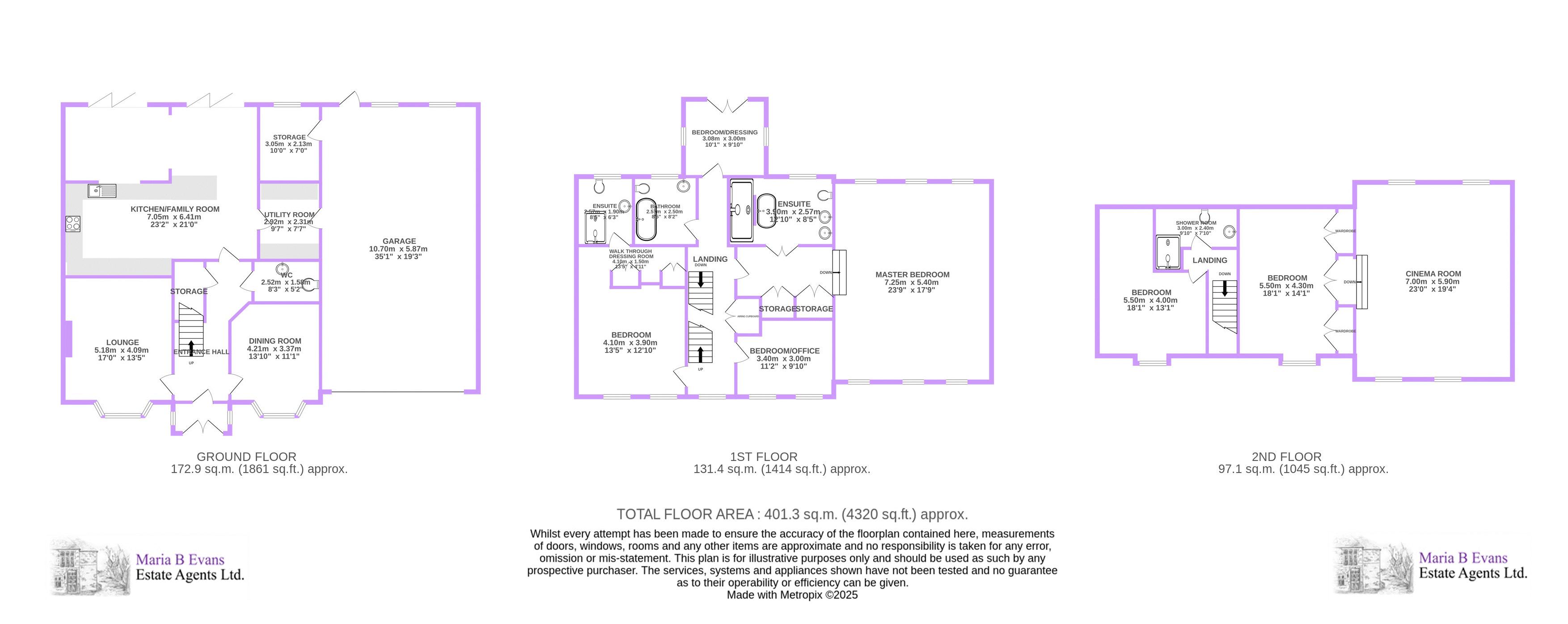
Woodland Park Close is an exclusive, gated enclave of elite residences set on a tranquil, rural lane within Haigh Country Park and yet just a short drive from the town centre and commuter transport links. The property has been finished to an exacting standard and provides excellent family accommodation set over three floors. Briefly, the layout includes two comfortably spacious reception rooms, elegantly appointed Nobilia fitted kitchen with combined living and dining areas, capacious master bedroom with en suite, en suite to bedroom two, two further bedrooms to first floor and family bathroom, two second floor bedrooms and shower room to plus superb cinema room.Black contemporary-style double doors with fingertip identification panel and opaque glass horizontal insets opens to the porch with glazed apex, pendant light and side windows. An inner, black composite door with glazed inset opens to the impressive hallway having white-shaded sparkle granite flooring which continues through to the cloakroom, dining kitchen and utility room.The immaculately presented lounge has a bay window to the front with carved mullions and a central pendant light. This spacious room has a media wall finished with exquisite Venetian plasterwork having display niches, LED lighting and a recess for a 58” television with space for a contemporary electric fire beneath.Across the hallway, the formal dining room also has a bay window to the front, a central pendant light above the table space and is finished with a chic décor design.The striking living-dining-kitchen has two sets of bi-fold doors to the rear elevation, two Velux windows, recessed downlights and ceiling lights. The kitchen area is fitted with a superb German range of Nobilia ultra-matt handle-less black and white cabinetry with profile lighting. Corresponding white sparkle frost quartz worktops surround with inset black single drainer sink unit and mixer tap and having an integrated Blomberg dishwasher close by. Also inset is a black Neff four-ring induction hob with inclined glass extractor fan above and smoked antiqued mirrored panel behind. A bank of Neff eye-level integrated appliances include a hide-and-slide oven, combination oven and microwave, and a coffee machine and, alongside, is a recess for a larder-style fridge-freezer. A mosaic tiled opening gives sight into the carpeted living area with wall-mounted television point, and the end of the peninsula provides space for a breakfast bar with pendant light over and there is more than ample space for a further seating or dining area.The kitchen complementary utility room has a pendant light, extractor fan and a fire door to the four-car garage. The black granite worktop has an inset one-and-a-half bowl coordinating black sink unit and under-counter plumbing for a washing machine and space for a tumble dryer plus an integrated full height drinks fridge alongside the black granite settle with coat hooks above.Completing the ground floor accommodation, the cloakroom has mid-grey sparkle granite walls beyond the two-piece, contemporary white suite of wall-mounted w.c. And a wall-mounted grey shelf supporting a black diamond-cut glass circular wash bowl with waterfall tap over. The room is lit by a pendant light and has an extractor fan.The first-floor landing is reached via a bespoke staircase with glazed balustrade and LED lighting, a window to the front, two pendant lights and a double-door linen cupboard housing the pressurised hot water tank. A glazed door opens to the former balcony with two Velux windows and French windows and Juliet balcony overlooking the garden. Currently converted to a dressing area, the bedroom has a central chandelier point, fitted wood-effect wardrobes to two walls (currently covering two existing windows) and a central island double-sided drawer bank.The capacious master suite has a hallway with two double wardrobes to one side and a door to the en suite on the opposite wall. Steps descend to the very spacious, sumptuous and dual aspect bedroom area with three windows to either side allowing natural light to flow through whilst the coffered ceiling is dotted with recessed downlights for evening ambience. A range of coffee and cream shaded high gloss wardrobes are positioned to either side and above the super-king-size bed-space with matching cabinets, dressing table and drawer banks are situated on the opposite wall.Fully tiled in black and white sparkle granite with jewelled panel relief and under-floor heated, the en suite is fitted with a luxurious suite lit by recessed downlighting and an opaque rear window. The suite comprises a walk-through wet-room style shower area with glazed screen, monsoon head and hand shower, a back-to-wall bathtub with stand-pump style tap, wall-mounted Villeroy & Boch vanity drawer with lighting and black Vitra twin wash bowls and wall-mounted taps, and black wall-mounted w.c.Bedroom two has two windows to the front and a pendant light. This room is fitted with a range of white high-gloss fitted wardrobes with central drawer bank to one side of a peninsula wall and having matching night-stands whilst, on the other side of the peninsula, there is a range of three double wardrobes with wood-effect doors. The en suite has an opaque rear window, recessed downlighting and a hexagonal design heated rail to warm the towels. Stone effect porcelain tiling plus pink herringbone-style subway tiling form the backdrop to the suite which comprises a walk-in shower cabinet with glass screen, a wall-mounted vanity drawer with wash basin, wall-mounted taps and illuminated anti-fog mirror with Bluetooth connection, and a wall-mounted w.c.Bedroom five has two windows to the front and a pendant light. Currently used as a home office, the room is fitted with beech-effect wardrobes, drawers, cabinets and a desk unit – all with brushed steel handles.The principal bathroom is fully porcelain tiled in bronze veined white marble effect with under-floor heating, recessed downlights and rear opaque window. The opulent suite comprises a Heritage gold coloured slipper bath, a Villeroy & Boch wall-mounted vanity drawer beneath a gold-coloured circular wash bowl with wall-mounted taps, and a wall-mounted w.c.The staircase with glazed balustrade rises to the second-floor landing with pendant light and loft hatch, and gives way to two further bedrooms and a shower room.To the right, the dual aspect bedroom has a Velux window to the rear, a window to the front, a central pendant light and wall-mounted television. Beech effect fitted furniture incorporates wardrobes, drawer banks, a dressing table and night-stands. Central double doors in the furniture range open to reveal the split-level, twelve-seater cinema room with a 120” white screen and ceiling-mounted Epson eh-TW920 projector. There are two windows to the rear, a window to the front – having automatic blinds – and perimeter ceiling recessed downlighting along with Control 4 sound system speakers and mood lighting.A further double bedroom at this level has a window to the front, Velux rear window and a pendant light. This room is also fitted with wood effect wardrobes to one wall and matching night-stands.The Velux windows are fitted with made-to-measure thermal black-out blinds.Between the two bedrooms is a shower room with rear window, recessed downlighting, under-floor heating and mono-chrome shaded décor. The three-piece suite comprises a white shower cubicle, a black wash hand basin and black close coupled w.c.The bathroom on that 3rd floor has a black toilet, vanity but white shower tray with black accessories. As well as underfloor heating.The property is approached via a semi-rural lane off Wigan Lane which leads to a small gated enclave of similarly exclusive homes. No. 4 has a two-tone block-paved driveway with inset LED up-lighting leads to the front door showcased by soffit lighting. Providing parking for three/four cars, the drive also gives access to the attached, extended four-car garage with electronically controlled up-and-over door, power and light, two Velux windows to the part-vaulted ceiling, a porcelain tiled floor, recessed downlights and fluorescent lighting, a personal door to the rear, workshop and door to a storage area.A side gate gives access to the rear, east-facing garden with a flagged patio and barbecue area across the rear elevation having contrasting block-paved edging and leading to a further raised patio and sun terrace to the side which allows space for a storage shed. To either side of the garden is slat-style fencing plus a six-foot acoustic timber fence to the rear boundary affording additional privacy. There are sleeper-edged flower and shrub borders and tow of the mature trees have preservation orders, however, the body of the garden is laid to lawn.Viewing is strictly by appointment through Maria B Evans Estate Agents We are reliably informed that the Tenure of the property is FreeholdThe Local Authority is Wigan Borough CouncilThe EPC rating is CThe Council Tax Band is GThe property is served by shared septic tank drainagenb The property is fitted with a recently updated intruder alarm and a perimeter detection alarm. An app-controlled Hikvision ip colour view CCTV system is installed. There is also a dusk-dawn security lighting system.Please note:Room measurements given in these property details are approximate and are supplied as a guide only.All land measurements are supplied by the Vendor and should be verified by the buyer's solicitor. Wewould advise that all services, appliances and heating facilities be confirmed in working order by anappropriately registered service company or surveyor on behalf of the buyer as Maria B. Evans EstateAgency cannot be held responsible for any faults found. No responsibility can be accepted for anyexpenses incurred by prospective purchasers.

More articles