4 bed detached house for sale Pixley, Ledbury, Herefordshire HR8

£1,000,000 offers in region of

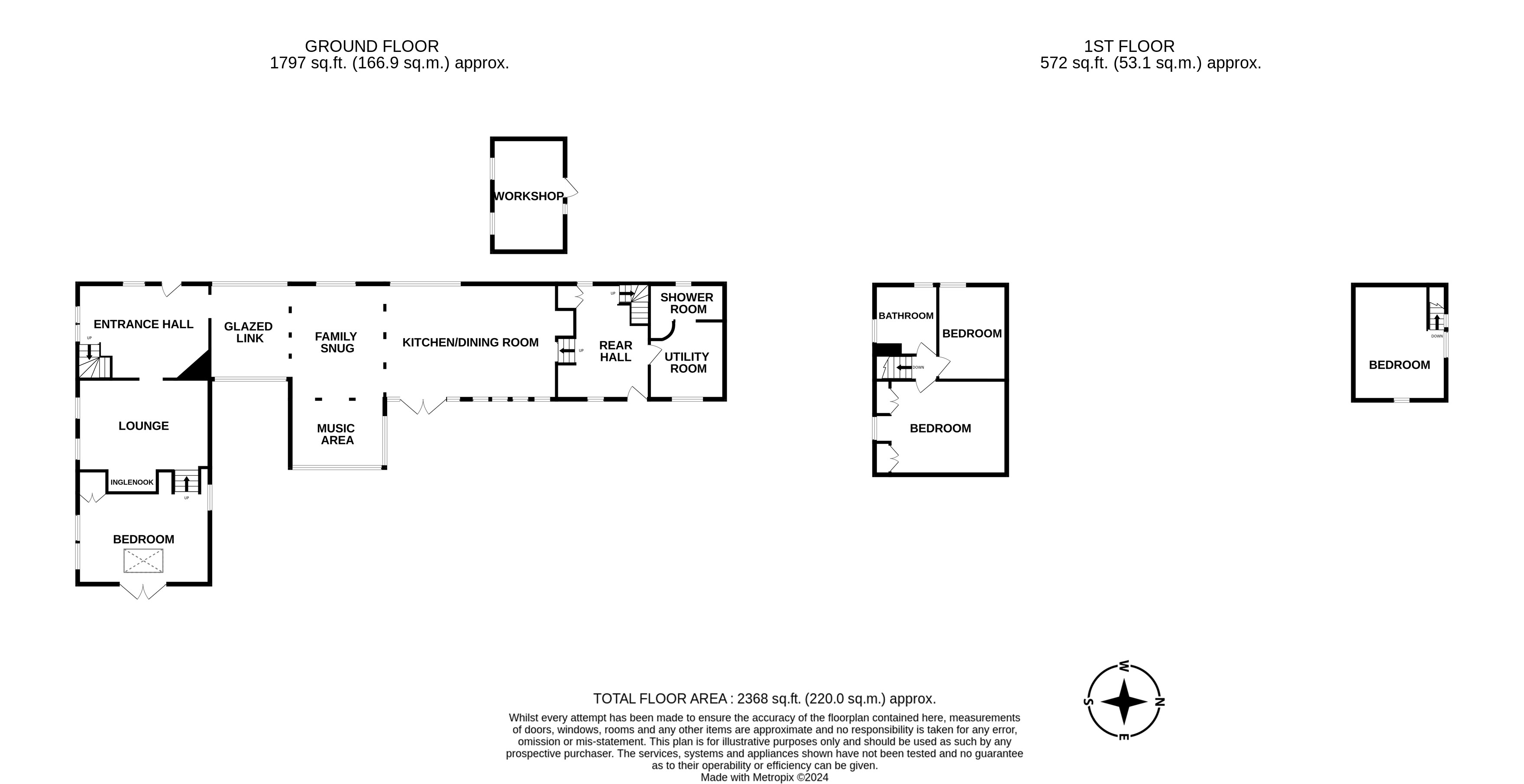
Key info

  • Status: For sale
  • Type: Detached house
  • Bedrooms: 4
  • Bathrooms: 2
  • Area: Pixley, Ledbury, Herefordshire

Price changes

£1,000,000 23 days ago

Full description

Bulls Grove is a truly magnificent character property where the current owners have undertaken a complete overhaul of the Grade II Listed black and white cottage as well as the former traditional barn which now provides further fantastic open plan living accommodation as well as enjoying the mature 2 1⁄2 acres of grounds which the property sits in. This property also has the benefit of planning permission for a 3 bay car port with a studio above and a part built shepherds hut. Viewing is essential to take in the superb work that has been carried out. The property is located in a rural location between Hereford and Ledbury. This property truly is a gardeners paradise.

More articles