5 bed detached house for sale Grenham Bay Avenue, Minnis Bay, Birchington, Kent CT7

£690,000 guide price

Key info

  • Status: For sale
  • Type: Detached house
  • Bedrooms: 5
  • Receptions: 2
  • Bathrooms: 4
  • Area: Grenham Bay Avenue, Birchington, Kent

Price changes

£690,000 2 months ago

Full description

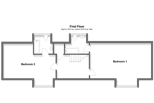
This spacious detached family home offers an abundance of living space across two floors, complete with a generous driveway and a large rear garden. The property is well laid out with versatile accommodation, making it ideal for family living.On the ground floor, you are welcomed by a bright and airy lounge with access to a separate dining room, perfect for entertaining. The well-sized kitchen, complemented by a utility room, provides practicality and convenience. Three bedrooms are located on this floor, along with a family bathroom and additional cloakroom. Upstairs, the first floor boasts two further double bedrooms, including a particularly spacious master bedroom and a modern bathroom.Externally, the property benefits from a private driveway with ample off-road parking and a substantial rear garden, offering plenty of space for outdoor living and family activities.Room sizes:Entrance HallwayLounge 24'9 x 12'0 (7.55m x 3.66m)Dining Room 22'0 x 9'11 (6.71m x 3.02m)Bedroom 5 12'1 x 9'6 (3.69m x 2.90m)Bedroom 4 13'2 x 9'2 (4.02m x 2.80m)Bathroom 8'5 x 5'9 (2.57m x 1.75m)Kitchen 32'1 x 9'0 (9.79m x 2.75m)Utility Room 9'6 x 9'1 (2.90m x 2.77m)Bedroom 3 17'1 x 9'8 (5.21m x 2.95m)En-Suite Shower Room 5'10 x 5'10 (1.78m x 1.78m)LandingBedroom 1 25'2 x 21'9 (7.68m x 6.63m)En-Suite Bathroom 9'6 x 7'9 (2.90m x 2.36m)Bedroom 2 21'2 x 17'0 (6.46m x 5.19m)En-Suite Bathroom 7'6 x 7'6 (2.29m x 2.29m)Off Road ParkingGarden to FrontGarden to RearThe information provided about this property does not constitute or form part of an offer or contract, nor may it be regarded as representations. All interested parties must verify accuracy and your solicitor must verify tenure/lease information, fixtures & fittings and, where the property has been extended/converted, planning/building regulation consents. All dimensions are approximate and quoted for guidance only as are floor plans which are not to scale and their accuracy cannot be confirmed. Reference to appliances and/or services does not imply that they are necessarily in working order or fit for the purpose.We are pleased to offer our customers a range of additional services to help them with moving home. None of these services are obligatory and you are free to use service providers of your choice. Current regulations require all estate agents to inform their customers of the fees they earn for recommending third party services. If you choose to use a service provider recommended by Wards, details of all referral fees can be found at the link below. If you decide to use any of our services, please be assured that this will not increase the fees you pay to our service providers, which remain as quoted directly to you.Council Tax band: ETenure: Freehold

More articles