7 bed detached house for sale Merrills Head Barn, Long Causeway, Burnley BB10

£1,500,000 offers over

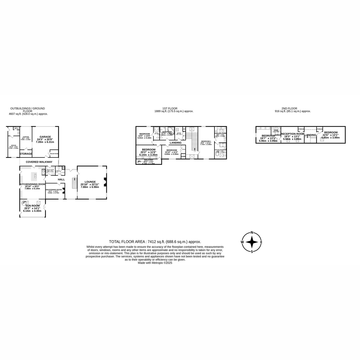
Key info

  • Status: For sale
  • Type: Detached house
  • Bedrooms: 7
  • Receptions: 4
  • Bathrooms: 5
  • Area: Merrills Head Barn, Long Causeway, Burnley, Lancashire

Price changes

£1,500,000 4 months ago

Full description

Offers over: £1,500,000A magnificent stone-built farmhouse offering exceptional rural living with equestrian facilities, extensive grounds, and breathtaking panoramic countryside views. This remarkable property combines traditional character with contemporary luxury, featuring beautifully restored stone construction throughout. The expansive accommodation includes multiple reception areas with impressive exposed timber beams, creating warm and inviting living spaces that seamlessly blend period charm with modern comfort.The heart of the home showcases a spectacular open-plan living area with floor-to-ceiling windows that frame the stunning landscape beyond. A distinctive cast iron spiral staircase provides an elegant architectural feature, while the generous seating areas benefit from abundant natural light and exceptional views across the rolling hills. The impressive reception spaces feature exposed stone walls and timber beams, with the main area incorporating a striking red aga cooker as the centrepiece. The bespoke fitted units combine traditional craftsmanship with contemporary functionality, while natural stone flooring and wooden work surfaces create a perfect harmony between rustic charm and modern practicality. The accommodation includes multiple well-appointed sleeping areas, each uniquely designed with period features.One features elegant purple colour coordination with built-in storage solutions, while another showcases rich wooden flooring with exposed ceiling beams and traditional styling. A particularly impressive suite includes a magnificent four-poster arrangement and an en-suite facility featuring a luxurious corner spa installation with separate shower enclosure.Additional sleeping accommodation offers contemporary styling with built-in storage solutions and scenic countryside outlooks. The neutral décor and quality finishes throughout create a sense of refined elegance while maintaining the property's authentic character. The extensive grounds include professionally maintained equestrian facilities with a substantial stable block featuring multiple loose boxes arranged around a traditional cobbled courtyard.The facilities provide excellent accommodation for horses with proper drainage, covered walkways, and convenient access to the surrounding paddocks. The property sits within considerable acreage of well-maintained grassland, providing excellent grazing and training opportunities. The elevated position offers spectacular panoramic views across the surrounding countryside, with well-established field boundaries and mature trees providing natural windbreaks and privacy.Modern amenities include contemporary heating systems, quality fixtures and fittings throughout, and excellent connectivity despite the rural setting. The property represents an exceptional opportunity for those seeking a substantial family home with equestrian facilities, offering both luxury accommodation and practical functionality in an outstanding rural location.The stone construction and traditional roofing materials ensure the property sits harmoniously within the landscape while providing excellent thermal properties and long-term durability. Professional landscaping and established grounds complement the property's impressive architecture and enhance its already commanding presence.This unique property offers an unparalleled combination of period charm, modern luxury, and practical functionality, making it ideal for those seeking an exceptional rural retreat with comprehensive equestrian facilities and stunning natural surroundings.Arrange a viewing?

More articles