2 bed flat for sale Mission Building, 747 Commercial Road, Westferry E14

£375,000 guide price

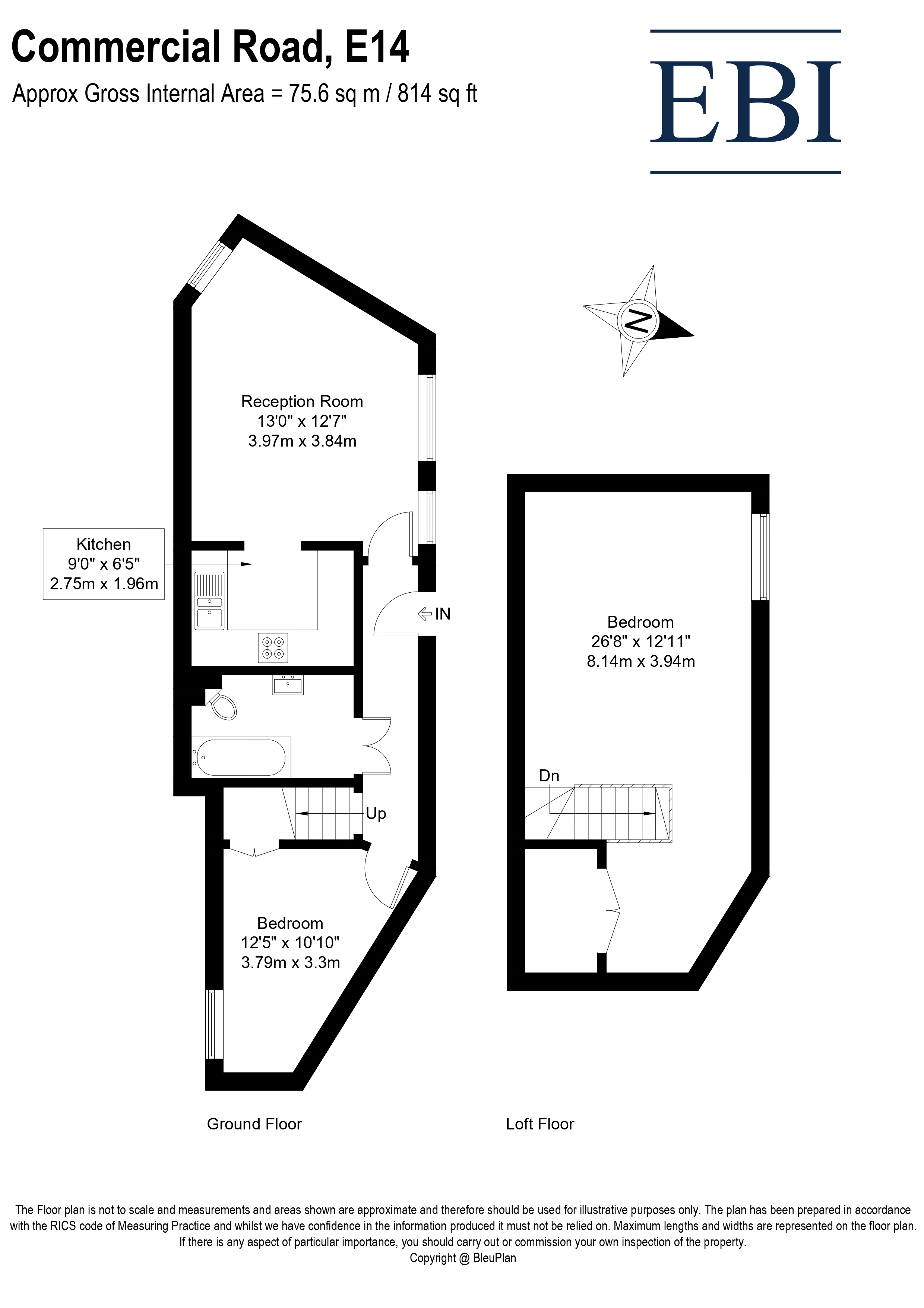
Key info

  • Status: For sale
  • Type: Flat
  • Bedrooms: 2
  • Receptions: 1
  • Bathrooms: 1
  • Area: Mission Building, London, London

Price changes

-5.0% £375,000 2 days ago
-10.2% £395,000 one month ago
£440,000 2 months ago

Full description

Access to this quiet two double bedroom property is via a staircase towards the back of this attractive period building. Located in the “Chapel”, the flat has a light and airy feel to it from the double height reception. Occupying the first and second floor, the flat has a large mezzanine bedroom and study, open plan fitted kitchen, second bedroom with built in storage, and smart fitted bathroom.Converted from a 1930s Seaman's Mission, and built around an attractive central courtyard/garden, the development also offers a large communal roof terrace giving far reaching panoramic views over the City, East London and Canary Wharf, on-site porter, residents gym. Situated close to the picturesque Limehouse basin and the Thames pathway for River walks, the Mission Building is in a convenient location for both Canary Wharf and the City.Limehouse or Westferry DLR stations are a short walk away, taking you into Bank or Canary Wharf in under 10 minutes either way. On the DLR you also have routes into Stratford International, London City Airport and Royal Greenwich.You can also pick up the C2C in Limehouse, which takes you to the Essex coast or the City (Fenchurch Street).

More articles