2 bed flat for sale Therapia Road, East Dulwich, London SE22

£625,000 offers over

Key info

  • Status: For sale
  • Type: Flat
  • Bedrooms: 2
  • Receptions: 1
  • Bathrooms: 1
  • Area: Therapia Road, London, London

Price changes

-3.8% £625,000 one month ago
£650,000 3 months ago

Full description

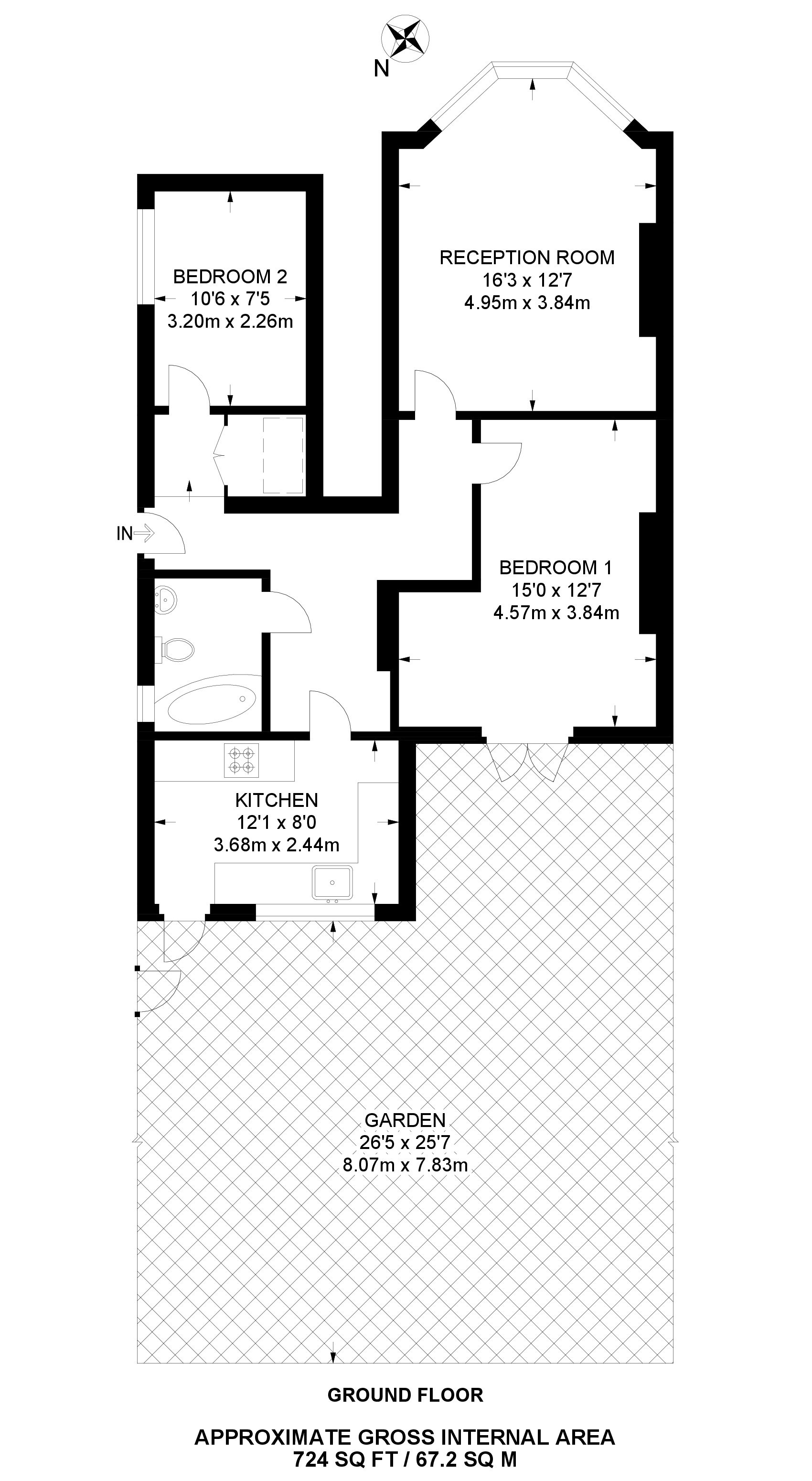
Presenting a rare opportunity in the heart of Dulwich, this beautifully presented ground floor flat offers both privacy and convenience with its own private garden. The property has a private entrance and boasts two generous double bedrooms, a light-filled reception room, and a modern fitted kitchen, creating an ideal family home or investment in one of South London's most desirable locations. The highlight of this home is its secluded private garden, a true oasis perfect for summer entertaining and year-round relaxation. Inside, the accommodation impresses with high ceilings and excellent proportions throughout. The modern kitchen features integrated appliances and ample workspace, while the separate living area offers flexibility for both quiet evenings and hosting guests. Located on a quiet street, the property is 5 minutes walk from Peckham Rye park. Useful shops, vibrant cafes and welcoming bars are located on nearby Forest Hill Road. Lordship Lane is a short walk away. The property features off street parking & there are superb transport links with Honor Oak Park Station just a 10-minute walk away, providing Overground services to Canada Water (8 mins) and Shoreditch High Street (15 mins), while Peckham Rye station is within a short bus ride, with fast links to Victoria, Blackfriars and London Bridge.Agent notes sales:Mobile phone coverage:EE (likely inside and outside)Three (likely inside and outside)O2 (likely inside and limited outside)Vodaphone (limited inside and outside)(Potential purchasers are advised to seek their own advice as to the suitability of the services and mobile phone coverage, the above is for guidance only.)Available broadband: Ultrafast Broadband: FTTP Superfast Broadband: Fttc Standard Broadband: AdslNetworks in your area: EE and Three (Information supplied by Ofcom)Flood Risk: Very Low risk of surface water flooding and Very low risk river and sea flooding (Information supplied by and purchasers are advised to seek their own legal advice)Local Council: Southwark / Tax Band: CEPC Rating: DFloor plan: Whilst every attempt has been made to ensure accuracy, all measurements are approximate and not to scale. The floor plan is for illustrative purposes only.

More articles