Studio for sale Gowrie Road, London SW11

£1,000,000

Key info

  • Status: For sale
  • Type: Studio
  • Area: Gowrie Road, London, London

Price changes

£1,000,000 13 days ago

Full description

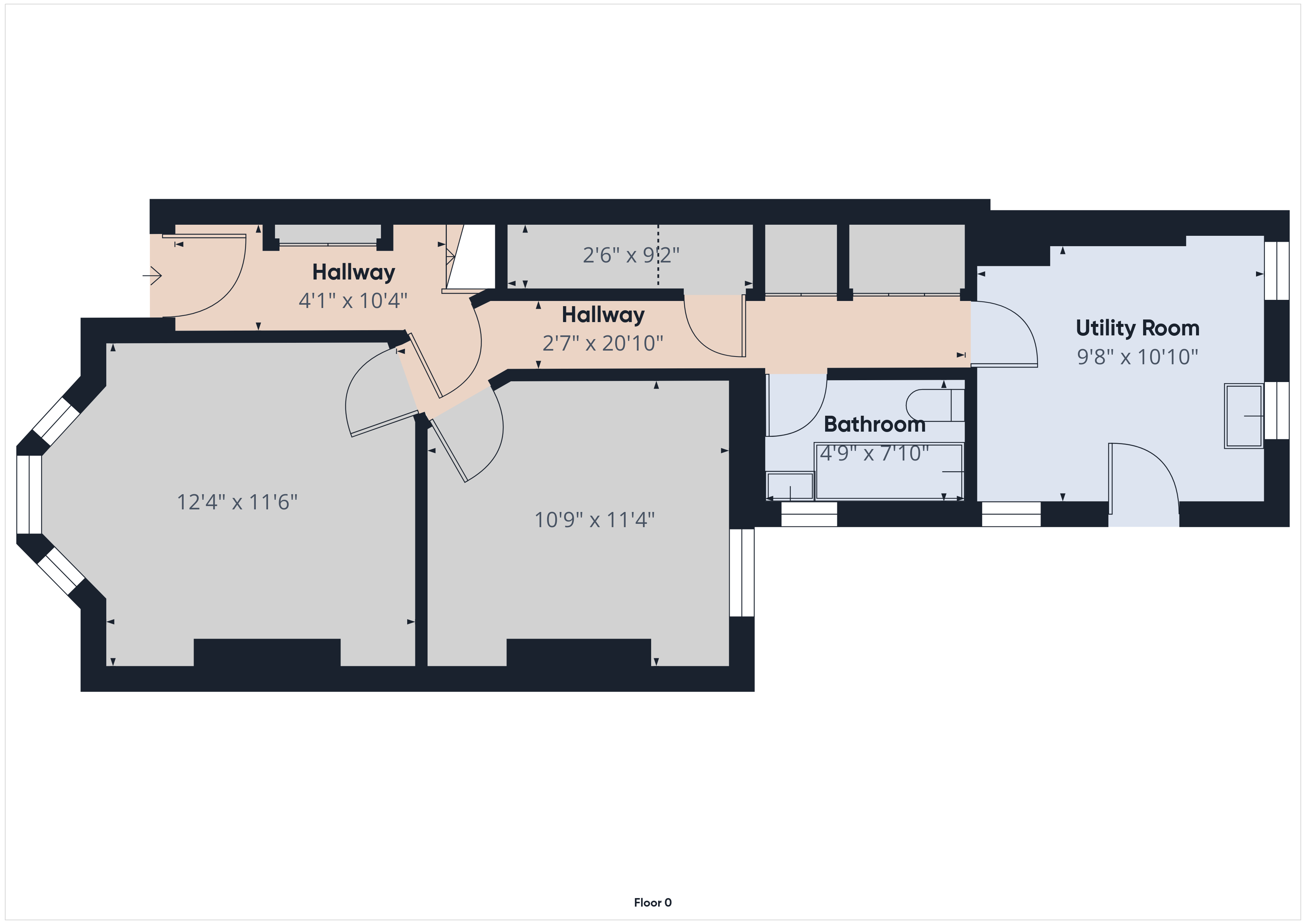
Nestled in the desirable area of Gowrie Road, London, SW11 5NR, this freehold block of flats presents a unique opportunity for both investors and homeowners alike. Spanning an impressive 1,102 square feet, the property comprises two well-proportioned one-bedroom flats, one located on the ground floor and the other on the first floor.The ground floor flat boasts the added benefit of a private garden, providing a tranquil outdoor space perfect for relaxation or entertaining. This feature is particularly appealing in the bustling city, offering a slice of nature right at your doorstep.While the property is in need of modernisation, it presents a blank canvas for those looking to put their personal touch on their living space. Additionally, there is potential to extend into the loft, allowing for further development and enhancement of the property, which could significantly increase its value.This block of flats is ideally situated, providing easy access to local amenities, transport links, and the vibrant culture that London has to offer. Whether you are looking to invest or create your dream home, this property offers a wealth of possibilities in a sought-after location. Do not miss the chance to explore the potential that this property holds.

More articles