4 bed semi detached house for sale Panorama Walk, Pateley Bridge, Harrogate, North Yorkshire HG3

£595,000 guide price

Key info

  • Status: For sale
  • Type: Semi detached house
  • Bedrooms: 4
  • Receptions: 3
  • Bathrooms: 2
  • Area: Panorama Walk, Harrogate, North Yorkshire

Price changes

-4.8% £595,000 3 months ago
£625,000 5 months ago

Full description

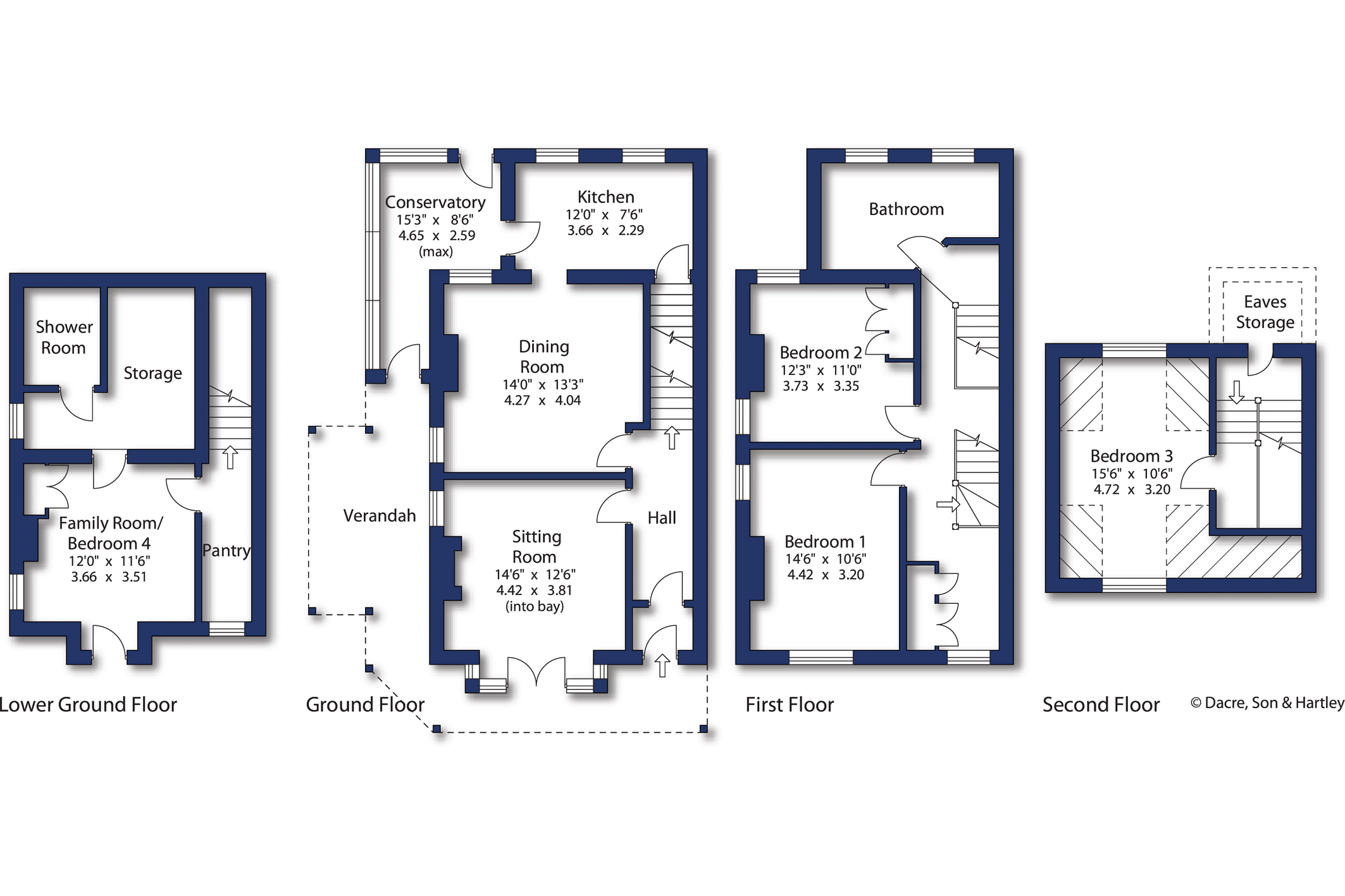
An outstanding three / four bedroom semi detached period property with family accommodation arranged over four floors in just under 1/5th acre of landscaped gardens with long distance views across Nidderdale."Athol House" is a handsome dressed stone semi detached Victorian home with gas fired heating and double glazing situated above the thriving Dales town of Pateley Bridge with panoramic views across the Nidderdale Valley.Cleverly designed within the upper reaches of the valley amidst countoured gardens the accommodation is arranged over four floors and is ideal for the busy family with a healthy lifestyle.At upper ground floor level with a "wrap around" verandah a reception hall leads to an elegant sitting room, separate dining room, a well appointed kitchen and a garden room / conservatory.On the lower ground floor a versatile range of rooms rovides guest bedroom or home office space with a large pantry area and separate shower room and additional storage space all of which could create a self contained living space.To the first floor two double bedrooms and a further second floor family bedroom are served by a spacious house bathroom with shower enclosure.In addition to the superb verandah there are extensive landscaped gadens backing onto the Nidderdale Way which comprise a combination of lawnsa and seating areas with vehicular access to car parking for at least three vehicles.This is a protected setting on the Eastern fringes of the township with unrivalled views across the valley and an excellent range of amenities close at hand around the High Street in Pateley Bridge. There are well established local shops and education up to gcse age group, for the busy commuter there are excellent road links into Harrogate and Ripon.Local Authority & Council Tax Band• North Yorkshire Council,• Council Tax Band FTenure, Services & Parking• Freehold• All mains services are installed• Off road private parkingInternet & Mobile CoverageThe Ofcom website shows internet available from at least 1 provider. Outdoor mobile coverage (excl 5G) likely from at least 1 of the UK’s 4 main providers. Results are predictions not a guarantee & may differ subject to circumstances, exact location & network outagesFloodingCheck for flooding in England - indicate the long term flood risks for this property are: - Surface Water - Very low; Rivers & the Sea - Very low; Groundwater - Flooding from groundwater is unlikely in this area; Reservoir - Flooding from reservoirs is unlikely in this area.Proceeding from our Pateley Bridge office to the top of the High Street and onto Ripon Road, Athol House will be past the Methodist Church on the left hand side up the second tarmac drive.

More articles