3 bed terraced house for sale Aldreth Grove, York YO23

£575,000 guide price

Key info

  • Status: For sale
  • Type: Terraced house
  • Bedrooms: 3
  • Receptions: 2
  • Bathrooms: 2
  • Area: Aldreth Grove, York, North Yorkshire

Price changes

£575,000 3 months ago

Full description

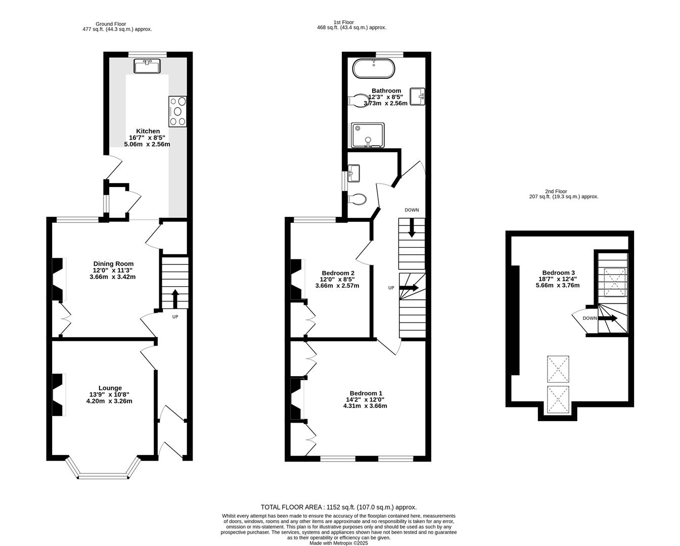
An exceptional three bedroom forecourted period town house located in this highly sought after street, adjacent to rowntrees park - Moments from Bishopthorpe Road shopping parade as well as convenient for the Railway Station and York’s historic city walls, this superb property provides spacious and high quality living accommodation, retaining period features throughout and comprising; entrance vestibule and hallway with encaustic tiles, lounge with bay window and shutters, dining room, 16’ shaker kitchen, first floor galleried landing, recently upgraded house bathroom, two first floor double bedrooms, WC, second floor landing and second floor bedroom three. To the outside is an impressive front forecourt whilst to the rear is a walled courtyard with paved area, borders, gate for access and timber storage shed. An internal viewing of this notable property is highly recommended.Entrance VestibuleGlazed composite entrance door, dado rail, original stained glass glazed panel door to:Entrance HallwayRecessed LED spotlights, dado rail, double panelled radiator, tiled flooring, stairs with carpet runner to first floorLounge (3.61m x 3.25m plus bay (11'10" x 10'8" plus bay))Double glazed timber framed slide sash bay window to front with shutters, column radiator, ceiling rose, coving, picture rail, period fireplace, carpet, power pointsDining Room (3.68m x 3.42m (12'0" x 11'2"))UPVC window to rear, fire surround, column radiator, original period storage cupboard, tiled effect flooring, power points, coving, understairs cupboardKitchen (5.05m x 2.57m (16'7" x 8'5"))Timber framed double glazed windows to side and rear, door to courtyard, Shaker style fitted wall and base units with oak counter top, double Belfast sink with mixer tap, integrated appliances, newly installed recessed LED spotlights, tiled effect flooring, power points, column radiator, storage cupboard housing gas combination boilerFirst Floor Galleried LandingCarpet, column radiator, stairs to second floorBedroom 1 (4.32m x 3.66m (14'2" x 12'0"))Two timber framed double glazed sliding sash windows to front, column radiator, period fireplace, two double fitted wardrobes, carpet, power points, picture railBedroom 2 (3.68m x 2.62m (12'1 x 8'7"))UPVC window to rear, column radiator, period fireplace, fitted wardrobes, carpet, power pointsHouse Bathroom (2.90m x 2.59m widening to 3.71m (9'6" x 8'6" widen)UPVC window to rear, feature free standing bath with mixer tap, walk in shower cubicle, low level wc, wash hand basin, column radiator, towel radiator, recessed LED spotlights, extractor fan, tiled flooringCloakroom/Utility AreaOpaque window to side, wash handbasin, low level wc, towel radiator, 'Karndean' limed Oak flooring, power points, recessed LED spotlights, space for tumble dryer with storage cupboard aboveSecond Floor LandingVelux window, carpet, door to:Bedroom 3 (5.66m x 3.76m (18'7" x 12'4"))Two Velux windows to front, double panelled radiator, carpet, power pointsOutsideImpressive upgraded front forecourt. Rear walled courtyard garden with paved areas, borders, timber shed and gated access to service alleyway

More articles