4 bed detached house for sale Redwood Drive, Haxby, York YO32

£600,000 offers over

Key info

  • Status: For sale
  • Type: Detached house
  • Bedrooms: 4
  • Receptions: 2
  • Bathrooms: 3
  • Area: Redwood Drive, York, North Yorkshire

Price changes

£600,000 3 months ago

Full description

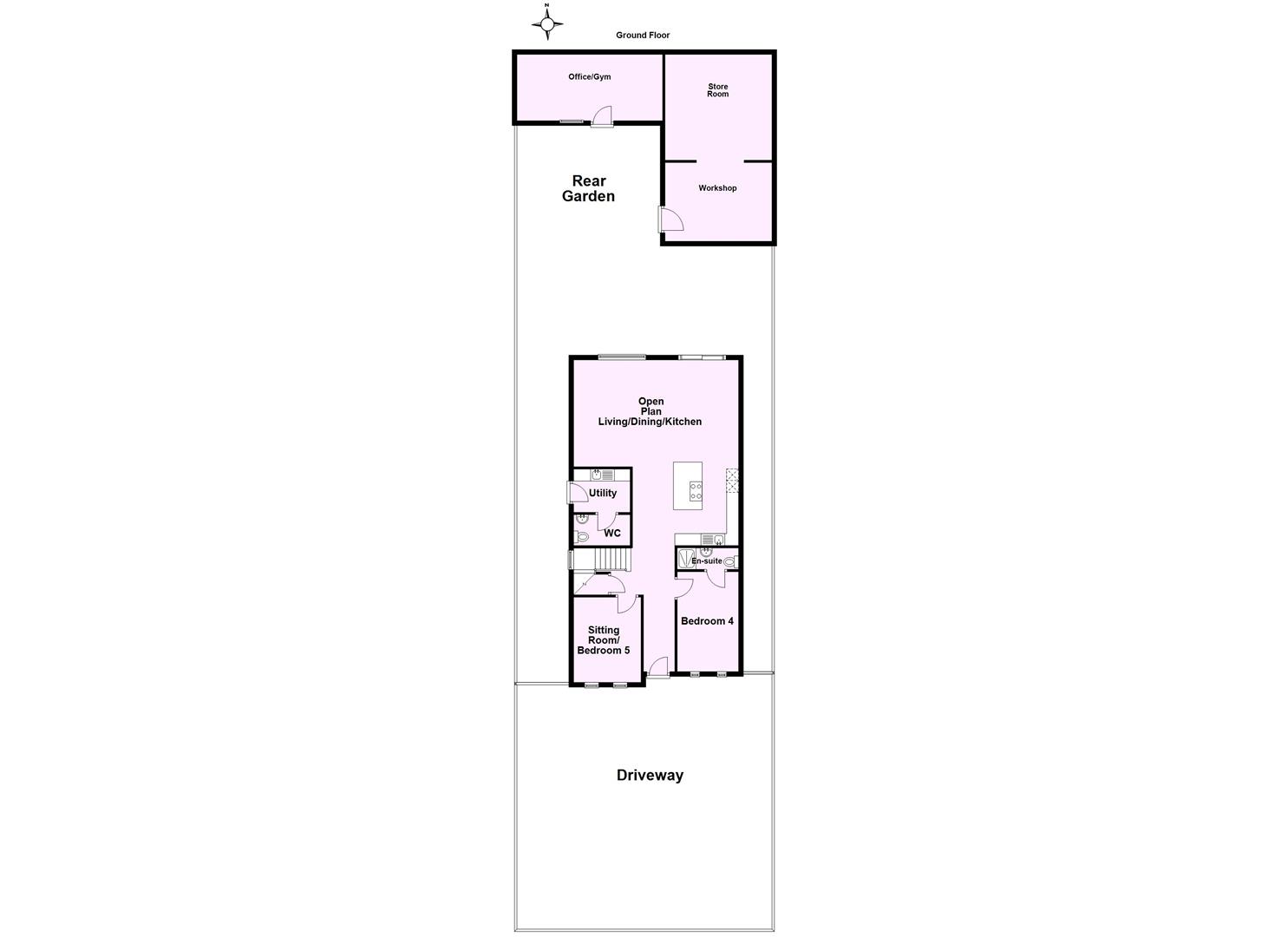
Redwood House is an attractive new build detached family home, situated in a highly sought after cul-de-sac, with an amazing open plan kitchen / dining / living space and a separate home office / studio in the garden. The property is ideally located to access the village amenities and highly regarded local schools.Offered for sale with no onward chain, the accommodation is finished to a high standard and has over 1,600 sq ft of flexible living space, arranged over two floors.Upon entering the property through a frosted glazed door, you are greeted by a welcoming hallway that has stairs leading to the first floor, a storage cupboard and opens to a spacious, open plan kitchen / living / dining space. The kitchen area has bespoke fitted units, with integrated appliances, a central island with breakfast bar and white granite worktops. The living / dining area has doors opening to the rear garden and a feature floor to ceiling window, allowing light to flood into the room. Accessed off the kitchen is a utility room, with a door leading to the side of the property and a guest WC. Completing the ground floor accommodation which has underfloor heating throughout, is a sitting / family room and a ground floor bedroom with en-suite shower room.A first floor landing serves three double bedrooms, the main bedroom has an en-suite shower room and walk-in wardrobe and there is also the main house bathroom.Externally, the property is approached by a gravelled driveway providing off-road parking for four vehicles. Side gated access opens to an enclosed garden laid mainly to lawn, with patio seating area, a home office / studio and two workshops.We strongly recommend an early viewing to fully appreciate the accommodation and location on offer.General RemarksViewing North Of YorkAll viewing is strictly by prior appointment with the sole selling agents, Hudson Moody. Please contact our offices at 58, Micklegate, York, YO1 6LF or The Green, Poppleton, York, YO26 6DF. Telephone .Fixtures & FittingsAll fixtures and fittings are specifically excluded from the sale unless they are mentioned in the particulars of sale.LocationConveniently situated near to all the shops and facilities available in Haxby & Wigginton and ideally located to access the city centre, outer ring road and A64 serving the motorway network.ServicesMains supplies of water, electricity and drainage. Gas fired central heating.Local Authority YorkCity of York Council, West Offices, Station Rise, York, YO1 6GA. Telephone .Offer ProcedureBefore contacting a Building Society, Bank or Solicitor you should make your offer to the office dealing with the sale, as any delay may result in the sale being agreed to another purchaser, thus incurring unnecessary costs. Under the Estate Agency Act 1991, you will be required to provide us with financial information in order to verify your position, before we can recommend your offer to the vendor. We will also require proof of identification in order to adhere to Money Laundering Regulations.

More articles