4 bed country house for sale Faraway, Stonewall Hill, Presteigne LD8

£690,000

Key info

  • Status: For sale
  • Type: Country house
  • Bedrooms: 4
  • Area: Stonewall Hill, Presteigne, Powys

Price changes

-8.0% £690,000 2 months ago
£750,000 8 months ago

Full description

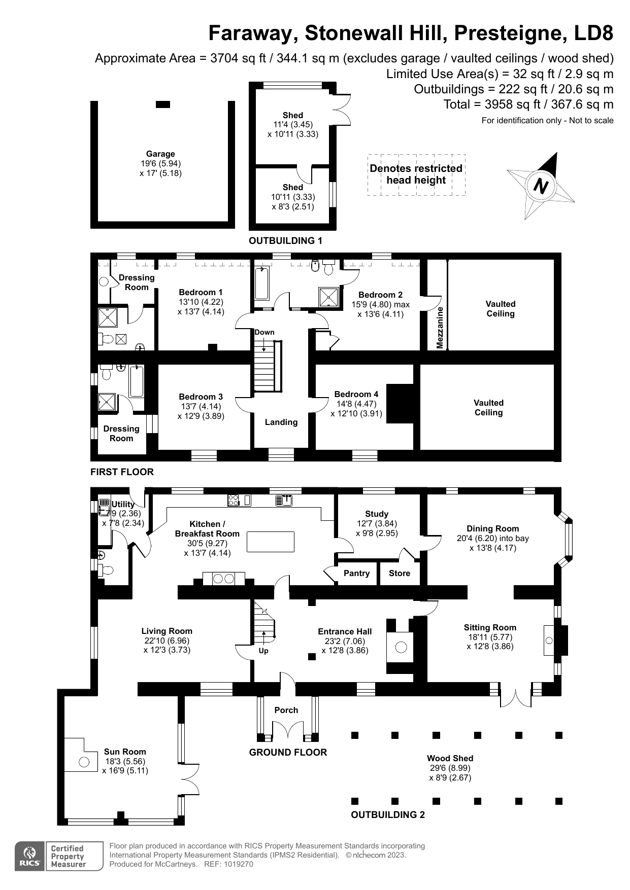
Spacious, fully refurbished and extended Welsh Longhouse offering a wealth of character. Ample parking, garaging and grounds extending to approximately an acre with wonder rural views.Faraway is an original 300 year old Welsh Longhouse which has been carefully refurbished and extended by the current owners in 2004. Offering a wealth of character to include stone and brick fireplaces, exposed oak framework and beams, vaulted ceilings and flagstone floors together with modern convenience of 3 bath/shower rooms, extensive fitted kitchen with Aga, range cooker and integrated appliances, oil fired central heating, double glazed windows and wonderful oak framed sun room overlooking the garden. Externally, the large gravelled driveway provides ample parking preceding the garage and outbuilding which is ideal for conversion to home office/leisure suite or small annexe; subject to gaining any necessary permissions. The grounds are mainly laid to lawn with large flagstone terrace, fish pond, mature trees and uninterrupted views to the rear over the adjoining farmland.Located close to the market town of Knighton near the Powys/Herefordshire/Shropshire border, an area renowned for its beautiful countryside and the famous Offa’s Dyke and Glyndwr’s Way. The town offers good local shopping, educational and recreational facilities with the larger towns of Ludlow, Leominster and Llandrindod Wells being some 17,18 and 19 miles away respectively. The whole of Mid Wales is noted for its areas of outstanding natural beauty, wild flora and fauna, renowned amongst the walking and riding fraternity. AccommodationThe property comprises the following accommodation : PorchWith tiled floor, timber side shelves, leaded stained glass windows to side, matching double doors to patio with views over the garden to distant hills and original oak door to :Entrance HallOffering stone inglenook fireplace with oak lintel, beamed ceiling, flagstone floor, radiator and oak stair to first floor.Living RoomWith oak flooring, beamed ceiling, radiator, double glazed windows to front and side and opening to: Sun RoomWith impressive vaulted ceiling and oak beams, oak flooring, Morso woodburning stove, marble hearth, 2 radiators, double glazed windows overlooking rear garden and French doors to patio.Kitchen/Breakfast RoomA wonderful spacious room with extensive fitted base and wall cupboards, wood block worksurfaces, oil fired Aga providing heat for cooking, hot water and heated towel rail with granite surfaces to the sides and timber mantle over, Rangemaster electric range cooker with matching extractor hood, twin bowl ceramic sink, integrated fridge and dishwasher, tiled floor and splashbacks, radiator, walk-in pantry with shelving, 2 double glazed windows to rear and door to: Utility RoomWith fitted base and wall cupboards, stainless steel sink, plumbing for washing machine, radiator, extractor fan, tiled floor and splashbacks, oil fired boiler providing central heating and hot water, double glazed window to side, external door to rear and door to: Separate W.C.With wash basin, radiator, tiled floor and splashbacks, extractor fan and duble glazed window to side.StudyWith radiator, tiled floor, walk-in storage cupboard and double glazed window to rear.Dining RoomWith vaulted ceiling and minstrels gallery over, parquet flooring, radiator, double glazed window to rear, bay window to side and opening to:Sitting RoomAgain with impressive vaulted ceiling and exposed oak trusses, parquet flooring, brick fireplace with woodburning stove on stone hearth, 2 radiators, double glazed window to side and French doors to front patio with views over garden to distant hills.First Floor Galleried LandingWith a wonderful exposed oak framework, radiator and double-glazed window to front with stone sill.TenureWe are informed that the property is freehold.FixturesThe agent has not tested any apparatus equipment, fixtures, fittings or services and so cannot verify that they are in working order, or fit for their purpose. The buyer is advised to obtain verification from their solicitor or surveyor.Agents NotesWhilst we endeavour to make our sales particulars accurate and reliable, if there is any point which is of particular importance to you, and then please contact our office andfull details are available from the agents david parry & co tel: Email:

More articles