5 bed detached house for sale West Byfleet, Surrey KT14

£1,100,000 guide price

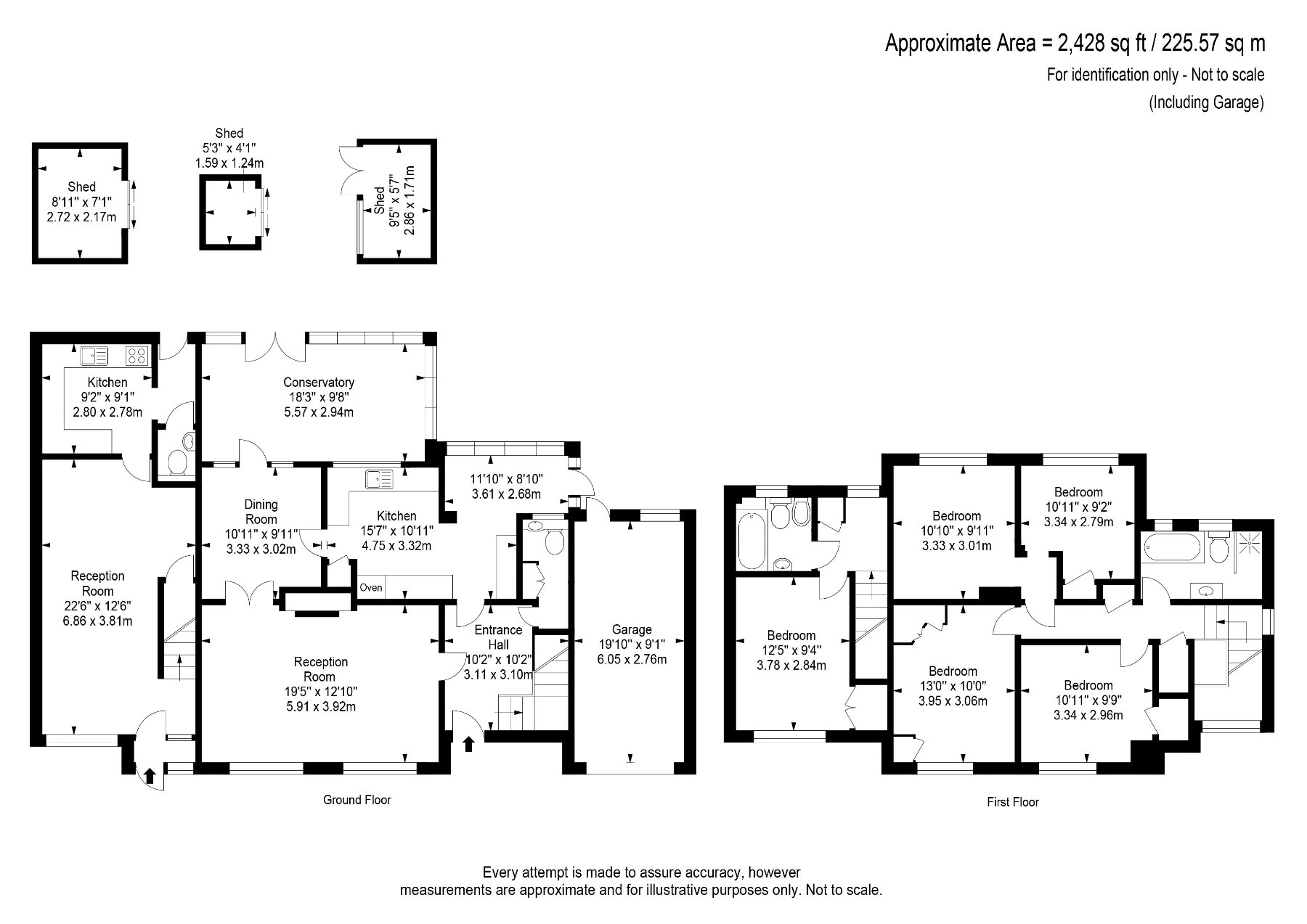
Key info

  • Status: For sale
  • Type: Detached house
  • Bedrooms: 5
  • Receptions: 4
  • Bathrooms: 2
  • Area: Dartnell Park Road, West Byfleet, Surrey

Price changes

-8.3% £1,100,000 2 days ago
-4.0% £1,200,000 19 days ago
£1,250,000 one month ago

Full description

An immaculately presented and highly versatile property offering two separate homes under one roof: A beautifully appointed 3–4 bedroom family house and a spacious 1-bedroom house. Cleverly divided, this unique setup provides fantastic flexibility for a variety of buyers, whether you're looking for a multi-generational living arrangement, a home with an annexe, or a valuable rental investment. The main house offers generous and well-balanced accommodation, perfect for comfortable family living. On the ground floor, there is a welcoming entrance hall, a downstairs cloakroom, and a spacious main living room which flows into a separate dining room. From here, doors open into an impressive 18’3 conservatory that brings in plenty of natural light. The modern kitchen is well equipped and leads into an attractive seating area, ideal for relaxed meals and socialising. Upstairs, the main house features 3 good-sized bedrooms and a stylish family bathroom. The principal bedroom includes a separate dressing room, which could be converted into a fourth bedroom, home office, or nursery if required. The adjoining 1-bedroom house is equally impressive, with its own private entrances (front and rear) and larger-than-average enclosed rear garden. Inside, there is a bright and spacious 22’6 lounge/dining room, a modern kitchen with views over the garden, and a rear entrance lobby with a downstairs cloakroom. Upstairs, it features a large double bedroom and a well-appointed bathroom.Externally, the property has been thoughtfully landscaped to provide each home with its own separate garden area. The main garden includes a beautifully designed patio courtyard, which gives access to a charming summer house and a hot tub enclosure. The front garden is of excellent size, with a generous driveway leading to an attached garage with an automatic roller door.Although currently arranged as 2 self-contained homes, the property could easily be reinstated as a substantial 5-bedroom detached house. Alternatively, the 1-bedroom side could offer a projected rental income of around £1,500 per month, adding to the appeal for investors. This is a rare opportunity to acquire a property with this level of flexibility, presentation, and potential ideal as a forever family home, a rental investment, or for those looking to accommodate multiple generations in comfort and style.West Byfleet village centre, with its mainline railway station and recreational grounds, is approximately a 10-minute walk away. The village offers a variety of shops, including a Waitrose supermarket. Just a few miles away is the historic Brooklands motor racing circuit now home to museums, aircraft displays, and the Mercedes-Benz World Centre. For a more comprehensive shopping experience, a nearby retail park includes Marks & Spencer, Tesco, and other major chains. The property is conveniently located near both Junctions 10 and 11 of the M25, offering excellent road connectivity. The town centres of Weybridge, Walton-on-Thames, and Cobham are within easy reach, while larger shopping hubs in Guildford, Woking, and Kingston are also easily accessible. For those commuting by car, central London can be reached in approximately 40 minutes.

More articles