3 bed terraced house for sale Devon Road, North Shields NE29

£225,000

Key info

  • Status: For sale
  • Type: Terraced house
  • Bedrooms: 3
  • Receptions: 1
  • Bathrooms: 1
  • Area: Devon Road, North Shields, Tyne & Wear

Price changes

£225,000 3 months ago

Full description

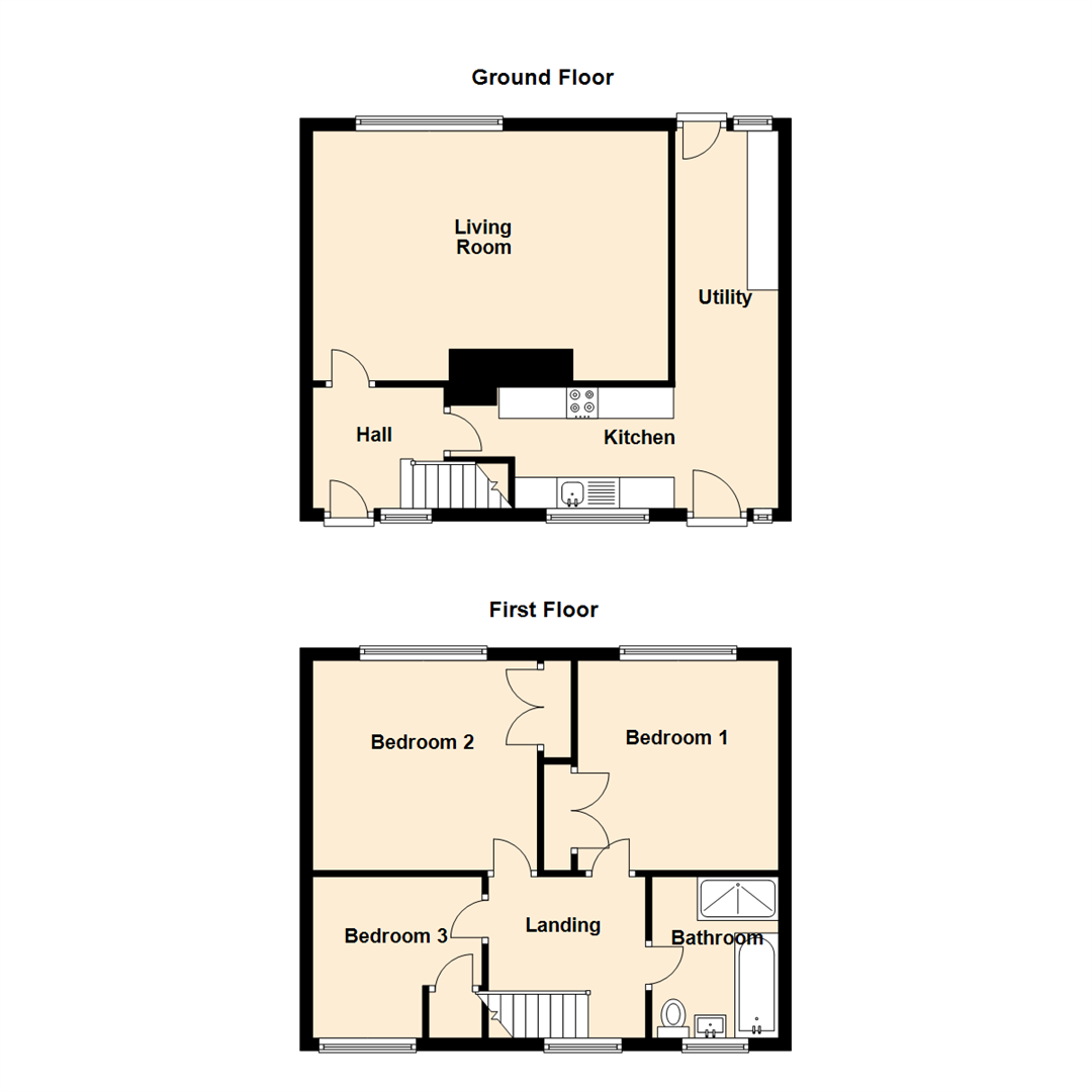
** Video Tour on our YouTube Channel | **This superbly presented, three-bedroom, mid-terraced house is positioned in Devon Road, in North Shields, offering an ideal family home in a popular location. Offered for sale with the benefit of no onward chain.The location of this property offers fabulous variety of local amenities within easy reach including cafes, bars, and restaurants. The A1058 Coast Road is close by, so you have a direct route to the beach or Newcastle City Centre. There are good links to public transport facilities including prime bus routes and the Metro service. For the growing family, the property is close to well-regarded schools.Internally the property briefly comprises to the ground floor: - entrance hallway, spacious lounge, well-appointed kitchen with fitted units and integrated appliances and a handy utility area with access to the rear. To the first floor there are three bedrooms and a modern bathroom WC with four-piece suite. Further benefits include gas central heating and double glazing.Externally there is an easy to maintain garden to the front and there is a charming rear garden with a patio area, decking and lawn.For more information and to book a viewing please call our Tynemouth branch on .TenureThe agent understands the property to be freehold. However, this should be confirmed with a licenced legal representative.Council Tax band *A*.Living Room (4.00 x 5.69 (13'1" x 18'8"))Kitchen (1.94 x 5.25 (6'4" x 17'2"))Utility (4.00 x 1.66 (13'1" x 5'5"))Bedroom One (3.36 x 3.21 (11'0" x 10'6"))Bedroom Two (3.36 x 3.59 (11'0" x 11'9"))Bedroom Three (2.58 x 2.71 (8'5" x 8'10"))

More articles