3 bed semi detached house for sale Whitfield Road, Seaton Delaval, Whitley Bay NE25

£239,950 offers over

Key info

  • Status: For sale
  • Type: Semi detached house
  • Bedrooms: 3
  • Receptions: 2
  • Bathrooms: 1
  • Area: Whitfield Road, Whitley Bay, Tyne & Wear

Price changes

-4.0% £239,950 5 months ago
£249,950 10 months ago

Full description

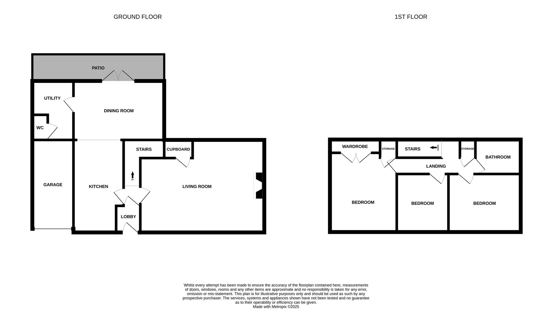
An excellent opportunity has arisen to purchase this superb extended family sized Semi Detached house situated in the heart of Seaton Delaval, with local amenities nearby including the newly opened Northumberland Train Line.Internal viewing is essential to fully appreciate the quality of accommodation on offer, this property has the advantage of being ready to move into. Briefly comprising a Reception Hallway, 19ft Lounge/Diner with feature fire surround incorporating a gas fire and ample space for a dining table. Lovely re-fitted Kitchen with a good range of wall and floor units, contrasting work surfaces incorporating a gas hob, electric oven, under bench fridge square arch to a Lovely Extended Family Room with velux windows and Doors opening to Rear Garden. Utility Room with plumbing for an automatic washing machine, door to ground floor w.c. To the first floor there are 3 well proportioned bedrooms master with sliding door wardrobes, Bathroom with white suite of panelled bath with mains shower over, wash hand basin and low level w.c.Externally there is a garden to the front and driveway leading to garage, whilst to the rear there is a further fenced garden.There is UPVC double glazing and Gas Central Heating.Reception HallwayLounge/Dinder (5.84m x 4.47m (19'2 x 14'8))Kitchen (4.42m x 1.83m (14'6 x 6'12))Family Room (4.29m x 3.07m (14'1 x 10'1))Utility Room (1.96m x 2.84m (6'5 x 9'4))Ground Floor W.C. (0.91m x 1.63m (3'0 x 5'4))Bedroom One (3.07m x 3.71m (10'1 x 12'2))Bedroom Two (3.18m x 2.77m (10'5 x 9'1))Bedroom Three (2.46m x 2.54m (8'1 x 8'4))Bathroom/W.C. (1.63m x 2.18m (5'4 x 7'2))

More articles