5 bed detached house for sale Heath End, East Woodhay, Hampshire RG20

£4,500,000 guide price

Key info

  • Status: For sale
  • Type: Detached house
  • Bedrooms: 5
  • Receptions: 4
  • Bathrooms: 5
  • Area: Heath End, Newbury, West Berkshire

Price changes

£4,500,000 one month ago

Full description

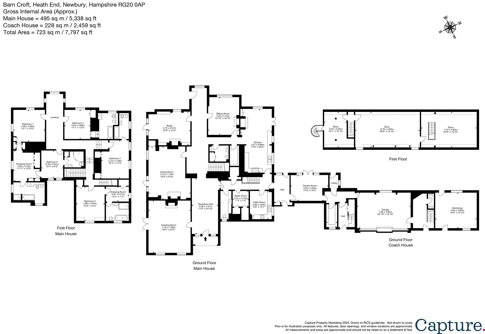
A superb unlisted country house, in the sought after parish of East Woodhay and sitting in an exceptional setting with a coach house, beautiful gardens and land extending to 17.45 acresDescriptionBarn Croft is a handsome country house, understood to date from about 1830 but having been extended and altered over the years, most recently in the early 21st Century. The property is offered to the open market for the first time in over 40 years. It is unlisted and offers potential for a buyer to make further improvements, subject to planning permission.The house has wonderful proportions, with high ceilings and large sash windows as well as some lovely period fireplaces. The front door opens into a reception hall with grand proportions which runs the width of the house. The reception rooms include an elegant drawing room, added in 2007, which is a magnificent space, with sash windows, high ceilings and an open fireplace with a Jetmaster grate. There is a large dining room, ideal for entertaining and a study, both of which have glazed doors opening onto a south facing terrace. There is also a sitting room which links via an inner hall to the kitchen/breakfast room.The kitchen/breakfast room has a lovely outlook over the walled garden with French doors opening onto the terrace. An adjoining back hall opens through to a utility room and cloakroom. A garden room provides a link to the coach house.There are five double bedrooms on the first floor, all of which have en suite bathrooms with the principal bedroom and guest suite also having adjoining dressing rooms.Coach houseA brick and flint coach house adjoins the main house to the north. It currently provides garaging, a workshop and stores on the ground floor, with the first floor converted in the 1980s to provide a games room and adjacent store rooms.Gardens & groundsBarn Croft is approached from the lane via electric hardwood double security gates opening onto a gravel driveway which sweeps in from the north of the house, giving lovely views over the grounds which have a parkland feel with many wonderful trees. The main parking area is in front of the coach house.The gardens are principally laid to lawn, with a beautiful walled garden immediately to the north of the house. To the south there is a terrace with lawns beyond, framed by a wide herbaceous border and mature trees. To the north of the driveway there is a garden with a pavilion and a gravel path leads to the hard tennis court.Beyond the gardens, the land opens seamlessly into open pasture, interspersed with some wonderful historic trees and with a recently planted copse of native trees to the far south-east. To the West there is a further block of land on the other side of the lane which is laid to pasture, with a water trough(currently disconnected).Cricket field freeholdThe sale includes a further 5.8 acres subject to a covenant from 2011 that it can only be used as a cricket field and no buildings can be erected or extended without the permission of the heirs to the original owner. There is a ten-year lease to East Woodhay Cricket Club at a fixed rent of £1,600 per annum which restricts access to members and guests of a private cricket club and which restricts use to playing watching and practising cricket. Details are held by the selling agent.LocationBarn Croft sits in an outstanding rural location to the South-West of Newbury, in the sought-after Parish of East Woodhay, between the hamlets of Heath End and East End and within East End’s conservation area. The surrounding countryside is designated the North Wessex Downs National Landscape and includes some of the finest landscapes in Southern England, with rolling downland and gently undulating farmland interspersed with pretty villages, farm buildings and country houses.The house itself has wonderful views over its own land, the surrounding countryside and long views to the downs towards Combe Gibbet.The hamlet of East End has a highly regarded primary school, St. Martin’s, a restaurant/farm shop and a local cricket club.The nearby hamlet of Ball Hill has the Furze Bush pub as well as the popular Yew Tree Garden Centre and café. Woolton Hill (1.5 miles) is home to Thorngrove School, a Post Office and general store, a gp practice, tennis club and children’s football club.The market towns of Hungerford and Newbury both have direct rail services to London Paddington. Newbury offers a wide range of amenities including the world famous racecourse, the renowned Watermill Theatre, supermarkets and an independent department store.The surrounding villages and countryside offer many opportunities for dining at a variety of public houses and restaurants, including the Michelin guide options The Vineyard and Woodspeen.There is a wide selection of preparatory and secondary schools in the area including Cheam, Thorngrove, St. Gabriel’s, Horris Hill, Brockhurst & Marlston, Elstree, Marlborough College, Downe House, Radley, Wellington and Bradfield.Square Footage: 5,338 sq ftAcreage:17.45 AcresDirectionsWhat 3 Wordsstill.exploring.relativesRG20 0AP

More articles