6 bed detached house for sale Fox's Lane, Kingsclere, Hampshire RG20

£6,450,000 guide price

Key info

  • Status: For sale
  • Type: Detached house
  • Bedrooms: 6
  • Receptions: 4
  • Bathrooms: 4
  • Area: Fox's Lane, Newbury, West Berkshire

Price changes

£6,450,000 one month ago

Full description

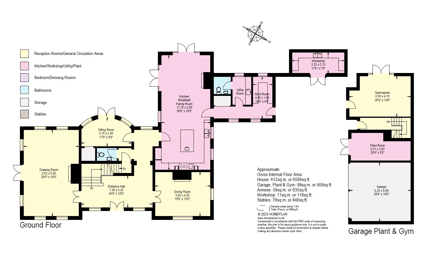
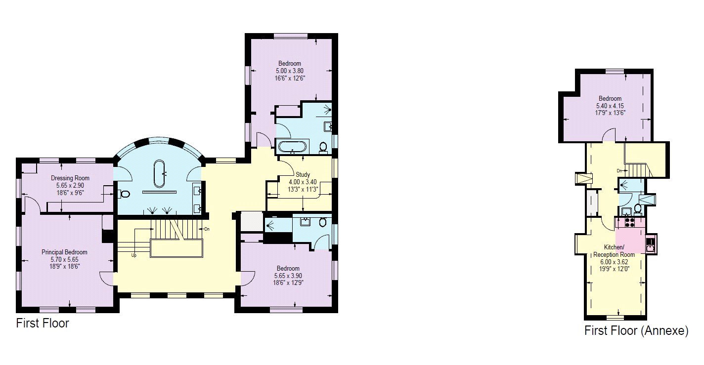
An immaculately presented country house set in an elevated position with far-reaching southerly views over the village of Kingsclere.DescriptionFox HallThe property is approached through electric gates with brick pillars, and a gravelled drive flanked by hornbeam trees leads up to the front door. The house is offered in immaculate condition throughout, having been constructed in 2014 by Sherbourne Developments.The entrance/reception hall sets the tone of this well laid out property, off which is the drawing room, dining room, and sitting room. All are well-appointed with generous ceiling heights and wide board oak flooring throughout.The kitchen/breakfast room is central to the house and briefly comprises an electric aga, Neff oven and microwave, integrated dishwasher, fridge, freezer, and drinks fridge. Within the breakfast/sitting area are two pairs of French doors giving direct access to the beautifully landscaped gardens.The back-room area has a generous boot room with benches, hooks, and shelves over, a laundry room, and a store. On the lower ground floor is a generously appointed cinema room with overhead projector and a partially glazed wine store with tiled floor, wine bins, and racking.On the first floor is a generously proportioned galleried landing, off which is the principal bedroom with adjoining dressing room and well-appointed bathroom. Over this floor are two further well-presented double bedrooms with adjoining bathrooms and a study.On the second floor, off a large landing with lantern over, are three double bedrooms and a family bathroom.Outside, within the courtyard, is a two-car carport with a workshop off. The two-storey garage block comprises two garages, a plant room, and gymnasium over the ground floor, with a staff flat comprising an open-plan reception room and kitchen, a double bedroom, and a shower room on the first floor.Garden and GroundsThe formal gardens are to the south and west of the property and comprise a wide variety of mature plants, trees, and shrubs. Within these areas is a Mediterranean garden with olive and Cypress trees, a sculpture garden, and an area of lawn enclosed by a Copper beech avenue. To the rear of the property is a large terrace area with olive tree topiary—an ideal place for alfresco dining.Beyond the formal gardens, there is an orchard, pasture, and parkland enclosed by metal estate fencing, a tennis court, and to the far west of the estate is an L-shaped stable block comprising three stables, a tack room, store room, and a garden/machinery store.SituationFox Hall occupies an outstanding location within a Conservation Area on the outskirts of the village of Kingsclere, at the foot of the North Hampshire Downs, part of which forms Watership Down. The area is of considerable natural beauty but is also extremely convenient for day-to-day living.Rail and road networks are excellent, with trains from Basingstoke to London Waterloo taking from 44 minutes, and the M3, M4, and A34 are all easily accessible.The well-regarded Cheam School is close by, and there are many other excellent independent schools in the area including Elstree, Horris Hill, St Gabriel’s, Downe House, Winchester College, St Swithun’s, and Radley College, to name a few.Within the thriving village are a number of shops including a butcher, village store and post office, as well as restaurants, public houses, a doctor’s surgery, veterinary practice, primary school, and church.More extensive facilities can be found further afield in Newbury and Basingstoke, including a Waitrose supermarket.For recreational amenities, horse racing can be found at Newbury and Salisbury, golf at Sandford Springs, and fishing on the Kennet, Test, Anton, and other chalk streams.Square Footage: 6,588 sq ftAcreage:9 Acres

More articles