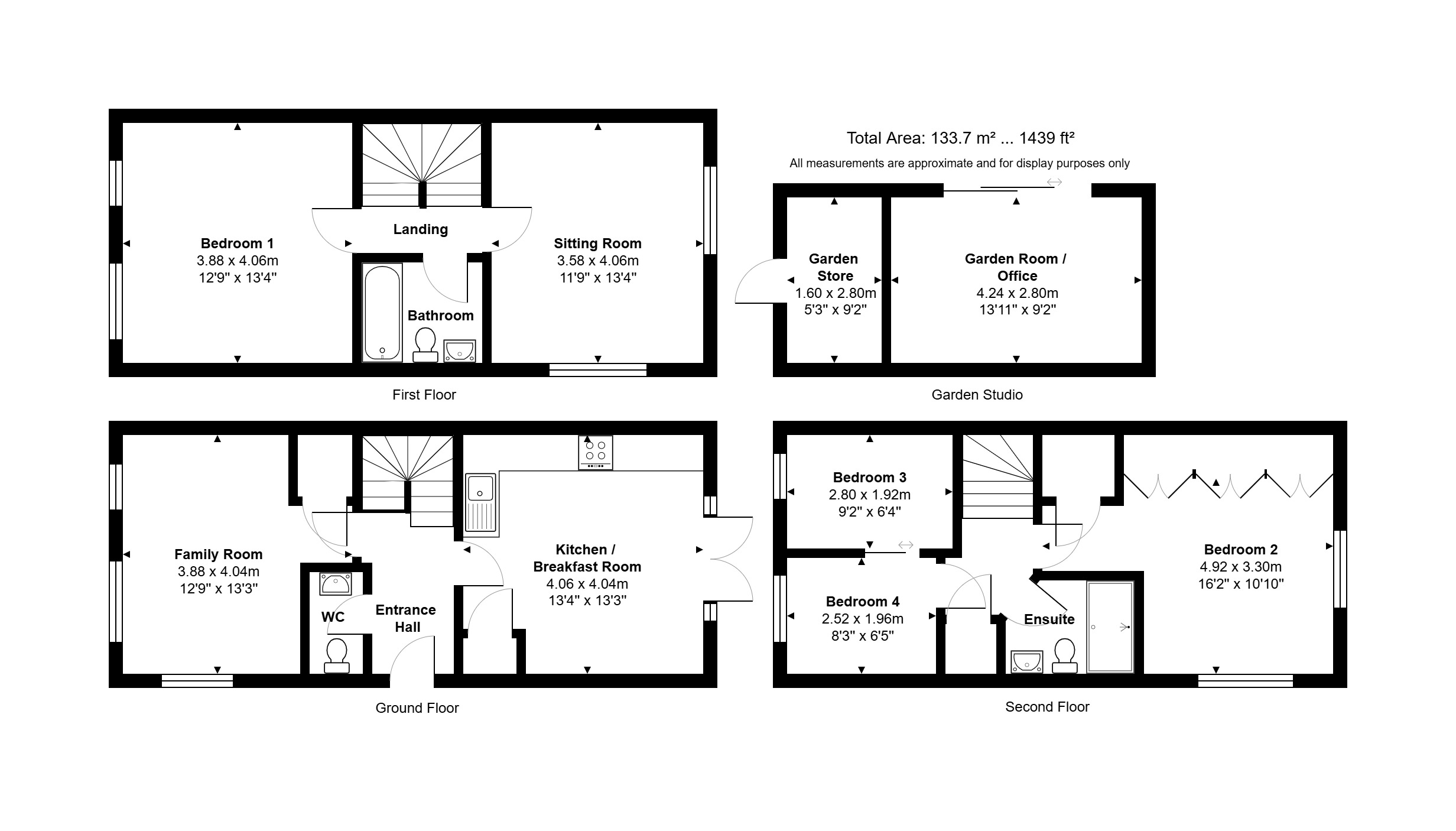
An excellent detached modern family home in a popular & convenient Trumpington location giving quick & easy access to Addenbrooke's, the city centre, the M11 and the city centre, arranged over three storeys and comprising 3 / 4 bedrooms, good entertaining space, parking and a garden studio. Unfurnished. This excellent three / four bed family home occupies a popular & highly convenient location in Trumpington giving quick & easy access to the Addenbrooke's campus, the M11, local amenities including a large Waitrose supermarket and Cambridge city centre.Arranged over three storeys and providing versatile, spacious, well proportioned and well presented accommodation, this home comprises the following:Entrance hall; ground floor w/c; family room; and kitchen / breakfast room with a near full range of integrated appliances and French doors to the garden.On the first floor, there is a landing; a large dual-aspect double bedroom; a Japanese-styled tatami-floored sitting room, also with dual aspect; and a three-piece family bathroom with towel rail and shower over bath.On the second floor there a two single bedrooms (one accessed from the other); and the principle bedroom which features ample storage and built in wardrobes; and a modern three piece en-suite shower room.Outside there is a small garden; driveway parking; and of real significance, a spacious garden studio which is perfect for us as a home office, with large storage to the side.Broadband speed: Up to 1800 Mbps download speedMobile coverage: Flood risk: Very lowUnfurnished.
New assured shorthold tenancies (ASTs) tenant fees
Holding Deposit: One week’s rent. (This is to reserve a property. Please Note: This will be withheld if any relevant person (including any guarantor(s)) withdraw from the tenancy, fail a Right-to-Rent check, provide materially significant false or misleading information, or fail to sign their tenancy agreement (and/or Deed of Guarantee) within 15 calendar days (or other Deadline for Agreement as mutually agreed in writing).
Security Deposit (per tenancy. Rent under £50,000 per year): Five weeks’ rent. (This covers damages or defaults on the part of the tenant during the tenancy)
Security Deposit (per tenancy. Rent of £50,000 or over per year): Six weeks’ rent. (This covers damages or defaults on the part of the tenant during the tenancy)
Unpaid Rent: Interest at 3% above the Bank of England Base Rate from Rent Due Date until paid in order to pursue non-payment of rent. Please Note: This will not be levied until the rent is more than 14 days in arrears.
Lost Key(s) or other Security Device(s): Tenants are liable to the actual cost of replacing any lost key(s) or other security device(s). If the loss results in locks needing to be changed, the actual costs of a locksmith, new lock and replacement keys for the tenant, landlord any other persons requiring keys will be charged to the tenant. If extra costs are incurred there will be a charge of £15 per hour (inc. VAT) for the time taken replacing lost key(s) or other security device(s).
Variation of Contract £50 (inc. VAT) per agreed variation. (To cover the costs associated with taking landlord’s instructions as well as the preparation and execution of new legal documents)
Change of Sharer £50 (inc. VAT) per replacement tenant or any reasonable costs incurred if higher. (To cover the costs associated with taking landlord’s instructions, new tenant referencing and Right-to-Rent checks, deposit registration as well as the preparation and execution of new legal documents.
Early Termination: Should the tenant wish to leave their contract early, they shall be liable to the landlord’s costs in re-letting the property as well as all rent due under the tenancy until the start date of the replacement tenancy. These costs will be no more than the maximum amount of rent outstanding on the tenancy.