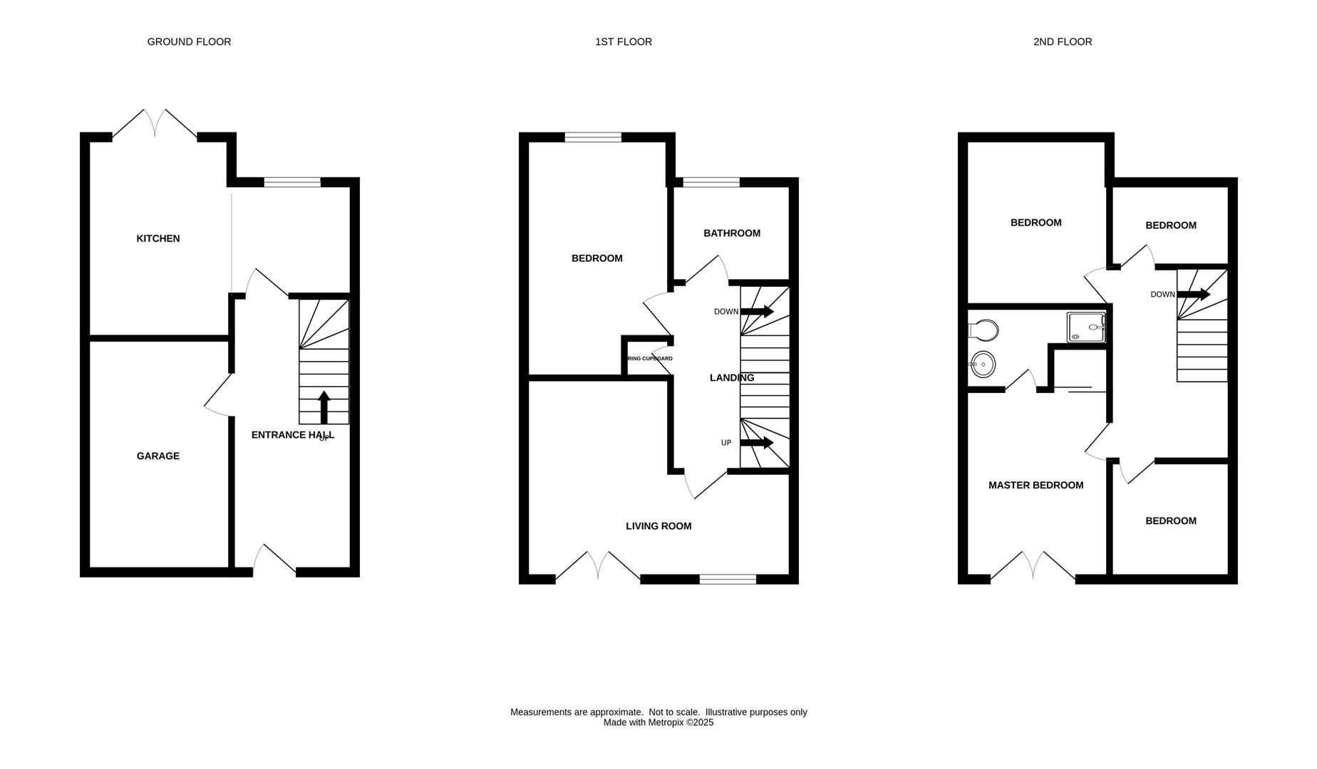
Available now part furnished - viewing essentialThis immaculate town house is located on the recently built Stanneylands Development, offering a semi-rural location but within easy reach of Wilmslow town centre. With The Carrs Country Park, River Bollin, Quarry Bank Mill and Styal golf club all on the doorstep.This estate offers modern spacious and attractive family accommodation on a quiet and highly regarded estate with well-tended communal areasEntrance hall with access to an integral garage and under-stairs storage. Spacious and extended living kitchen with dining area along with double doors leading to fully enclosed rear garden.To the first floor good sized lounge with Juliette balcony, double bedroom, and family bathroom.To the second floor main bedroom with fitted wardrobes and ensuite shower room and balcony, a further double bedroom, single bedroom, and nursery/study.Garage and off road parkingContact Wilmslow £2650.00 pcmCouncil tax EEPC BLocationLocated on the recently built Stanneylands Development, offering a semi-rural location but within easy reach of Wilmslow town centre. With The Carrs Country Park, River Bollin, Quarry Bank Mill and Styal golf club all on the doorstep.Jordan Fishwick Estate and Letting Agents Wilmslow office is located in a prime position central to the bustling and stylish town centre. With our impressive frontage it's impossible to miss our attractive office.Managed by Guy Grainger, Partner, who has been an Estate Agent since 1980, and has a wealth of local knowledge and experienceWith busy sales and lettings departments all under the same roof along with our independent mortgage advisor on hand the Wilmslow branch has everything you need to help with your sales or lettings transactions.Knowledgeable and friendly staff also compliment the range of services we offer and we are known throughout the Wilmslow area for our proactive approach in helping people find their dream homE.DirectionsProcced out of Wilmslow along Manchester Road and at the traffic lights take a right hand turn onto Stanneylands Road. Follow this road round past Stanneylands Hotel and Stanneylands Estate will be on the right hand side at the roundabout postcode SK9 4AF
For properties in England, the Tenant Fees Act 2019 means that in addition to rent, lettings agents can only charge tenants (or anyone acting on the tenant's behalf) the following permitted payments:
Holding deposits (a maximum of 1 week's rent); Deposits (a maximum deposit of 5 weeks' rent for annual rent below £50,000, or 6 weeks' rent for annual rental of £50,000 and above);
Payments to change a tenancy agreement eg. Change of sharer (capped at £50 or, if higher, any reasonable costs);
Payments associated with early termination of a tenancy (capped at the landlord's loss or the agent's reasonably incurred costs);
Utilities, communication services (eg. Telephone, broadband), TV licence and council tax;
Interest payments for the late payment of rent (up to 3% above Bank of England's annual percentage rate);
Reasonable costs for replacement of lost keys or other security devices;
Contractual damages in the event of the tenant's default of a tenancy agreement;
And Any other permitted payments under the Tenant Fees Act 2019.
We are also obliged to tell you we are members of the Property Redress Scheme - agent number PRS012604
We are also memebers of RICs Client Money Protection Scheme