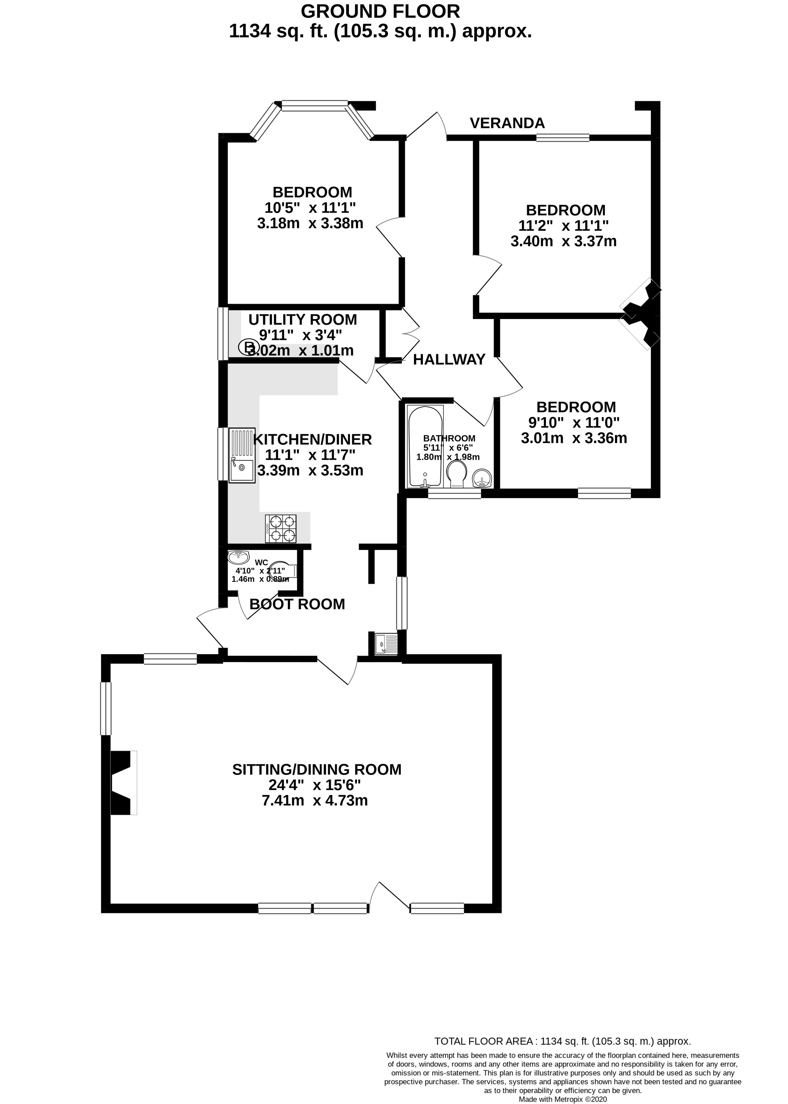
A stunning and substantial stone detached victorian bungalow with extended contemporary living with three bedrooms and extensive gardens to the front and rear set within substantial grounds which is surrounded by protected woodland. Property comprises; boiler/store room, inner hallway/utility room, cloaks/WC, modern fitted kitchen, impressive living and dining room which has full length double glazed windows and a french door to the garden, reception hallway, three generous bedrooms and family bathroom. Externally the property has mature gardens to both the front and rear which incorporate lawns, flowering borders, hedging and patio garden maintenance included To the side of the property there is a long driveway which provides off road parking for 6/7 cars and this leads to a large detached garage. Part furnished Energy Efficiency Rating: D. Council Tax Band: D. (Macclesfield Office)DirectionsSat nav: SK23 7PWLocationSet amid the rolling hills of the beautiful Peak District, Furness Vale is an ideal location situated in the picturesque Goyt Valley it is within close proximity to the beautiful Fernilee and Errwood reservoirs with the Peak Forest Canal at its heart. There are good commuter links to Manchester and the surrounding towns, by both rail and bus.In Further Detail The Accommodation ComprisesPlease note that we have not checked any of the appliances or the central heating system included in the sale (if any). All prospective purchasers should satisfy themselves on this point prior to entering into a contract.TenureFreeholdServices (Not Tested)Services have not been tested and you are advised to make your own enquiries and/or inspections.ViewingViewing strictly by appointment through the Agents.
We would like to provide clarity of the fees that may become payable during a tenancy you are looking to enter into. We believe you should understand these before you make any decision about a property or before you decide to view a property.
Acceptance of any offer will be subject to contract, referencing and immigration checks. You will need to pay the Rent and Deposit that is due under a Tenancy Deposit, or where the landlord is offering the property with a deposit replacement guarantee product, and you wish to take up this option, you will need to provide proof that you have purchased such a product by providing us with a copy of the insurance certificate before a tenancy can start.
Referencing and Right to Rent Checks - You will be asked to complete an application before referencing can be undertaken, you should also provide an original photographic Identification (e.g. Passport, National id card, visa, resident permit, driving licence) and Proof of Residence (e.g. Original utility bill, council tax bill or bank statement all of which much be less than 3 months old) if you have any queries relating to this please speak to the branch you are dealing with.
You should be aware that the need for a guarantor may not become apparent until your referencing (including references for any joint tenants) has been completed. Where a guarantor is required they will need to complete an application form and provide photographic identification and proof of residence.
Referencing will cover a check against the credit file and public records of the individual, an Anti-Money Laundering check, confirmation of employment and salary details, confirmation of previous tenancy details, right to rent checks, reporting the results of all those checks to your prospective landlord to see if your application is acceptable.
Tenant deposit from 1 June 2019 landlords in England are limited to the equivalent of 5 weeks rent for new and renewed tenancies (or 6 weeks if the annual rent is £50,000 or more). This is calculated by dividing the annual rent by 52 and multiplying by 5 (or 6 if rent is £50,000 or more) and will be required to be paid at the start of the tenancy. This is subject to referencing.
Tenant Fees Act 2019 permits certain fees / charges to be made under the following circumstances:
Company application fee £300.00 (£300 including VAT)
Default fee for late payment of rent - Chargeable from 14 days arrears calculated on the interest at 3% above Bank of England base rate on the late payment of rent for each day that the payment is outstanding.
Loss of a key or other security device - Landlords and letting agents can charge a tenant a fee to cover the cost of replacing the lost key or security device (e.g. Fob, electronic device for garage doors / security gates).
Payment on termination of a tenancy - Landlords and letting agents can require a tenant to make a payment for an early termination (surrender) of the tenancy agreement at the tenant's request.
Payment on variation, assignment or novation of a tenancy £50.00 When a tenant has requested it, landlords and letting agents can charge to vary, assign or replace a tenancy. Fee charge £50 (including VAT).
Please ask us to explain these to you, once we know your circumstance and how many tenants are applying for the property you are interested in, we can confirm the fees that could become payable.
We are members of The Property Ombudsman Redress Scheme – R00344 We are members of the RICS Client Money Protection Scheme - 002767