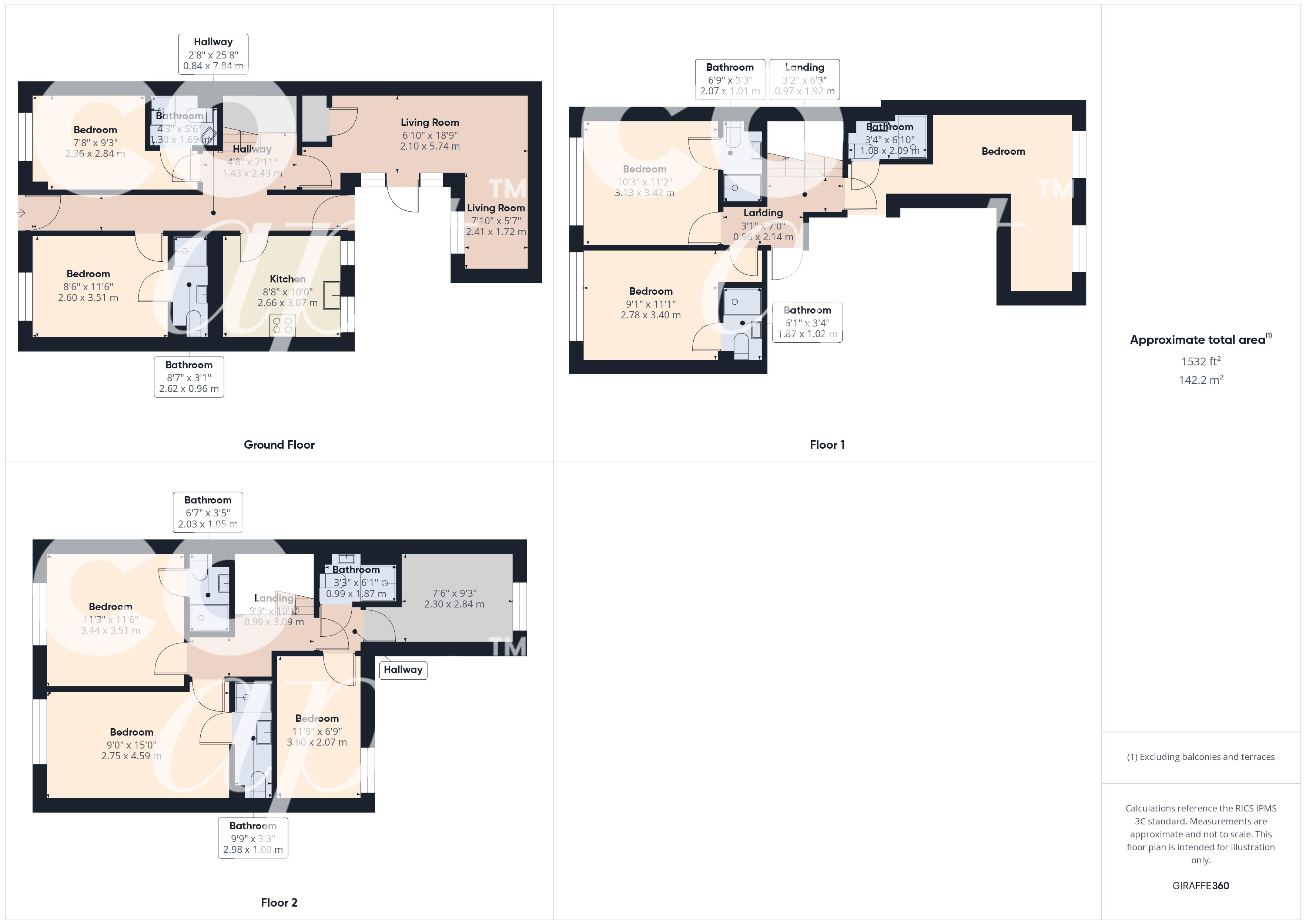
8 doubles | 8 en suites | 2 kitchens | separate lounge | parking space | prime location | low maintenance garden | breakfast bar | coapt ref: 6716750This expansive eight double bedroom terraced house is located on Upper Lewes road, just a 10 minute walk to central Brighton, great local amenities and close to bus links to both universities.You enter the property into a modern hallway with the first two double bedrooms on either side. Each bedroom comes with its own en-suite shower room and is furnished with lots of storage space, a double bed and a committed work desk. Further in off of the hall is the first kitchen and the communal living room. Recently fitted with a new breakfast bar this accommodating area is perfect as a workspace or a space to socialise with friends. The modern kitchen has recently been refurbished and is fitted with all the necessary appliances, and ample worktop space. The two-tiered garden, is accessed through the rear exit in the comfy living room. The first floor has another three double bedrooms. Each is furnished to the same high standard as the ground floor rooms and incorporate en-suite shower rooms. The second kitchen is in the middle of the first floor and has recently been updated to a very high standard. The top floor contains the final three double bedrooms, all en-suite and one featuring a separate study area.This recently renovated house has copious amounts of space to entertain and socialise and is located near to some Brighton's top spots.A parking space at the front of the property is available for £250 per annum.Discover your ideal student accommodation in Brighton and Hove with Coapt. Our extensive selection of student housing options near Brighton University and Sussex University ensures you'll find the perfect place to call home. Whether you're looking for affordable student rentals, cosy student apartments, shared student housing, or individual rooms to rent, Coapt offers safe and convenient accommodation near campus.Contact us today to arrange your viewing on Disclaimer: Coapt Ltd make every effort to ensure the accuracy of advertised information, but are often reliant on third parties to acquire this. Where any details contained on this listing are of priority to you we advise speaking to one of our agents to confirm formal details, and also referring to and reading any tenancy agreement issued in relation to this property. Any tenancy agreement entered into is subject to contract, and the terms of this contract only. Some properties are marketed with bedding/furnishings that are not included when you move-in. Where locks are visible on bedroom doors, this does not guarantee the lock is functional or that keys are provided by the Landlord. Please speak to one of our team should you have any questions
For tenancies signed after 1st June 2019 as well as paying the rent, you may also be required to make the following permitted payments.
Permitted payments
Before the tenancy starts (payable to Coapt ‘the Agent’)
Holding Deposit: 1 week’s rent
Deposit: 5 weeks’ rent
During the tenancy (payable to the Agent)
Payment of up to £50 if you want to change the tenancy agreement. This could include a change of sharer or or any other amendment which alters the obligations of the agreement.
Payment of reasonably incurred costs for the loss of keys/security devices
During the tenancy (payable to the provider) if permitted and applicable
Utilities – gas, electricity, water
Communications – telephone and broadband
Installation of cable/satellite
Subscription to cable/satellite supplier
Television licence
Council Tax
Other permitted payments
Any other permitted payments, not included above, under the relevant legislation including contractual damages.
Tenant protection
Coapt is a member of UKALA which is a client money protection scheme, and a member of The Property Ombudsman, which is a redress scheme. You can find out more details on the agent’s website or by contacting the agent directly.