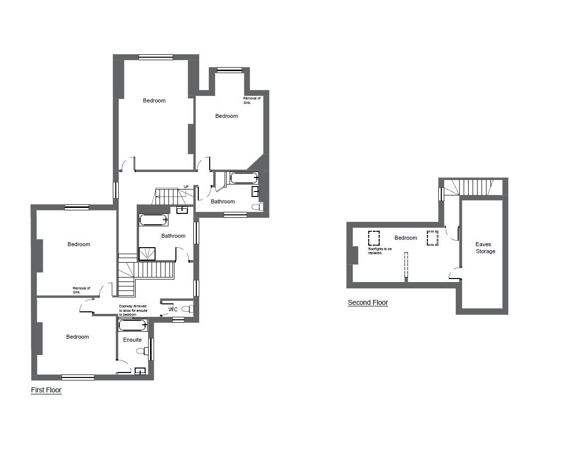
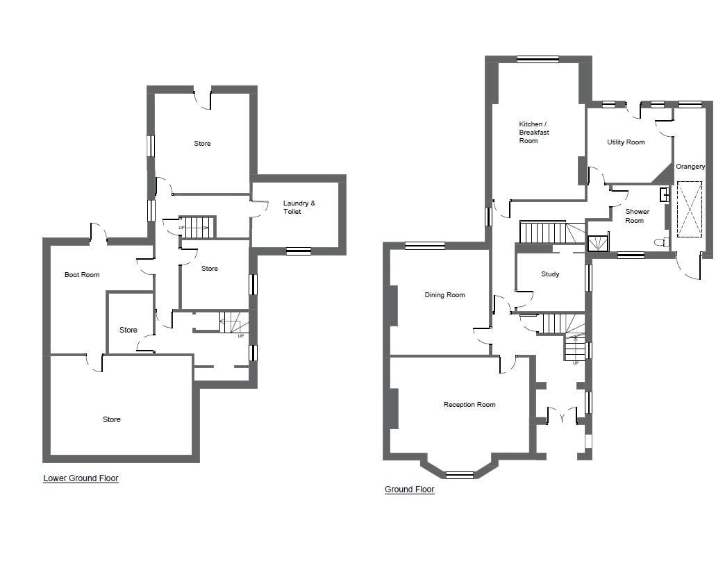
A historic and imposing residence nestled towards the heart of Cheltenham, a true masterpiece that seamlessly blends timeless charm with exceptional restoration. Built in c.1836, this distinguished seven double-bedroom property has been meticulously preserved throughout its recent and thoughtfully considered renovation to showcase its rich heritage and original features, making it a truly unique property.This exquisite property offers generously proportioned accommodation and on the ground floor comprises in brief a welcoming porch, an entrance hall, an impressive drawing room with an open fireplace and a bay window, a grand dining/sitting room, a study including a built-in Milners patent fire-resistant safe, a beautifully fitted kitchen featuring large windows that flood the space with natural light and overlook the picturesque rear garden, a plant room with water closet, a sizeable utility room with access to the rear garden and a convenient boot room.The first floor offers four large double bedrooms, all with feature fireplaces, an en-suite to the main bedroom and two beautifully appointed bathrooms, one with a separate water closet. The second floor features a fifth bedroom with built-in storage and a feature fireplace.In addition, the lower ground floor provides versatile living options and includes a hallway, two spacious double bedrooms, an original brick pantry, and a stylish shower room with an authentic copper bowl used historically for washing clothes, a utility room and a snug.Externally, the property features a charming rear garden with a Victorian stone pathway winding through beautifully landscaped areas and several inviting spaces designed for different experiences. There is a gated driveway for two vehicles to the rear and a second driveway with parking to the front of the property where an EV charger can be found.This exceptional Cheltenham residence is a harmonious blend of history and luxury, restored to an exceptional standard. It offers a rare opportunity to live in a piece of late Georgian history, expertly preserved and enhanced for contemporary living. Regular gardener included. Holding deposit £1,845. Security deposit £11,070. Please note floorplan is not accurate.Mobile SignalGood mobile reception
Presented by:
Errington Smith Town and Village Properties, Residential Sales, Lettings and Property Management
tenant fee schedule assured shorthold tenancies ASTs holding payment (per tenancy) One weeks rent. This is to reserve a property. Please Note: This will be withheld if any relevant person (including any guarantor(s)) withdraw from the tenancy, fail a Right-to-Rent check, provide materially significant false or misleading information, or fail to sign their tenancy agreement (and / or Deed of Guarantee) within 15 calendar days (or other Deadline for Agreement as mutually agreed in writing). Security deposit (per tenancy. Rent under £50,000 per year) Five weeks' rent. This covers damages or defaults on the part of the tenant during the tenancy. Security deposit (per tenancy. Rent of £50,000 or over per year) Six weeks' rent. This covers damages or defaults on the part of the tenant during the tenancy. Unpaid rent Interest at 3% above the Bank of England Base Rate from Rent Due Date until paid in order to pursue non-payment of rent. Please Note: This will not be levied until the rent is more than 14 days in arrears. Lost key(S) or other security device(S) Tenants are liable to the actual cost of replacing any lost key(s) or other security device(s). If the loss results in locks needing to be changed, the actual costs of a locksmith, new lock and replacement keys for the tenant, landlord any other persons requiring keys will be charged to the tenant. If extra costs are incurred there will be a charge of £15 per hour (inc. VAT) for the time taken replacing lost key(s) or other security device(s). Variation of contract (Tenant's Request) £50 (inc. VAT) per agreed variation. To cover the costs associated with taking landlord's instructions as well as the preparation and execution of new legal documents. Change of sharer (Tenant's Request) £50 (inc. VAT) per replacement tenant or any reasonable costs incurred if higher. To cover the costs associated with taking landlord's instructions, new tenant referencing and Right-to-Rent checks, deposit registration as well as the preparation and execution of new legal documents. Early termination (Tenant's Request) Should the tenant wish to leave their contract early, they shall be liable to the landlord's costs in re-letting the property as well as all rent due under the tenancy until the start date of the replacement tenancy. These costs will be no more than the maximum amount of rent outstanding on the tenancy. Please ask a member of staff if you have any questions about our fees. Further information All client monies are held in a segregated client account. All security deposits are protected by a government approved deposit scheme. We are a member of Client Money Protect. We are registered with The Property Ombudsman Approved Redress Scheme. Client money protection: Client Money Protect independent redress: Tpos