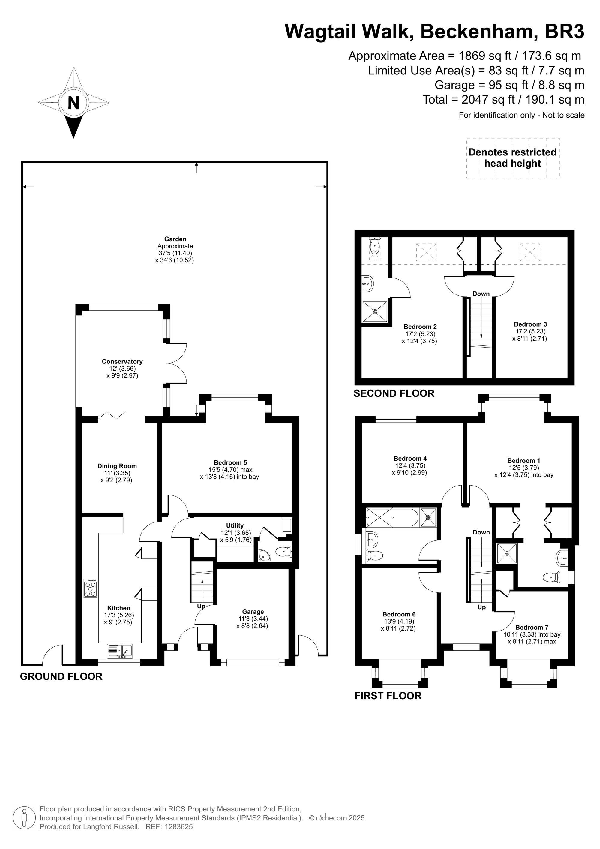
Available with the Residency Option* Set within the prestigious Langley Park Development is this outstanding six bedroom detached house that has been extremely well maintained by its current owner occupiers and is available to let from late April.This immaculate home which is split over three floors comprises a a large fitted kitchen, dining room with access to a spacious conservatory overlooking a low maintenance garden, a separate reception room and utility area with WC. The first floor comprises a family bathroom, four double bedrooms; one with walk in wardrobe and en-suite, with the second floor holding the final two bedrooms; one of which also has an en-suite shower room.Additional benefits include off street parking and garage.Please call now to view.Energy Rating D.Garage 11'3 x 8'8 (3.44m x 2.64m), Kitchen 17'3 x 9' (5.26m x 2.75m), Utility 11'3 x 8'8 (3.44m x 2.64m), Dining Room 11' x 9'2 (3.35m x 2.79m), Conservatory 12' x 9'9 (3.66m x 2.97m), Bedroom 5 15'5 x 13'8 (4.7m x 4.16m), Bedroom 1 12'5 x 12'4 (3.79m x 3.75m), Bedroom 4 12'4 x 9'10 (3.75m x 2.99m), Bedroom 6 13'9 x 8'11 (4.19m x 2.72m), Bedroom 7 10'11 x 8'11 (3.33m x 2.71m), Bedroom 2 17'2 x 12'4 (5.23m x 3.75m), Bedroom 3 17'2 x 8'11 (5.23m x 2.71m)Offered UnfurnishedAvailable From 1st NovemberEnergy Efficiency Rating - DCouncil Tax Band - GDeposit - £7,500(If required) Holding Deposit Required – £1,500All known suppliers for mobile and broadband services are available in this area.Gas Central Heating & Mains Electric To check broadband and mobile phone coverage please visit Ofcom here
Fees in relation to tenancy agreements signed on or after 1st June 2019
holding deposit - Equivalent to one week's rent per tenancy (annual rent amount divided by 52)
- The property will be reserved on payment of the Holding Deposit
- The Deadline for Agreement is 15 calendar days after the Holding Deposit is paid unless an "extension" date is agreed in writing by the tenant
The Holding Deposit will be refunded to the tenant within 7 days:-
(i) from when the parties enter into the tenancy agreement unless the tenant has agreed in writing for the Holding Deposit to be put towards the balance of monies payable (ii) if the landlord withdraws (iii) if an agreement is not reached before the Deadline for Agreement or the agreed extended date and the tenant is not at fault, or (iv) if the landlord or the agent breaches the fee ban or acts in a way that it would be unreasonable to expect the tenant to enter into a tenancy agreement (i.e. Unfair terms, harassment etc)
The Agent can retain the Holding Deposit only if:
(i) the tenant withdraws their application (ii) the tenant doesn't take reasonable steps to enter into the tenancy (iii) the tenant fails a Right to Rent check (iv) the tenant provides false or misleading information which materially affects their suitability to rent the property
rent - The amount which will be contractually payable to rent the property at regular specified intervals.
Security deposit - Equivalent to five weeks' rent per tenancy if rent is less than £50,000 per year - Equivalent to six weeks' rent per tenancy if rent is more than £50,000 per year - The Security Deposit can be used to cover damages or defaults on the part of the tenant during the tenancy - Where the Zero Deposit product is available tenants will be required to pay a figure equivalent to one weeks rent rather than a “cash deposit” as stated above. Zero Deposit is available subject to terms and conditions. - Interest is payable by the tenant on late rent at the rate of 3% above the Bank of England Base Rate in relation to each day after the due date for which the rent is unpaid but not to be levied until the rent is more than 14 days in arrears
utilities & council tax - Gas, electricity, fuel, water or sewage, communication services, television licence, Green Deal charge (if any) and council tax
lost key / access or security device - The cost of replacement including the cost of replacement of the locks (if applicable)
variation of contract - £50 (including VAT) per agreed variation at the tenant's request to include the cost of the preparation and execution of new documentation - £50 (including VAT) per agreed replacement tenant at the tenant's request to include the cost of Right to Rent checks, deposit registration and the preparation and execution of new legal documents - £50 (including VAT) per agreed variation at the tenant's request to keep a pet at the property
early termination - If the tenant wishes to leave the contract early and there is no break clause, the tenant shall pay the rent until the start date of any replacement tenancy together with the landlord's re-letting costs (in accordance with Acorn's published landlord letting fees); such costs to be no more than the maximum amount of rent outstanding on the tenancy
----
Peace of mind The Acorn Group are part The Ombudsman Redress Scheme and are a member of the Propertymark Client Money Protection Scheme. Tenant deposits are protected by the Tenancy Deposit Scheme.
For more information please contact your local branch.